Виробником універсального трубонарізного верстата 9М14 є Тбіліський верстатобудівний завод ім. Кірова
Трубонарізний верстат 9М14 призначений для токарної обробки труб і деталей трубних з'єднань (НКТ), що застосовуються для видобутку та транспортування нафти та природного газу та нарізування на них циліндричних та конічних різьблень в умовах, індивідуального та дрібносерійного виробництва.
Верстат трубонарізний 9М14 є спеціалізованим токарно-гвинторізним верстатом, виконаним на базі універсального верстата 1М63, з порожнистим шпинделем і призначений для обточування кінців труб і нарізування на них циліндричної та конічної різьблення:
На верстаті 9М14 можна обробляти штанги, замки, перекладачі, деталі трубних з'єднань (нарізка різьблення НКТ, НКМ ГОСТ 633-80, нарізка різьблення на обсадні труби ОТТМ, ОТТГ, Батресс ГОСТ 832-80, нарізка замкової різьби .д.), що застосовуються для видобутку та транспортування нафти та природного газу та в нафтовидобувній промисловості.
Верстат 9М14 має конусну лінійку для обробки конічних поверхонь та нарізування конічних різьблень.
Верстат 9М14 оснащений двома механізованими чотирма кулачковими патронами діаметром 500 мм.
Оброблювана труба пропускається через порожнистий шпиндель і затискається двома механізованими патронами. Інший кінець труби підтримується люнетом. Шпиндель має пряме та зворотне обертання.
Висока потужність приводу та жорсткість верстата, широкий діапазон частоти обертання шпинделя та подач дозволяють повністю використовувати можливості прогресивних інструментів при обробці різних матеріалів.
Клас точності верстата 9М14 -Н.
Шорсткість обробленої поверхні V5.

Габарити робочого простору верстата 9М14

Габарити робочого простору верстата 9М14. Ескіз супорта

Креслення шпинделя трубонарізного верстата 9М14

Фото трубонарізного верстата 9М14
Фото трубонарізного верстата 9М14. Дивитись у збільшеному масштабі

Фото трубонарізного верстата 9М14

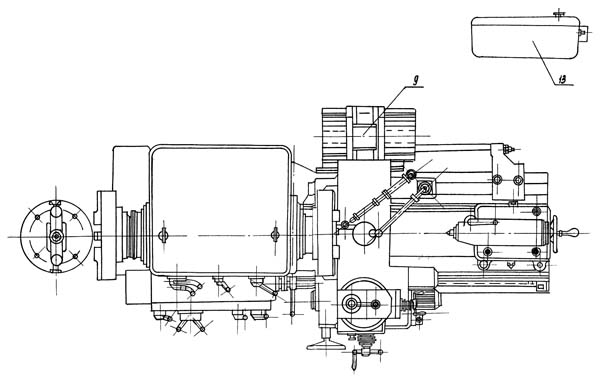
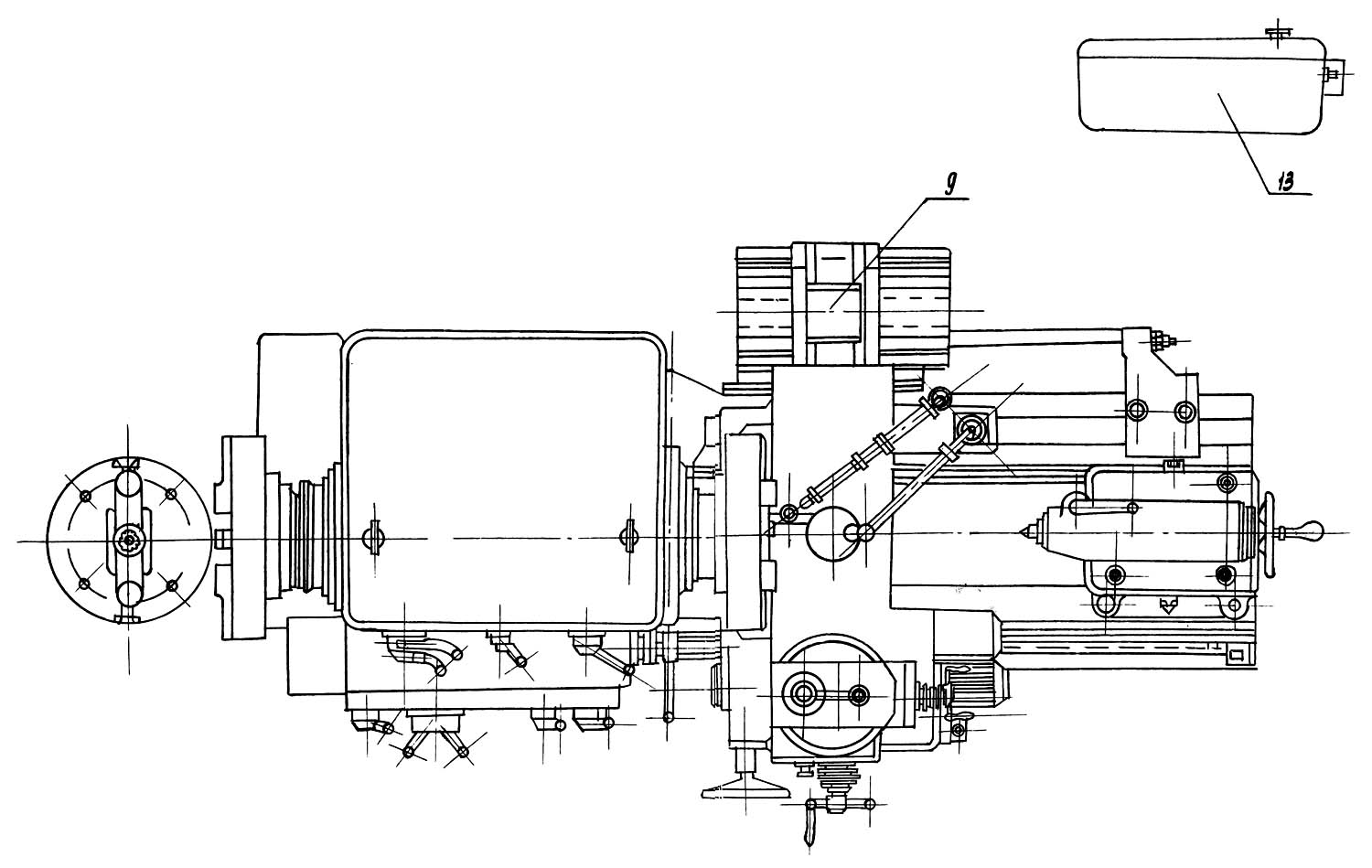
Розташування складових частинин трубонарізного верстата 9М14
Розташування складових частинин трубонарізного верстата 9М14. Дивитись у збільшеному масштабі

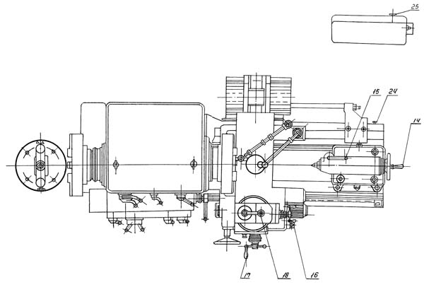
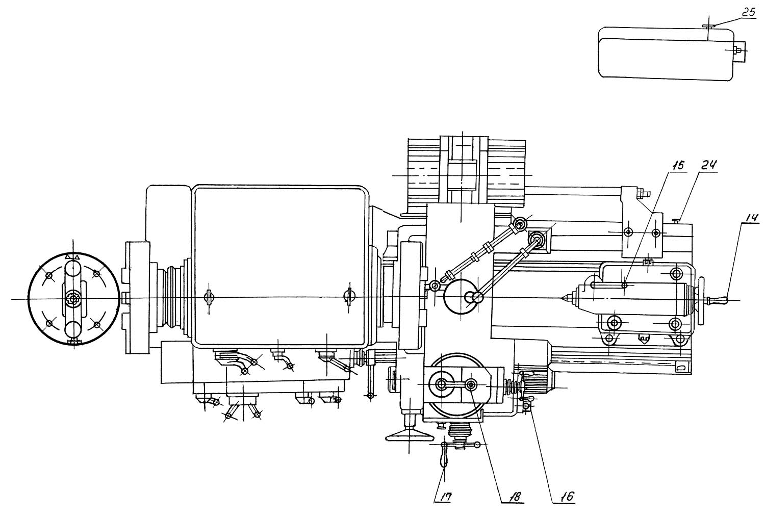
Розташування складових частинин трубонарізного верстата 9М14
Розташування складових частинин трубонарізного верстата 9М14. Дивитись у збільшеному масштабі

Розташування органів керування трубонарізним верстатом 9М14
Розташування органів керування трубонарізним верстатом 9М14. Дивитись у збільшеному масштабі

Розташування органів керування трубонарізним верстатом 9М14
Розташування органів керування трубонарізним верстатом 9М14. Дивитись у збільшеному масштабі
Документація, за якою виконано верстат
Живлення ланцюгів електроустаткування здійснюється наступними напругами:
Живлення верстата здійснюється від мережі трифазного змінного струму напругою 380, частотою 50 Гц.
На верстаті встановлено 3 трифазні асинхронні короткозамкнуті електродвигуни:

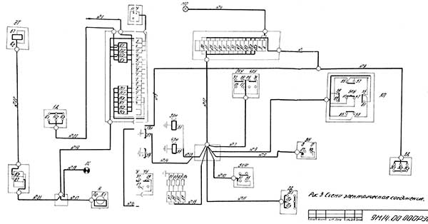
Електрична схема трубонарізного верстата 9М14
Електрична схема трубонарізного верстата 9М14. Дивитись у збільшеному масштабі

Список елементів трубонарізного верстата 9М14
Список елементів трубонарізного верстата 9М14. Дивитись у збільшеному масштабі

Список елементів трубонарізного верстата 9М14
Список елементів трубонарізного верстата 9М14. Дивитись у збільшеному масштабі
Перед початком роботи необхідно переконатися, що всі захисні автомати включені.
Пуск електродвигуна головного приводу 1Д здійснюється натисканням кнопки 1КУ або 2КУ (25-27), яка замикає ланцюг живлення котушки контактора КШ (31-34).
Котушка під впливом струму, що проходить по ній, притягує сердечник якоря і замикає механічно пов'язані з ним головні контакти і блокконтакти.
При цьому головні контакти КШ підключають електродвигун 1Д до мережі, а живлення котушки пускача здійснюється через блокконтакт КШ (11-27), що замкнувся, що виключає подальше натискання кнопки "Пуск".
Одночасно із котушкою пускача КШ через замикаючий блокконтакт КШ (39-23) отримає живлення реле години РВ.
Якщо фрикціон не буде переведений у робоче положення протягом години, на яку налаштовано реле РВ, то останнім своїми розмикаючими контактами РВ (34-2) знеструмить котушку магнітного пускача КШ з наступним зупинкою електродвигуна 1Д.
При включенні котушки РВ розмикаючими контактами РВ (Л12-Б7) підключається гальмівна електромагнітна муфта Е7.
Зупинка головного електродвигуна 1Д здійснюється натисканням однієї з кнопок:
Контроль за навантаженням електродвигуна головного приводу 1Д здійснюється за амперметром.
Номінальне значення струму електродвигуна головного приводу Iн = 29 А.
У фартуху верстата є 4 електромагнітні муфти, дві з яких використовуються для керування робочими подачами супорта в поздовжньому напрямку і дві в поперечному.
Керування муфтами провадиться рукояткою хрестового перемикача, встановленого на фартуху верстата.
Хрестовий перемикач має 5 положень:
Для включення прискореного руху у вибраному напрямку в рукоятку вбудована кнопка 5КУ, яка керує муфтами та електродвигуном 3Д.
Для уникнення одночасного включення маткової гайки та електромагнітних муфт фартуха передбачено блокувальний кінцевий вимикач ВКФ, який рамикає ланцюг живлення муфт при включенні маткової гайки.
Для попередження пробою електромагнітних муфт і зменшення іскроутворення при відключенні котушки муфти, передбачені розрядні опори R1..R4.
Захист від коротких замикань здійснюється для всіх електродвигунів, трансформатора та електромагнітних муфт автоматичними вимикачами АВ, А1, А2, А3, А4 та тепловим реле.
Нульовий захист електродвигуна головного приводу 1Д та електродвигуна насоса СОЖ здійснюється котушками пускачів КШ, КО, які при зниженні напруги живлення мережі до 50..60% відключають двигуни від мережі.

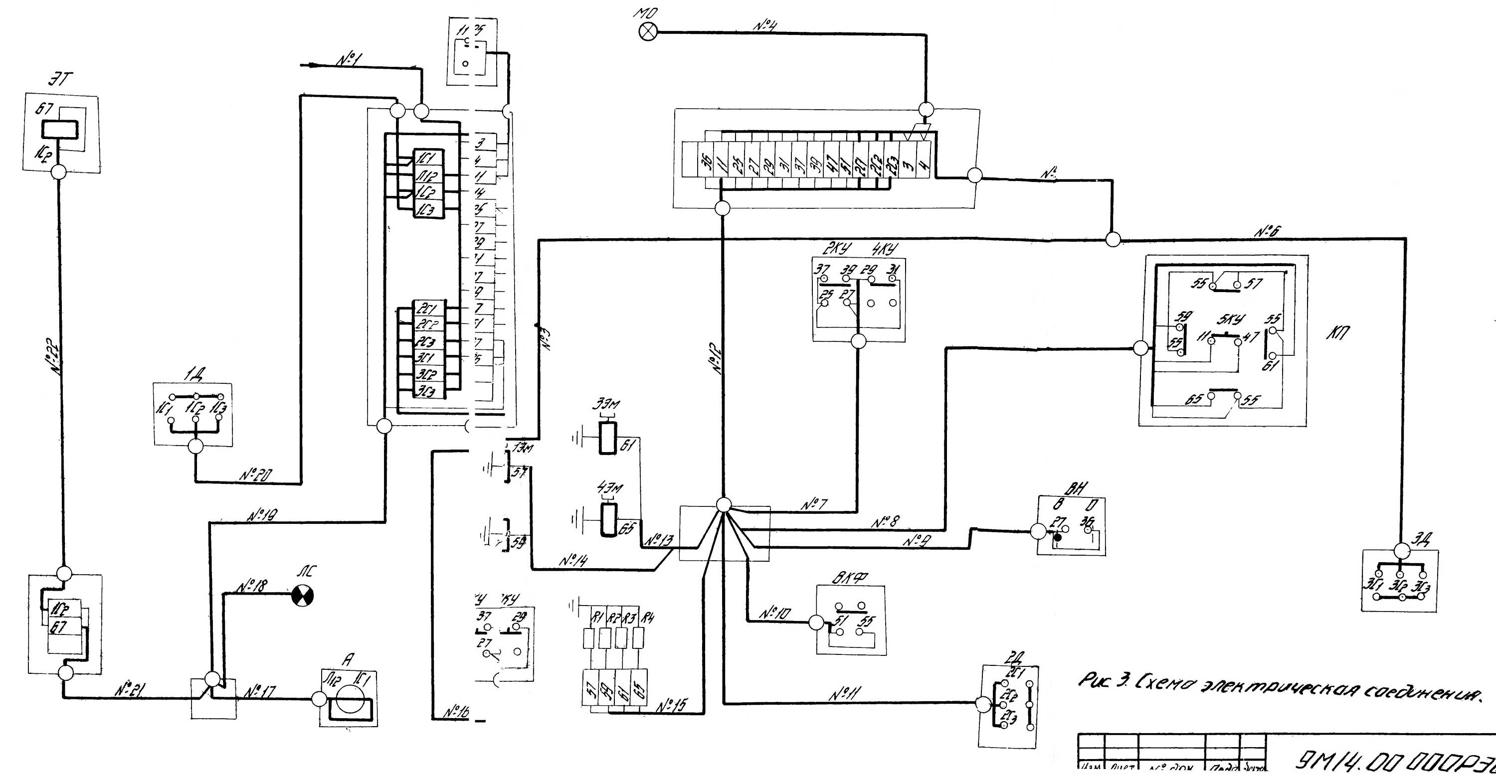
Схема з'єднань трубонарізного верстата 9М14
Схема з'єднань трубонарізного верстата 9М14. Дивитись у збільшеному масштабі

Схема з'єднань трубонарізного верстата 9М14
Схема з'єднань трубонарізного верстата 9М14. Дивитись у збільшеному масштабі

Схема з'єднань трубонарізного верстата 9М14
Схема з'єднань трубонарізного верстата 9М14. Дивитись у збільшеному масштабі

Шкаф керування. Схема з'єднань трубонарізного верстата 9М14
Шкаф керування. Схема з'єднань трубонарізного верстата 9М14. Дивитись у збільшеному масштабі

Шкаф керування. Схема з'єднань трубонарізного верстата 9М14
Шкаф керування. Схема з'єднань трубонарізного верстата 9М14. Дивитись у збільшеному масштабі
| Найменування параметру | 9M14 | |
|---|---|---|
| Основні параметри | ||
| Класс точності по ГОСТ 8-82 | Н | |
| Найбільший діаметр виробу, що обробляється над станиною, мм | 630 | |
| Найбільший діаметр виробу, що обробляється над супортом, мм. | 350 | |
| Діаметр оброблюваних труб, мм | 30..203 | |
| Відстань між центрами, мм 710 | 710 | |
| Найбільша довжина обробки по копірній лінійці з найбільшою конусністю, мм | 400 | |
| Найбільша конусність при обробці за копірною лінійкою, мм | 13 | |
| Найбільша відстань від осі центрів до кромки різцетримача, мм | 320 | |
| Висота центрів, мм | 315 | |
| Шпиндель | ||
| Діаметр внутрішнього (наскрізного) отвору шпинделя, мм | 210 | |
| Число ступеней частот прямого обертання шпинделя | 18 | |
| Частота обертання шпинделя у прямому напрямку, об/хв | 16..500 | |
| Число ступеней частот обратного обертання шпинделя | 9 | |
| Частота обертання шпинделя у зворотному напрямку, об/хв | 28..700 | |
| Гальмування шпинделя | Є | |
| Супорт. Подання | ||
| Найбільше переміщення поздовжньої каретки супорта, мм | 570 | |
| Найбільше переміщення поперечної каретки супорта, мм | 400 | |
| Число ступенів поздовжніх подач | 32 | |
| Межі робочих подач поздовжніх, мм/про | 0,064..1,025 | |
| Число ступенів поперечних подач | 32 | |
| Межі робочих подач поперечних, мм/про | 0,026..0,38 | |
| Швидкість швидких переміщень супорта, поздовжніх, м/хв. | 3,6 | |
| Швидкість швидких переміщень супорта, поперечних, м/хв. | 1,3 | |
| Кількість різьб метричних нарізних | 19 | |
| Межі кроків метричних різьблень, мм | 1..12 | |
| Кількість нарізних різьблень дюймових | 23 | |
| Межі кроків дюймових різьблень, ниток/дюйм | 24..2 | |
| Кількість нарізних різьблень модульних | - | |
| Межі кроків модульних різьблень, модуль | - | |
| Кількість нарізних різьблення питних | - | |
| Межі кроків різьб питчових | - | |
| Ціна поділу лімба при поздовжньому переміщенні, град | 1 | |
| Ціна поділу лімба при поперечному переміщенні, град | 0,05 | |
| Різцеві санки | ||
| Найбільше переміщення різцевих санчат, мм | 220 | |
| Переміщення різцевих санок на один поділ лімба, мм | 0,05 | |
| Найбільший кут повороту різцевих санок, град | ±60° | |
| Ціна поділу шкали повороту різцевих санчат, град | 1 | |
| Найбільший переріз державки різця, мм | ||
| Висота від опорної поверхні різця до осі центрів (висота різця), мм | 35 | |
| Число різців у різцевій головці | 4 | |
| Задня бабка | ||
| Диаметр пиноли задньої бабки, мм | ||
| Конус отверстия в пиноли задньої бабки по ГОСТ 2847-67 | ||
| Найбільше переміщення пінолі, мм | 240 | |
| Переміщення пінолі на один поділ лімба, мм | ||
| Розмір поперечного зміщення корпусу бабки, мм | ±10 | |
| Електроустаткування | ||
| Кількість електродвигунів на верстаті | 3 | |
| Електродвигун головного приводу, кВт | 15 | |
| Електродвигун швидких переміщень, кВт | 1,1 | |
| Електродвигун гідростанції, кВт | ні | |
| Електродвигун насоса охолодження, кВт | 0,12 | |
| Насос охолодження (помпа) | ПА-22 | |
| Габарити та маса верстата | ||
| Габарити верстата (довжина ширина висота), мм | 3050 х 1720 х 1350 | |
| Маса верстата, кг | 4350 |