Виробник токарно-гвинторізного верстата підвищеної точності ФТ-11 – Фрунзенський машинобудівний завод ім. В.І. Леніна , заснований у 1941 році. Нині Бішкецький машинобудівний завод.
Токарно-гвинторізний верстат підвищеної точності ФТ-11 розроблений на основі універсального верстата 16Б25ПСп.
Токарно-гвинторізний верстат ФТ-11 призначений для виконання широкого кола токарних робіт на чистових та напівчистових режимах. На чорнових та обдирних режимах використовувати верстат не рекомендується. Високі швидкості шпинделя роблять придатним верстат для роботи на швидкісних режимах; у своїй забезпечується раціональне використання сучасних марок твердих сплавів.
Верстат ФТ-11 забезпечує нарізування метричної, дюймової, модульної та різьблення живлення, а при скороченому кінематичному ланцюгу (пряме включення ходового ггвинта без коробки подач), дає можливість проводити нарізування нестандартних різьблень при відповідному налаштуванні гітари.
На верстаті можливе обточування конусів без застосування конусної лінійки шляхом механічного переміщення верхнього супорта.
Оригінальна конструкція станини, що усуває можливість попадання металевих відходів у напрямні пази. Це призводить до зменшення зносу та збільшення терміну служби верстата. Також стає можливим обробляти матеріали, що мають особливий склад і пройшли спеціальну обробку
Автоматичне керування швидкостями обертання шпинделя дозволяє перемикати швидкості на ходу і тим самим зменшує непродуктивні втрати часу.
Застосування автоматичної коробки дозволяє забезпечити:
Широке застосування напівпровідникових та релейних елементів та схем для керування роботою верстата. Використовувані тиристорно-транзисторні змінили систему керування режимами верстата та дозволили змінювати швидкість обертання шпинделя без вимкнення головного приводу.
Прискорений зворотний хід шпинделя при нарізанні різьблення дозволяє зменшити час обробки деталі.
Можливе відключення коробки подач, передаючи обертання безпосередньо на ходовий гвинт. Таке скорочення кінематичного ланцюга дозволяє нарізати різьблення з нестандартним кроком.
Магнітні пускачі оберігають токарно-гвинторізний верстат ФТ-11 від мимовільного включення електродвигунів при відновленні подачі електроенергії після її раптового відключення.
Не рекомендується використовувати верстат при чорновій обробці.
Клас точності верстата П згідно з ГОСТ 8-71.

Габарити робочого простору токарного верстата ФТ-11

Фото токарно-гвинторізного верстата ФТ-11
Фото токарно-гвинторізного верстата ФТ-11. Дивитись у збільшеному масштабі

Фото токарно-гвинторізного верстата ФТ-11
Фото токарно-гвинторізного верстата ФТ-11. Дивитись у збільшеному масштабі

Фото шпиндельной баббки токарно-гвинторізного верстата ФТ-11
Фото шпиндельної бабки токарно-гвинторізного верстата ФТ-11. Дивитись у збільшеному масштабі

Фото токарно-гвинторізного верстата ФТ-11ф1

Розташування органів керування токарно-гвинторізним верстатом ФТ-11

Пульт керування токарно-гвинторізним верстатом ФТ-11
Над супортною групою на кронштейні встановлений пульт керування, на якому розташовані:
На боковую стенку електрошафи, расположенного на задньої стороне шпиндельной бабки, выведена рукоятка трехфазного автоматичного выключателя ввода живлення — F1.
На шпиндельной бабке установлен указатель нагрузки, показывающий загрузку електродвигуна головного приводу (в процентах от номинального тока електродвигуна. 1н = 22А) — РА і панель з расположенными на ней:
В рукоятку фартука встроена кнопка керування електродвигуном ускоренного переміщення суппортной группы — S13.
В нише каретки установлен переключатель S19, осуществляющий подготовку к включению прямого или обратного направлений обертання шпинделя і его торможение.
В рукоятки керування вращением шпинделя вмонтированы микровыключатели S16 і S17, осуществляющие его включение.

Таблиця налаштування різьб і подач токарно-гвинторізного верстата ФТ-11

Графічні символы і условные обозначения на панелях токарно-гвинторізного верстата ФТ-11

Електрична схема токарно-гвинторізного верстата ФТ-11
Схема електрична токарно-гвинторізного верстата ФТ-11. Дивитись у збільшеному масштабі

Список елементів схеми електрической токарно-гвинторізного верстата ФТ-11

Список елементів схеми електрической токарно-гвинторізного верстата ФТ-11

Список елементів схеми електрической токарно-гвинторізного верстата ФТ-11
Электромагнитные муфты, ланцюги керування і сигнализации питаются пониженным напряжением следующих значений
На станке установлено следующее електрообладнання (см. рис. 8):
Разводка проводов от електрошафи осуществляется через штепсельные разъемы, расположенные на боковой стенке і дне електрошафи.
Силовые ланцюги верстата предназначены для подключения к трехфазной сети переменного тока напряжением 380 В частотой тока 50 Гц.
В качестве головного приводу в станке применен нерегулируемый трехфазный електродвигатель переменного тока і автоматическая коробка швидкостей (АКС), керування которой осуществляется от пульта керування.
Привід обеспечивает:
АКС представляет собой 12-ступенчатую трехваловую коробку, переключение швидкостей в которой осуществляется посредством многодисковых електромагнітних муфт.
В АКС использованы електромагнітні муфты типа ЭТМ з магнитопроводящими дисками і бесконтактным токоподводом.
Для переключения ступеней скорости под нагрузкой в схеме керування предусмотрена подача на муфты форсированного напряжения от выпрямительного моста ВФ.
Пуск електродвигуна головного приводу Ml осуществляется нажатием кнопки «1» — S12, которая замыкает ланцюг пускателя К1, переводя его на самопитание. Останов електродвигуна Ml осуществляется нажатием кнопки «О» — S11 (зона 9).
Керування електродвигуном ускоренного переміщення суппортной группы М3 осуществляется нажатием кнопки S13 (зона 12), встроенной в рукоятку фартука.
Керування електронасосом охлаждения М2 производится переключателем S15 (зона 11). Работа електронасоса сблокирована з електродвигуном головного приводу Ml і увімкнення его возможно только після замыкания контактов пускателя К1.
Для ограничения часу холостого ходу електродвигуна головного приводу в схеме использовано реле часу К2, выдержка часу которого отстроена на 2..3 минуты. Если по истечении етого часу шпиндель не будет включен, то контакт реле К2 разомкнет ланцюг живлення катушки пускателя К1 і електродвигатель Ml отключится от сети (зона 10).
Схема керування автоматичною коробкой швидкостей содержит:
Реле на герконах питаются отфильтрованным напряжением, снимаемым з выпрямительного моста ВУ.
Для получения замыкающих контактов в схеме применены двухкатушечные реле на герконах, в которых одна из катушек замыкает контакт непосредственно при включении автоматичного выключателя F1 і срабатывании пускателя К1, а вторая, встречно включенная катушка, размыкает их при подаче сигнала из схеми керування.
Блокировочное реле минимального тока на герконах К5 (зона 21), включенное в общую ланцюг живлення електромагнітних муфт і выдающее разрешающий сигнал, через промежуточное реле К7 (зона 38), на увімкнення следующей скорости шпинделя только при надежном отключении муфт предыдущей скорости.
Указанная блокировка осуществляется при управлении вращением шпинделя з рукоятки (зона 41).
Захист електроустаткування верстата от токов К.З. обеспечивается автоматическими выключателями Fl, F2, F3, F4, F5, F6.
Захист електродвигуна насоса охлаждения от длительных токовых перегрузок — тепловым реле F7.
Нулевая защита електросхеми верстата, предохраняющая от самопроизвольного увімкнення електродвигателей при восстановлении подачі ел. енергии після її внезапного отключения, осуществляется катушками магнитных пускачів.
Выбор частоти обертання шпинделя осуществляется кнопками пульта керування і установкой рукоятки переборной группы в одно из трех положений:
Для примера пуск шпинделя осуществляется на второй ступени скорости первого диапазона.
Рукоятку переборной группы установить в положение первого диапазона (1:1), рукоятку керування вращением шпинделя S19 — в нейтральное положение (електродвигатель Ml включен), тумблер S20 — в положение «Тормоз выключен».
Транзисторы V75..V78 закрыты отрицательными потенциалами, поданными на их базы. Реле К13... К16 (зоны 45 ...55), стоящие в их коллекторных цепях, обесточены. Управляющие сигналы на тиристоры V1 ... V7 не поданы, електромагнітні муфты Y1 ... Y7 і реле минимального тока обесточены,, в результате чего реле К7 своим размыкающим контактом (зона 41) подготавливает ланцюг шпинделя к включению, включению
При воздействии на кнопку выбора скорости S2 нижняя ланцюг післядовательно включенных контактов 124—125 (зона 24) кнопок керування пульта размыкается, вызывая процесс заряда конденсатора С13 (зона 55). Положительным потенциалом, поданным на базу, транзистор V78 открывается і включает вторую катушку реле К16 (зона 55). Контакт реле К16 (зона 21) размыкается, прерывая анодную ланцюг тиристоров пульта і ланцюг одной из катушек реле К6 (зона 22).
Указанное переключение контакта К16 (зона 21) необходимо для снятия ранее поданных команд (если таковые имели место) і приведения схеми в исходное состояние.
Другим размыкающим контактом реле К16 прерывает ланцюг 123—164 (зона 56), исключая возможность воздействия післядующих сигналов з пульта керування до окончания переходного процесса в конденсаторе С13
По окончании заряда конденсатора С13 одна из катушек реле К16 обесточится і реле приводит свои контакты (зоны 21, 56) в исходное состояние.
При нажатии кнопки S2 і після срабатывания її размыкающих контактов замыкается ланцюг управляющего електрода тиристора V12 (зона 25), он открывается і подготавливает управляющую ланцюг 80 (зона 25) силових тиристоров к включению прямой или обратной скорости шпинделя
Одновременно з етим на пульті керування загорается сигнальная лампа Н2, указывающая на выбранную частоту обертання, і включается вторая катушка реле К6 (зона 22) Размыкающим контактом реле Кб (зона 23) отключит кнопки пульта керування от источника живлення, обеспечивая електрическую блокировку, исключающую увімкнення других тиристоров керування при нажатии двух или более кнопок одновременно
Размыкание второго контакта реле К6 в ланцюги 24 — 160 (зона 54) приводит к заряду конденсатора С12, т.е к включению реле К15, которое своим замыкающим контактом в ланцюги управляющих електродов тиристоров V8 і V9 подготавливает диодно тиристорный мост ВФ к включению
Следует обратить внимание на то, что если пуск шпинделя на какой либо скорости осуществляется первоначально, то указанное переключение контакта реле К15 (зона 18) не приводит к подаче форсированного напряжения на електромагнітні муфты, так как сигнала на вклю чение шпинделя еще не было і реле К10 отключено (зона 42)
Однако же, если выбор какой либо скорости осуществляется при переключении скорости шпинделя з одного значения на другое, то переключение електромагнітних муфт происходит з подачей форсированного напряжения, так как ланцюг управляющих електродов тиристоров моста ВФ і силових тиристоров была подготовлена еще до увімкнення реле К15
Подача форсированного напряжения на муфты заканчивается з окончанием заряда конденсатора С12, після чего ланцюг управляющих електродов тиристоров V8 і V9 размыкается, мост ВФ отключается, на муфты подается номинальное напряжение з моста ВП.
При переводе рукоятки керування вращением шпинделя вниз, которая воздействует на переключатель S19, замкнется ланцюг 145—147 (зона 43) После нажатия на микропереключатели S16 і S17 срабатывают реле К10, К11 (зоны 42, 43) і вторая катушка реле К12 (зона 44), отключающая реле К2 (зона 10) ограничения часу холостого ходу ел двигуна головного привода
Реле К10 і К11 замыкают свои контакты в цепях управляющих електродов силових тиристоров V1 V7 (зоны 24 36) Через диоды V31 і V46 подается управляющий сигнал на силовые тиристоры V1 і V6 Они открываются, замыкая ланцюги ел магнитных муфт Y1 і Y6, і шпиндель приходит во вращение
Одновременно з етим включается реле минимального тока К5 і замыкается ланцюг второй катушки реле К7 Реле К7 размыкает свой контакт в зоне 41, прерывая еммитерную ланцюг транзистора V75 одновибратора торможения Это переключение контакта реле К7 необходимо для выдачи разрешающего сигнала на увімкнення післядующей пары муфт только при надежном і полном отключении предыдущей при останове шпинделя
Останов шпинделя осуществляется переводом рукоятки керування в нейтральное положение При етом переключатель S19 освободится от воздействия, ланцюг 145—147 разомкнётся. Реле К10, К11 і вторая катушка реле К12 обесточатся. В результате етого з силових тиристоров VI і V6 снимается управляющий сигнал, они закрываются.
Для надежного запирания тиристоров при снятии з них управляющих сигналов служит схема блока отключения (зона 33 37), которая, подавая запирающие импульсы амплитудой около 25 вольт і длительностью 750 мкс, закрывает включенные тиристоры з частотой 50 Гц При етом, если на тиристоры продолжает подаваться управляющее напряжение, то они вновь отпираются по окончании дії каждого запирающего импульса Если же к моменту подачі очереднего запирающего импульса напряжение з управляющих електродов будет снято, то тиристоры останутся закрытыми до тех пор, пока на них вновь не будет подано управляющее напряжение
Схема блока отключения работает следующим образам:
При подаче напряжения на трансформаторы керування происходит заряд конденсатора С14 (по ланцюги F4 — V80 — R51 — С14 — R53 — V21 — Т2 — F4) і конденсатора С15 (по ланцюги F5 — V84 —R58— С15 — V26 — ТЗ — F5) до напряжения пробоя стабилитрона V85 (12 Вольт)
Подав управляющий сигнал на увімкнення выбранной скорости шпинделя, включаем тиристоры (например, V1, V7) і електромагнітні муфты Yl, Y7 При етом происходит заряд конденсаторов Cl, C7 от вторичной обмотки трансформатора Т2 (по ланцюги F4 — V80 — R51 — С1, G7 — открытые тиристоры V1, V7 — V21 — Т2 — F4) до амплитудного значения напряжения форсировки і частиничный разряд конденсатора С14 (по ланцюги С14 — Cl, C7 — V1, V7 — V24 — R56, R57 —V82— С14).
Так как електромагнітні муфты питаются несглаженным выпрямленным напряжением, то в момент перехода синусоиды напряжения сети (на трансформаторах Т2, ТЗ) через нуль выпрямленное напряжение, снимаемое з выпрямительных мостов ВП, ВФ, также будет равно нулю При етом к ланцюги анод — катод отключающего тиристора V81 приложено отпирающее напряжение, равное разности напряжений каждого из конденсаторов Cl, C7 і конденсатора С14 (так как конденсаторы Cl, C7 заряжены до большего напряжения, чем конденсатор С14) И так как одновременно з етим через управляющий електрод тиристора V81 начинает протекать ток разряда конденсатора С15 (по ланцюги С15 — V83 — R55 — управляющий електрод — катод тиристора V81 — К5 — Yl, Y7 — VI, V7 — С15), то тиристор V81 открывается Через него происходит разряд емкостей С1 (по ланцюги С1 — С14 — V81 — К5 — Y1 — С1) і С7 (по ланцюги С7 — С14 — V81 — К5 — Y7 — С7).
В момент открывания тиристора V81 разность напряжений конденсаторов Cl, C7 і конденсатора С14 прикладывается к електромагнитным муфтам Yl, Y7, а также в запирающей полярности к диодам выпрямительного моста
ВП і тиристорами VI, V7, в результате чего тиристоры закрываются.
В момент дії запирающего импульса напряжения ток разряда емкостей Cl, C7 проходит через конденсатор С14 і заряжает его. Действие запирающего импульса прекращается, когда напряжение каждой емкости С1 і С7 становится равным напряжению на конденсаторе С14. В дальнейшем ток в муфтах Yl, Y7 быстро спадает, под действием етого тока конденсатор С14 дополнительно подзаряжается і своим встречно направленным напряжением гасит ток в обмотках муфт. После прекращения тока в муфтах тиристор V81 запирается встречным напряжением моста.
С целью снижения нагрева от токов заряда-разряда, конденсаторы С1 ... С7, С14, С15 питаются однополупериодным выпрямленным напряжением частотой тока 50 Гц. При питании их от двухполупериодного выпрямленного напряжения частота циклов заряд-разряд была бы равна 100 Гц і нагрев их был бы больше.
При полном закрывании тиристоров отключаются електромагнітні муфты і реле минимального тока К5, приводящее контакты реле К7 в исходное состояние.
При переводе рукоятки керування в нейтральное положение і выключении реле К10, размыкается его контакт в ланцюги одновибраторов торможения і задержки (зона 48), вызывая процесс заряда конденсаторов СЮ і СП. Транзисторы V75 і V76 открываются. Вторая катушка реле К14, получая питание, размыкает свой контакт в емиттерной ланцюги транзистора V75 на время необходимое для надежного отключения рабочих муфт перед післядующим включением тормозных. Эта пауза определяется временем заряда конденсатора СП рдновибратора задержки. По истечении етого часу замыкается ланцюг емиттера транзистора V75 і включается реле ЮЗ по ланцюги 60 — 149 — 141 — 140 — 139 — 138 — 24. Реле К13 замыкает ланцюг 60 — 63 (зона 21) управляющих електродов тиристоров V5, V6. Тиристоры открываются, включая тормозные муфты Y5 і Y6. Другой замыкающий контакт реле К13 (зона 39) шунтирует размыкающий контакт реле К7 (зона 41), так как при включении тормозных муфт вновь включается токовое реле К5.
Время роботи тормозных муфт определяется разностью часу роботи одновибратора торможения і одновибратора задержки.
По окончании часу заряда конденсатора С10 транзистор V75 закрывается. Тормозные муфты Y5, Y6 отключаются. Схема приходит в исходное состояние.
Схема керування передбачає также установку шпинделя на постоянный тормоз, осуществляемую включением тумблера S20. Однако включать его нужно по мере необходимости і не оставлять включенным при отключении верстата.
Обратное вращение шпинделя осуществляется аналогично прямому з той лишь разницей, что рукоятку керування вращением необходимо перевести из нейтрального положения в верхнее, замкнув при етом ланцюг 145 — 146 (зона 42) переключателя S19. Исполнительным реле обратного обертання шпинделя является реле К9 (зона 41).
Каждый из диапазонов обертання имеет только три обратные скорости, поетому для получения какой-либо из них в выбранном диапазоне, достаточно нажать на любую из трех кнопок выбора скорости в группе S1... S3, S4... S6, S7... S9 (см. таблицу частот обертання на рис. 1). Сигналы з кнопок керування сначала группируются диодами V60... V68, а затем через замкнувшиеся контакты реле К9 группируются диодами V28... V55 диодного дешифратора в соответствии з кінематичної схемой увімкнення електромагнітних муфт АКС обратной скорости.
Вращение шпинделя в толчковом режиме осуществляется только при прямом вращении на первой скорости любого диапазона і при установці рукоятки керування вращением в нейтральное положение.
При нажатии на кнопку S14 замыкается ланцюг катушки реле К8. Включившись, реле замыкает ланцюг 62 .— 64 (зона 21) управляющих електродов тиристоров VI, V7. Последние включаются, подводя к електромагнитным муфтам Yl, Y7 номинальное напряжение.
Второй контакт реле К8 замыкает ланцюг, шунтирующего размыкающийся контакт реле К7 (зона 40), при включении електромагнітних муфт.
Вращение шпинделя длится до тех пор пока кнопка S14 находится под воздействием. При отпускании кнопки включаются одновибраторы задержки і торможения. По окончании заряда конденсатора СИ включаются реле торможения К13 і тормозные муфты Y5 і Y6.
При повторном нажатии кнопки S14 ланцюг живлення реле торможения размыкается і вновь происходит увімкнення реле К8, через замкнувшийся контакт реле К7, і муфт Yl, Y7.
В аварийных случаях відключення електродвигателей і торможение шпинделя може осуществляться воздействием на кнопку S10 (зона 8). При етом отключаются все електродвигатели верстата і включаются одновибраторы задержки і торможения (если шпиндель вращался). Одно-вибратор торможения подает сигнал на увімкнення тормозных муфт Y5, Y6 і останов шпинделя.

Схема електрична внешних з'єднань токарно-гвинторізного верстата ФТ-11

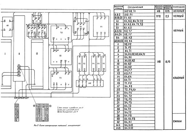
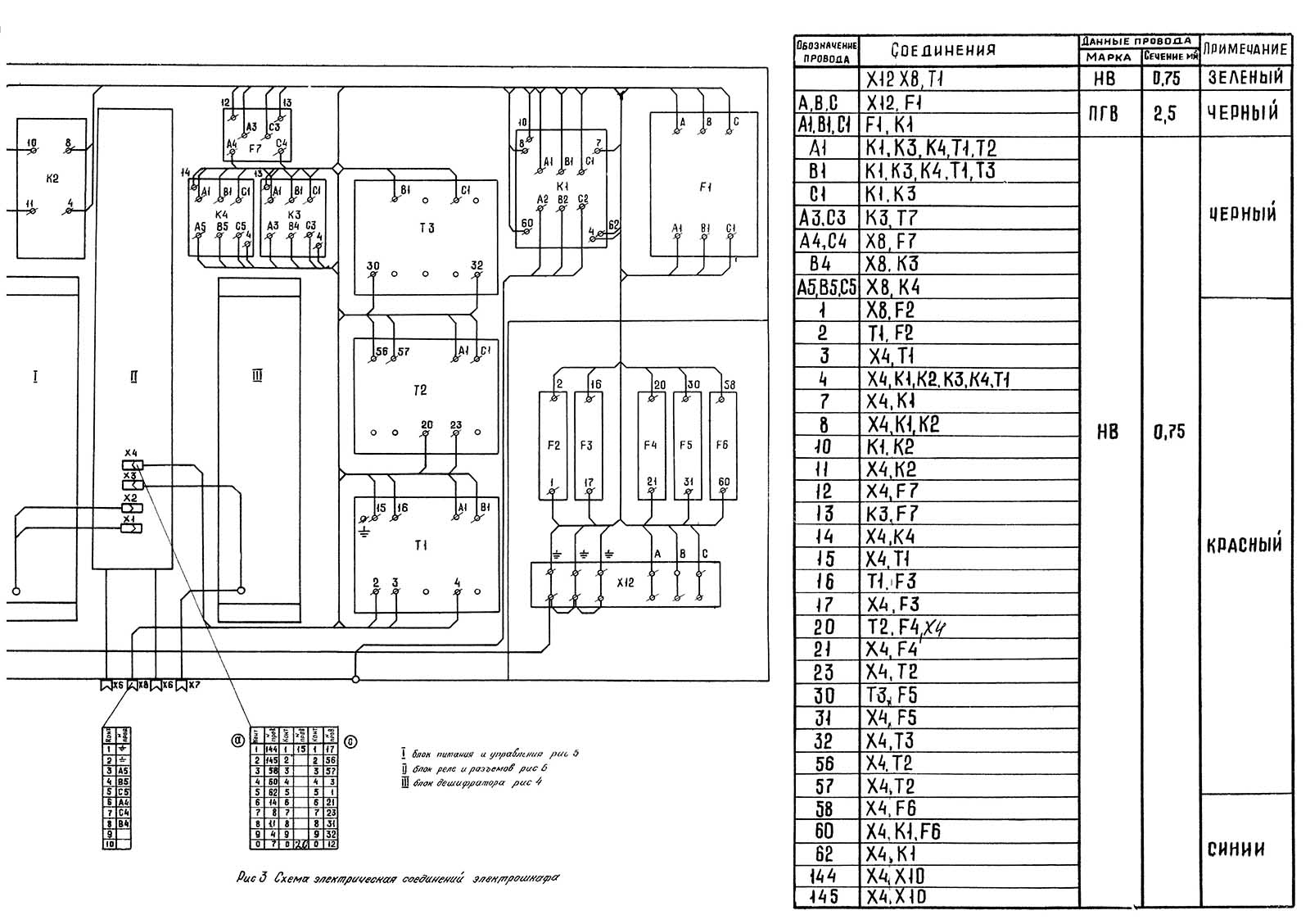
Схема електрична з'єднань електрошафи токарно-гвинторізного верстата ФТ-11

Схема електрична з'єднань блока дешифратора токарно-гвинторізного верстата ФТ-11

Схема електрична з'єднань блока живлення і керування токарно-гвинторізного верстата ФТ-11

Схема електрична з'єднань блока реле і разъемов токарно-гвинторізного верстата ФТ-11

Схема електрична з'єднань пульта керування токарно-гвинторізного верстата ФТ-11

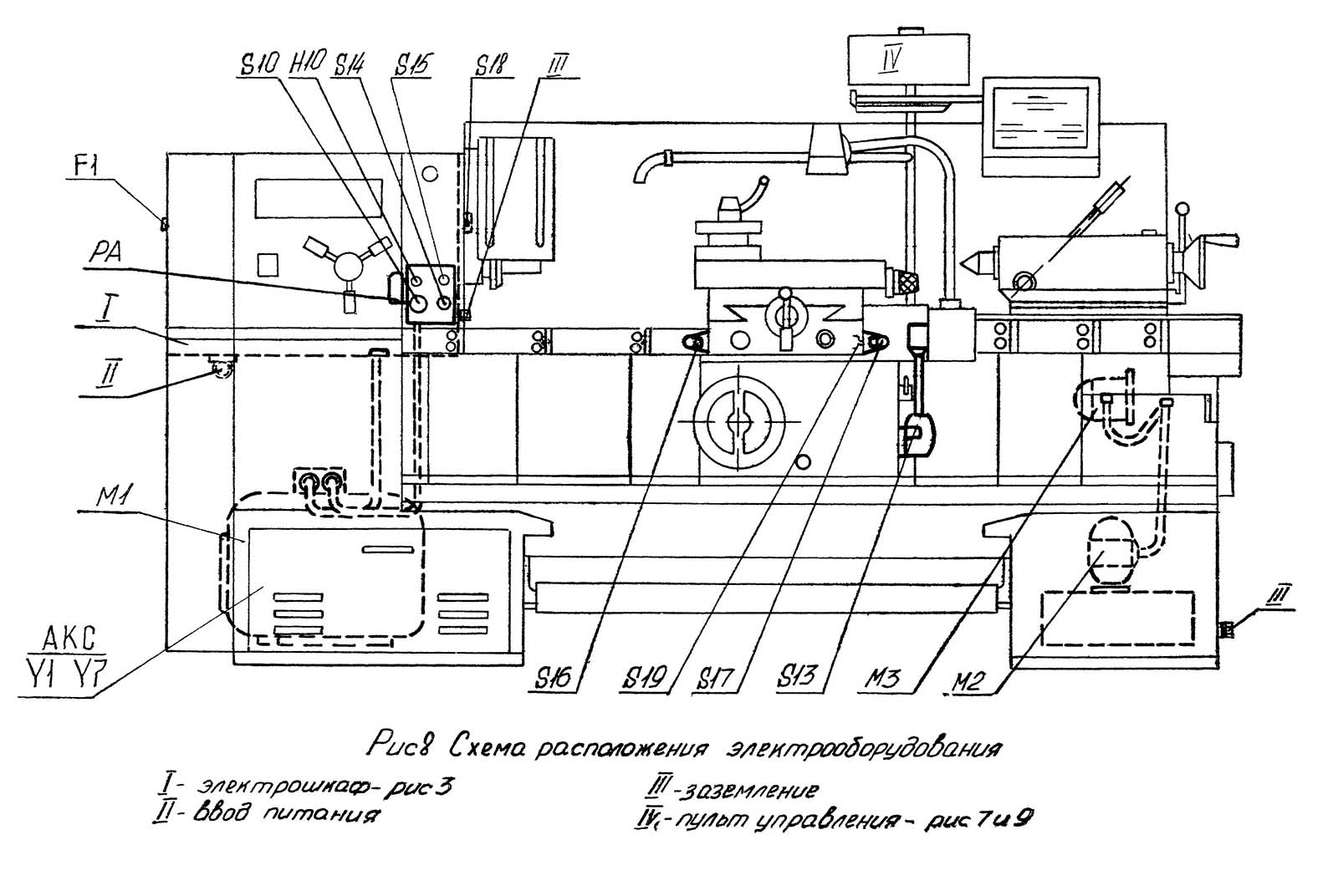
Схема розположення електроустаткування на токарному станке ФТ-11
Схема розположення електроустаткування на токарному станке ФТ-11. Дивитись у збільшеному масштабі

Пульт керування токарно-гвинторізного верстата ФТ-11
Пульт керування токарно-гвинторізного верстата ФТ-11. Дивитись у збільшеному масштабі
При монтаже верстата електрошкаф і станина должны быть надежно заземлены і подключены к цеховому заземляющему устройству. Болты заземления расположены сбоку електрошафи і на наружном торце правой тумбы верстата.
Электрическое сопротивление, измеренное между винтом заземления і любой металлической частью верстата, на которой установлены елементы електроустаткування, не должно превышать 0,1 Ома.
Категорически запрещается работать з открытой разветвительной коробкой, расположенной на фартуке верстата, і открытыми дверцами електрошафи. Необходимо также помнить, что при отключенном вводном автоматическом выключателе F1 его зажимы і вводной клеммный набор Х12 (см. рис. 3) находятся под напряжением питающей сети, поетому нужно следить за тем, чтобы закрывающие их изоляционные крышки были надежно закреплены і находились в исправном состоянии.
Категорически запрещается производить проверку целостности електрических ланцюгів і замену елементів на плате 313.000.000 (см. рис. 4) без предварительного разряда конденсаторов С1...С7.
Разряд конденсаторов производить при отключенном вводном автомате F1.
Для предотобертання самопроизвольного или случайного открывания дверец електрошафи при работе верстата, електрошкаф снабжен специальным запором, закрывающимся при помощи специального вынимающегося ключа.
Для исключения возможности увімкнення шпинделя верстата при открытом екране шпинделя предусмотрена електрична блокировка, осуществляемая конечным выключателем S18, укрепленным на шпиндельной бабке.
Перед подключением верстата к сети убедиться:
Питающие провода подвести к вводным клеммам через угольник, закрепленный знизу електрошафи. Ввод должен быть осуществлен проводом сечением не менее 2,5 мм2 з медной жилой і не менее 4 мм2 з алюминиевой жилой.
Перед первоначальным пуском верстата необходимо путем зовнішнього осмотра убедиться в надежности его подсоединения к цеховому заземляющему устройству.
Затем отключить провода живлення електродвигателей. Для етого от електрошафи отсоединить штепсельный разъем Х8 і з пускателя К1 - провода А2, В2, С2 (см. рис. 2, 3). При помощи вводного автоматичного выключателя F1 Верстат подключить к цеховой електросети.
Проверить действие блокировочного пристроя екрана шпинделя (см. рис. 1).
При помощи органів ручного керування верстата (п. 1.2.) проверить четкость срабатывания електроаппаратов і електромагнітних муфт.
При достижении четкого увімкнення електроапаратури і електромагнітних муфт подсоединить ранее отключенные провода і вставку штепсельного разъема Х8. Поочередным включением електродвигателей головного привода, ускоренного переміщення суппортной группы і насоса охлаждения проверить правильность их обертання.
Правильное подключение електронасоса охлаждения сопровождается обильным поступлением жидкости в систему охлаждения.
Двигатели головного приводу і ускоренного переміщення суппортной группы должны вращаться по часовий стрелке (смотреть со стороны робочого кінця вала електродвигуна).
Убедившись в правильности обертання електродвигателей, можно приступить к опробованию верстата в работе.
В процессе експлуатации необходимо периодически проверять состояние електропроводки і електроапаратури. Профилактические осмотры производятся в сроки, устанавливаемые ответственным за електрохозяйство предприятия (организации) з учетом местных условий.
При осмотре производятся; проверка надежности крепления електроапаратури і її контактных з'єднань; очистка електропроводки, клеммников, контактных з'єднань і корпусов електроаппаратов от пыли і грязи; проверка состояния изоляции електропроводки (нет ли механических повреждений, обугливания изоляции і т. д.) і електроаппаратов (нет ли обугливания і коробления пластмассовых деталей, скола перегородок і т. п.); проверка целостности металлорукавов і надежности их заделки в кінцівые соединения і штепсельные разъемы; проверка исправности ланцюги заземления.
Осмотр автоматических выключателей необходимо производить дополнительно після каждого отключения тока короткого замыкания.
Повторное увімкнення производится після устранения причин, вызвавших появление токов короткого замыкания.
Автоматические выключатели рассчитаны для роботи в течение всего срока експлуатации выключателя, предусмотренного техническими условиями, без зачистки контактов і смены частин.
Автоматические выключатели регулируются на нужные параметри заводом-изготовителем і при монтаже і експлуатации вскрытию не подлежат.
Так как контакты пускачів і реле изготовлены из серебросодержащих материалов, то почернение поверхности не вызывает ухудшения их роботи, а поетому зачищать контакты не рекомендуется.
Однако при образовании нагара і оплавлений контакты реле і пускачів допускается зачищать бархатным напильником, стараясь сохранить форму контактной поверхности.
Данное требование не распространяется на реле типа РПГ і РТГ, имеющие неразборные герметичные контакты.
В процессе експлуатации необходимо следить за чистотой шлифованных рабочих поверхностей електромагнитов пускачів, так как их загрязнение вызывает гудение магнитной системы.
Недопустимое гудение шихтованных магнитных систем вызывается также нарушением целостности демпферных колец на крайних кернах сердечника і отсутствием воздушного зазору в среднем керне между якорем і сердечником в сомкнутом положении.
Воздушный зазор проверяется щупом при снятом з пускателя електромагните. При величине зазору менее 0,05 мм необходимо его восстановить подпиловкой среднего керна мелким напильником до величины 0,2..0,25 мм (для пускачів ПМЕ-211) і 0,15—0,2 мм (для пускателя ПМЕ-011).
Во избежание появлений ржавчины на шлифованных поверхностях стыков сердечника з якорем пускателя нужно периодически смазывать их машинным маслом з післядующим обязательным протиранием сухой тряпкой (для предотобертання от прилипания якоря к сердечнику). При етом попадание масла на контакты не допускается.
Периодичность технических осмотров електродвигателей устанавливается в зависимости от производственных условий, но не реже одного раза в два месяца.
При технических осмотрах проверяется состояние вводных проводов обмотки статора, производится очистка електродвигателей от загрязнений, визуально контролируется надежность заземления, проверяется надежность крепления машин і соединения их валов з приводными механізмами.
Периодичность текущих ремонтов устанавливается в зависимости от производственных условий, но не реже одного раза в год.
При текущих ремонтах должна производиться: разборка електродвигателей; очистка внутренних і наружных его поверхностей; промывка механических вузлів і деталей електродвигателей; смена фланцевых прокладок (если требуется) ; промывка бензином і закладка змазки в підшипники; замена износившихся підшибників; сборка електродвигателей; проверка сопротивления изоляции обмоток статора относительно корпуса і между собой.
Сопротивление изоляции не должно быть ниже 0,5 Мом.
Замену змазки в підшипниках, как правило при нормальных условиях експлуатации следует производить через 4000 часов роботи, а при работе електродвигателей в пыльной і влажной среде — чаще (по мере необходимости).
Камеру підшибників заполнить смазкой на 2/з її объема, более плотная набивка змазки приводит к нагреву підшипника.
Рекомендуемые смазочные материалы: смазка ЦИАТИМ-203 ГОСТ 8773-73.
| Наименование параметра | ФТ-11 | 1К62 |
|---|---|---|
| Основні параметри верстата | ||
| Класс точності по ГОСТ 8-82 | П | Н |
| Наибольший диаметр заготовки над станиной, мм | 500 | 400 |
| Наибольший диаметр заготовки над суппортом, мм | 260 | 220 |
| Наибольшая длина заготовки (РМЦ), мм | 1000, 1500, 2000 | 710, 1000, 1400 |
| Наибольшая масса заготовки в патроне, кг | 500 | |
| Наибольшая масса заготовки в центрах, кг | 1500 | |
| Коробка швидкостей. Шпиндель | ||
| Диаметр сквозного отверстия в шпинделе, мм | 66 | 47 |
| Наибольший диаметр прутка, мм | 45 | |
| Число ступеней частот прямого обертання шпинделя | 21 | 24 |
| Частота прямого обертання шпинделя, об/мин | 10..2000 | 12,5..2000 |
| Число ступеней частот обратного обертання шпинделя | 9 | 12 |
| Частота обратного обертання шпинделя, об/мин | 50..2000 | 19..2420 |
| Размер внутреннего конуса в шпинделе, М | 80 по ГОСТ 2575-79 | Морзе 6 |
| Кінець шпинделя по ГОСТ 12593-72 | 8М | 6К |
| Торможение шпинделя | имеется | имеется |
| Суппорт | ||
| Наибольший поперечний ход суппорта, мм | 250 | |
| Наибольший продольный ход суппорта, мм | 640, 930, 1330 | |
| Наибольший ход верхнего суппорта (резцовых салазок), мм | 140 | 140 |
| Цена деления лимба верхнего суппорта (резцовых салазок), мм | 0,05 | |
| Наибольшее усилие різання, Н | 16000 | |
| Коробка подач | ||
| Число ступеней продольных подач | 24 | 49 |
| Пределы рабочих подач продольных, мм/об | 0,05..10,6 | 0,07..4,16 |
| Число ступеней поперечных подач | 24 | 49 |
| Пределы рабочих подач поперечных, мм/об | 0,025..5,3 | 0,035..2,08 |
| Скорость быстрых перемещений суппорта, продольных, м/мин | 4,0 | 3,4 |
| Скорость быстрых перемещений суппорта, поперечных, м/мин | 2,0 | 1,7 |
| Количество нарезаемых різьб метрических | 30 | 44 |
| Пределы шагов нарезаемых різьб метрических, мм | 0,5..112 | 1..192 |
| Количество нарезаемых різьб дюймовых | 26 | 38 |
| Пределы шагов нарезаемых різьб дюймовых | 56..0,25 | 24..2 |
| Количество нарезаемых різьб модульных | 30 | 20 |
| Пределы шагов нарезаемых різьб модульных | 0,5..112 | 0,5..48 |
| Кількість нарізних різьблення питних | 26 | 37 |
| Межі кроків різьблення питних | 56..0,25 | 1..96 |
| Задня бабка | ||
| Найбільше переміщення пінолі, мм | 200 | |
| Центр | Морзе 5PT | |
| Електроустаткування, приводи | ||
| Кількість електродвигунів на верстаті | 3 | 4 |
| Електродвигун головного приводу, кВт | 11 | 10 |
| Електродвигун швидких переміщень, кВт | 0,55 | 0,8 |
| Електродвигун гідростанції, кВт | ні | 1,1 |
| Електродвигун насоса охолодження, кВт | 0,12 | 0,125 |
| Насос охолодження (помпа) | ПА-22 | ПА-22 |
| Габарити та маса верстата | ||
| Габарити верстата (довжина ширина висота) (РМЦ = 1000), мм | 2856 х 1370 х 1435 | 2812 х 1166 х 1324 |
| Маса верстата (РМЦ = 1000), кг | 3445 | 2140 |