metalinstryment.com
Довідник по металорізальних верстатів та пресовому обладнанні

ВФ-87 Верстат вертикальний консольно-фрезерный
схеми, опис, характеристики

Верстат вертикальний фрезерный консольный ВФ-87







Відомості про виробника фрезерного верстата ВФ-87

Вертикальный консольно-фрезерный верстат ВФ-87 выпускался Вильнюсским станкостроительным заводом "Жальгирис".

В 1947 году станкостроительный завод «Жальгирис» выпустил первую продукцию - 13 настольно-сверлильных верстатів.

В 1949 году было начато освоение более сложной продукции – поперечно–строгальных верстатів, за которыми післядовало производство горизонтальных, вертикальних і универсальных консольно–фрезерных верстатів.





Верстати, выпускаемые Вильнюсским станкостроительным заводом "Жальгирис"


ВФ-87 Верстат вертикальний консольно-фрезерный спеціальний. Назначение і область применения

Консольно-фрезерный вертикальний верстат ВФ-87 предназначен для обробки различных корпусных і других деталей, в основном из цветных металлов, легких сплавов, пластических масс.

Целесообразно применение верстата ВФ-87 для обробки разновысоких поверхностей, в том числе подрезки бобышек, платиков, фрезерування окон і т. д. В качестве режущего инструмента могут быть использованы торцовые, кінцівые і другие фрезы из быстрорежущей стали или оснащенные пластинками твердого сплава.

Верстат применяется в оптико-механической, електротехнической і других приборостроительных отраслях промышленности.

Особливості конструкції і принцип роботи верстата

Верстат имеет степень унификации з серийно выпускаемым верстатом 6Р80Г не менее 65%.

Верстат не встраивается в автоматическую линию і не имеет загрузочных і транспортирующих устройств.

Класс точності верстата Н.





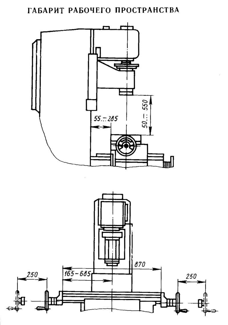
Габаритные розміри робочого простору фрезерного верстата ВФ-87

ВФ-87 Габаритные розміри робочого простору універсального горизонтального консольно-фрезерного верстата

Габарит робочого простору фрезерного верстата ВФ-87


Присоединительные базы фрезерного верстата ВФ-87

ВФ-87 . Шпиндель. Присоединительные базы універсального горизонтального консольно-фрезерного верстата

Установчі базы фрезерного верстата ВФ-87. Шпиндель



Загальний вигляд горизонтального консольно-фрезерного верстата ВФ-87

Фото консольно-фрезерного верстата ВФ-87

Фото консольно-фрезерного верстата ВФ-87


Фото консольно-фрезерного верстата ВФ-87

Фото консольно-фрезерного верстата ВФ-87


Настановне креслення консольно-фрезерного верстата ВФ-87

Настановне креслення консольно-фрезерного верстата ВФ-87







6Р80 Верстат вертикальний консольно-фрезерный. Відеоролик.




Технічні характеристики верстатів моделей ВФ-87

Наименование параметра 6Р80г ВФ-87 6Р10 6Р80Ш
Основні параметри верстата
Класс точності Н Н Н П
Розміри рабочей поверхности стола, мм 800 х 200 800 х 260 800 х 200 800 х 200
Расстояние от оси шпинделя до поверхности стола, мм 50..350 - - 50..350
Расстояние от торца шпинделя до поверхности стола, мм - 50..550 50..350 50..350 Наибольшее расстояние от торца шпинделя до підшипника серьги, мм 450 - - 350 Расстояние от оси шпинделя до хобота, мм 123 - - 123 Расстояние от задньої кромки стола до вертикальних направляючих станины, мм 80..240 55..285 80..240 80..240 Расстояние от оси шпинделя до вертикальних направляючих станины (вылет), мм - 265 - Шпиндель Частота обертання горизонтального шпинделя, об/мин 50..2240 - - 50..2240 Частота обертання вертикального шпинделя, об/мин - 71..3150 50..2240 - Количество швидкостей горизонтального і вертикального шпинделя 12 12 12 12 Перемещение пиноли (гильзы) шпинделя, мм - 60 60 Перемещение пиноли шпинделя на одно деление лимба, мм - 0,05 0,05 Угол поворота фрезерной головки в поздовжньої плоскости, град - - ±45° ±90° Кінець горизонтального шпинделя по ГОСТ 836-72 40 - - 40 Кінець вертикального шпинделя по ГОСТ 836-72 40 - 40 Шпиндель фрезерной головки Угол поворота фрезерной головки в поперечної плоскости, град - - +30°-45 Внутренний конус шпинделя фрезерной головки - - Морзе 4 Частота обертання шпинделя фрезерной головки, об/мин - - - 56..2500 Количество швидкостей шпинделя фрезерной головки - - - 12 Стол. Подачи стола Наибольший продольный ход стола (X), мм 500 500 500 500 Наибольший поперечний ход стола (Y), мм 160 230 160 160 Наибольший вертикальний ход стола (Z), мм 300 350 300 300 Пределы поворота стола, град - - ±45° - Пределы продольных подач стола (X), мм/мин 25..1120 25..1120 25..1120 25..1120 Пределы поперечных подач стола (Y), мм/мин 25..1120 25..1120 25..1120 25..1120 Пределы вертикальних подач стола (Z), мм/мин 12,5..560 12,5..560 12,5..560 12,5..560 Количество ступеней подач стола (продольных, поперечных, вертикальних) 12 12 12 12 Скорость быстрых перемещений (продольных, поперечных/ вертикальних) X, Y/ Z, м/мин 2,3/ 2,3/ 1,12 2,3/ 2,3/ 1,12 2,3/ 2,3/ 1,12 2,3/ 2,3/ 1,12 Перемещение стола на одно деление лимба (продольное, поперечное/ вертикальное), мм 0,05/ 0,02 0,05/ 0,02 0,05/ 0,02 0,05/ 0,02 Перемещение стола на один оборот лимба (продольное, поперечное/ вертикальное), мм 6/ 2 6/ 2 6/ 2 6/ 2 Наибольшее допустимое усиле різання (продольное/ поперечное/ вертикальное), кг 500 Механіка верстата Выключающие упоры подачі (поздовжньої, поперечної, вертикальной) Есть Есть Есть Есть Блокировка ручной і механической подач (поздовжньої, поперечної, вертикальной) Есть Есть Есть Есть Блокировка раздельного увімкнення подач Есть Есть Есть Есть Торможение шпинделя Есть Есть Есть Есть Предохранительная муфта от перегрузок Есть Есть Есть Есть Електроустаткування і приводы верстата Количество електродвигателей на станке 3 3 3 4 Електродвигун головного руху ДШ, кВт (об/мин) 3,0 (1430) 3,0 (1500) 3,0 (1430) 3,0 (1430) Електродвигун приводу подач ДП, кВт (об/мин) 0,8 (1360) 0,8 (1360) 0,8 (1360) Електродвигун насоса СОЖ ДО, кВт (об/мин) 0,12 (2800) 0,12 (2800) 0,12 (2800) 0,12 (2800) Електродвигун фрезерной головки ДГ, кВт (об/мин) - - - 1,1 (1400) Суммарная мощность всех електродвигателей, кВт Габарити і масса верстата Габарити верстата (длина ширина высота), мм 1525 х 1875 х 1515 1895 х 1875 х 2020 1435 х 1875 х 1750 1820 х 1875 х 1765 Масса верстата, кг 1240 1600 1270 1340
  1. Аврутин С.В. Основы фрезерного дела, 1962
  2. Аврутин С.В. Фрезерне дело, 1963
  3. Ачеркан Н.С. Металлорежущие верстати, Том 1, 1965
  4. Барбашов Ф.А. Фрезерне дело 1973, с.141
  5. Барбашов Ф.А. Фрезерные роботи (Профтехобразование), 1986
  6. Блюмберг В.А. Справочник фрезеровщика, 1984
  7. Григорьев С.П. Практика координатно-расточных і фрезерных работ, 1980
  8. Копылов Р.Б. Работа на фрезерных верстатах,1971
  9. Косовский В.Л. Справочник молодого фрезеровщика, 1992, с.180
  10. Кувшинский В.В. Фрезерование,1977
  11. Ничков А.Г. Фрезерные верстати (Библиотека станочника), 1977
  12. Пикус М.Ю. Справочник слесаря по ремонту металлорежущих верстатів, 1987
  13. Плотицын В.Г. Расчёты настроек і наладок фрезерных верстатів, 1969
  14. Плотицын В.Г. Наладка фрезерных верстатів,1975
  15. Рябов С.А. Современные фрезерные верстати і их оснастка, 2006
  16. Схиртладзе А.Г., Новиков В.Ю. Технологическое обладнання машиностроительных производств, 1980
  17. Тепинкичиев В.К. Металлорежущие верстати, 1973
  18. Чернов Н.Н. Металлорежущие верстати, 1988
  19. Френкель С.Ш. Справочник молодого фрезеровщика (3-е изд.) (Профтехобразование), 1978