Виробник універсального круглошліфувального верстата для перешліфування шийок колінвалів моделі 3В423 - Лубенський верстатобудівний завод "Комунар" .
Завод "Фенікс" заснований в 1915 році і в 1918 отримав назву "Комунар". З 1957 завод спеціалізується на виробництві універсальних і спеціальних круглошліфувальних верстатів з різним рівнем автоматизації, від верстатів з ручним керуванням до верстатів з сучасними ЧПУ.
Круглошліфувальний верстат 3В423 запущений у виробництво в 1977 році і є подальшим удосконаленням верстата моделі 3А423 .
Шліфувальний верстат 3В423 призначений для перешліфування корінних і шатунних шийок колінчастиних валів довжиною до 1600 мм і вагою до 150 кг, а також конічних хвостовиків з ухилом до 3° колінчастиних валів методом врізного шліфування при ручному подачі.
Верстати 3В423 можуть застосовуватись на авторемонтних заводах та інших підприємствах, зайнятих відновленням колінчастиних валів, що здійснюють ремонт двигунів внутрішнього згоряння легкових та вантажних автомобілів, тракторів, мінітракторів, мотоблоків та іншої техніки.
Забудовник – Лубенський верстатобудівний завод «Комунар».
Колінчастиний вал служить для сприйняття зусиль від шатунів, пов'язаних з поршнем двигуна, та передачі цих зусиль на трансмісію автомобіля чи трактора. Таким чином, колінчастиний вал перетворює змінний зворотно-поступальний рух поршнів у обертальний. У колінчастому валі піддаються шліфування корінні та шатунні шийки, при цьому повинні бути витримані допуски:
Шліфування шийок колінчастиних валів представляє значні труднощі через його складну конфігурацію, неврівноваженість, обмеженість шийки двома бортами, більшого відношення довжини валу до діаметра шийок і тому зниженої його жорсткості. Корінні шийки шліфують на круглошліфувальних верстатах великої потужності.
Колінчастиний вал повинен бути попередньо збалансований спільно з передньою та задньою бабками.
Балансування колінчастого валу при шліфуванні шатунних шийок здійснюється рухомими вантажами, розміщеними позаду бабок виробу в неробочій зоні. Балансування важких колінчастиних валів здійснюється зміщенням додаткових рухомих вантажів на планшайбі патрона.
Для досягнення циліндричності шийки, що шліфується, верхній стіл допускає невеликий поворот.

Габарит робочого простору верстата 3в423

Фото круглошліфувального верстата 3в423

Процес шліфування на круглошліфувальному верстаті 3в423

Зразок шліфування на круглошліфувальному верстаті 3в423

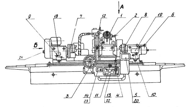
Розташування складових частинин круглошліфувального верстата 3в423

Розташування органів керування круглошліфувальним верстатом 3в423

Розташування органів керування на пульті верстата 3в423

Кінематична схема круглошлифовального верстата 3в423
Схема кінематична круглошлифовального верстата 3В423. Дивитись у збільшеному масштабі
Посредством ряда кинематических ланцюгів і гідравлічного приводу в станке осуществляются наступні руху

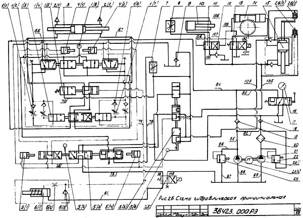
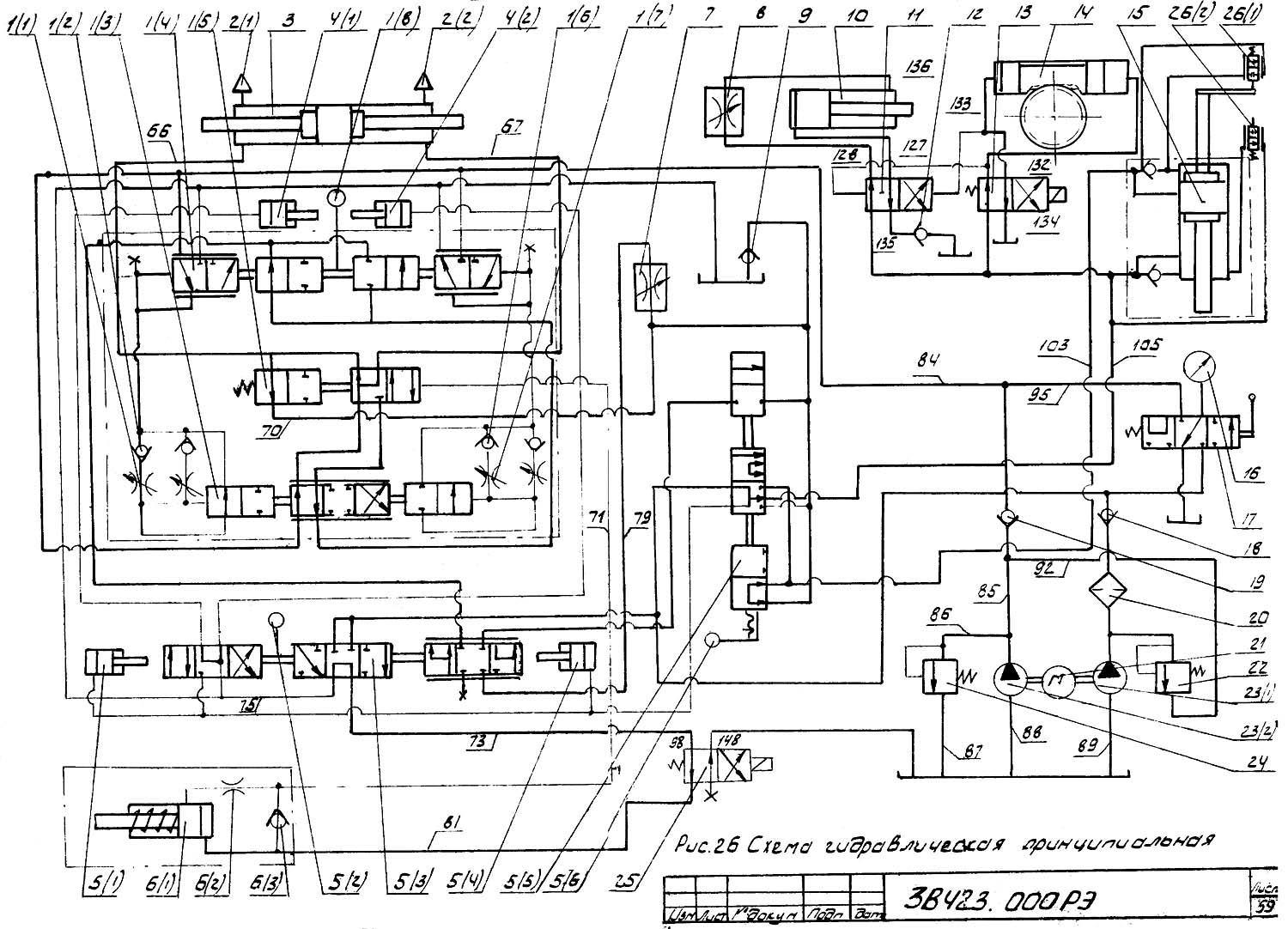
Гідравлічна схема круглошлифовального верстата 3в423
Схема гідравлічна круглошлифовального верстата 3В423. Дивитись у збільшеному масштабі

Настановне креслення круглошлифовального верстата 3в423
| Наименование параметра | 3В423 | 3Д4230 |
|---|---|---|
| Основні параметри | ||
| Класс точності по ГОСТ 8-71 | П | В/А |
| Наибольший диаметр обертання устанавливаемого вироби, мм | 580 | 580 |
| Наибольшая длина устанавливаемого вироби в центрах, мм | 1600 | 1600 |
| Наибольшая длина устанавливаемого вироби в патронах, мм | 1450 | 1450 |
| Наибольший диаметр шлифования без люнета, мм | 150 | 200 |
| Наибольший диаметр шлифования в люнете, мм | 110 | 130, 200 |
| Наименьший диаметр шлифования в люнете, мм | 30 | 25 |
| Расстояние от оси шпинделя передньої бабки до зеркала стола - высота центров, мм | 300 | 300 |
| Наибольшая длина шлифования, мм | 1600 | 1600 |
| Наибольший радиус кривошипа, мм | 105 | 110 |
| Наибольшая масса обрабатываемого вироби, кг | 150 | 160 |
| Станина і столы верстата | ||
| Наибольшее продольное перемещение стола от руки/ от гідравлики, мм | 1600/ 1600 | 1600/ 1600 |
| Скорость переміщення стола от гідросистемы наименьшая/ наибольшая, м/мин | 0,2/ 4,0 | 0,2/ 5,0 |
| Ручное замедленное/ ускоренное переміщення стола за один оборот маховика, мм | 2/ 15,2 | |
| Шлифовальная бабка | ||
| Наибольшее перемещение шлифовальной бабки, мм | 175 | |
| Диаметр шлифовального круга - наименьший/ наибольший, мм | 750/ 900 | 750/ 900 |
| Диаметр шлифовального круга - посадочный, мм | 305 | 305 |
| Наибольшая высота устанавливаемого круга, мм | 63 | 63 |
| Частота обертання шпинделя шлифовальной бабки, об/мин | 740 | 740 |
| Окружная скорость шлифовального круга, м/с | 35 | 35 |
| Кінець шлифовального шпинделя, мм | 1:5 | |
| Механізм поперечных подач шлифовальной бабки | ||
| Наибольшее перемещение шлифовальной бабки по винту, мм | 175 | 175 |
| Быстрый подвод шлифовальной бабки, мм | 100 | 100 |
| Время швидкого подвода шлифовальной бабки, с | ||
| Толчковая подача - периодическая подача з реверсированием стола (на один зуб храпового колеса), мм | 0,0025 | |
| Цена деления лимба поперечної подачі, мм | 0,005 | |
| Цена деления лимба тонкой поперечної подачі, мм | 0,0025 | |
| Величина поперечного переміщення шлифовальной бабки за один оборот маховика (лимба), мм | 0,5 | |
| Скорость швидкого установочного переміщення шлифовальной бабки, мм/мин | ||
| Точность обробки - конусность, мкм | 2,5 | 2,5 |
| Точность обробки - овальность, мкм | 2,5 | 2,5 |
| Передня бабка | ||
| Частота обертання вироби (при частоте тока 50 Гц), об/мин | 30; 60; 90; 180 | 30; 60; 85; 174 |
| Количество швидкостей обертання вироби | 4 | 4 |
| Конус шпинделя передньої бабки | Морзе 5 | |
| Задня бабка | ||
| Величина відведення пиноли задньої бабки от руки рычагом/ винтом, мм | 35/ 55 | |
| Конус шпинделя пиноли задньої бабки | Морзе 4 | |
| Привід і електрообладнання верстата | ||
| Количество електродвигателей на станке | 7 | 7 |
| Електродвигун шпинделя шлифовальной бабки М1, кВт | 11,0 | 11,0 |
| Електродвигун насоса системы охлаждения М2, кВт | 0,25 | 0,25 |
| Електродвигун магнитного сепаратора М3, кВт | 0,09 | 0,09 |
| Електродвигун основного насоса гідросистемы М4, кВт | 2,2 | 2,2 |
| Електродвигун насоса системы змазки шпинделя М5, кВт | 0,09 | 0,09 |
| Електродвигун насоса системы змазки направляючих стола М6, кВт | 0,09 | 0,09 |
| Електродвигун приводу вироби М7, кВт | 1,75 | 1,7 |
| Суммарная мощность електродвигателей, кВт | 14,63 | |
| Габаритные розміри і масса верстата | ||
| Габаритные розміри верстата (длина х ширина х высота), мм | 5500 х 2550 х 1670 | 5600 х 2600 х 1900 |
| Масса верстата з електрообладнанням і охолодженням, кг | 8180 | 7500 |