Виробником горизонтально-розточувальних верстатів моделей 2657 є Ленінградський верстатобудівний завод ім. Свердлова , заснований у 1868 році.
З 1949 року підприємство важкого верстатобудування. Почав випуск металорізальних верстатів власної конструкції (горизонтально-розточувальних, координатно-розточувальних, копіювально-фрезерних, типу «обробний центр» та ін.)
У 1962 на базі заводу створено Ленінградське верстатобудівне виробниче об'єднання.
Верстат моделі 2657 має виконання BI та призначений для обробки важких деталей вагою до 12 т, встановлених на знімному столі, та без обмеження ваги при встановленні на плиті верстата.
Верстат горизонтально-розточувальної з рухомою стойкою 2657 призначений для обробки важких корпусних деталей великого габариту і ваги, що мають точні отвори, пов'язані між собою точними координатами, в умовах одиничного та серійного виробництва.
На верстаті 2657 можна проводити свердління, розточування, зенкерування, розгортання отворів, обточування торців радіальним супортом, фрезерування торців і нарізування різьблення шпинделем розточування.
Верстат 2657 має передню поперечно-рухливу стійку, нерухому плиту, знімний поздовжньо-рухливий поворотний стіл, радіальний супорт на вбудованій планшайбі, висувний розточувальний шпиндель і переносну задню стійку з люнетом.
По направляючих станини переміщуються сани передньої стійки в поперечному напрямку стосовно осі шпинделя.
По направляючих передньої стійки переміщається у вертикальному напрямку шпиндельна бабка верстата з містком для розміщення робітника.
На чавунній плиті кріпиться виріб, що обробляється.
У тих випадках, коли при обробці виробу потрібне застосування планшайби або радіального супорта, необхідно забезпечити поздовжні переміщення виробу для врізання інструменту, що закріплюється на планшайбі або радіальному супорті. З цією метою верстат забезпечений знімним поворотним столом, на якому може бути встановлений виріб, що обробляється вагою до 12 т.
Стіл отримує поздовжнє переміщення (стосовно осі шпинделя верстата) за допомогою саней, встановлених на власній станині.
Задня переносна стійка має поперечне переміщення за допомогою саней, встановлених на станині задньої стійки. Остання розміщується на плиті верстата. По направляючих задньої стійки переміщається у вертикальному напрямку люнет.
Головним рухом верстата є обертання шпинделя і обертання планшайби.
Якщо оброблений виріб кріпиться безпосередньо на нерухомій плиті, рух подачі повідомляється шпинделю в осьовому напрямку або передній стійці в поперечному напрямку, або шпиндельної бабці у вертикальному напрямку при роботі інструментом, закріпленим на планшайбі або в радіальному супорті.
Якщо виріб кріпиться на столі, рух подачі можна повідомляти розточувальному шпинделю, передній стійці в поперечному напрямку або шпиндельній бабці у вертикальному напрямку при роботі інструментом, закріпленим на планшайбі або радіальному супорті, а також столу в поздовжньому напрямку.
Шпиндель приводиться у обертання електродвигуном змінного струму через коробку швидкостей.
Перемикання швидкостей шпинделя здійснюється спеціальним механізмом та автоматичним імпульсним пристроєм.
Привід вбудованої планшайби з радіальним супортом може бути вимкнений при обертанні шпинделя.
Робочі подачі та настановні переміщення стійки, бабки, шпинделя, радіального супорта та столу виробляються окремими електродвигунами постійного струму з широким діапазоном регулювання.
Подачі можна змінювати у процесі різання електричним варіатором.
Важкі розточувальні верстати, призначені для одиничної або серійної обробки великогабаритних і важких корпусних деталей вагою до 8 т і вище, випускаються з діаметрами шпинделя:
Верстати моделей 2654, 2656 і 2657 , що випускаються заводом імені Я. М. Свердлова (Ленінград), мають загальну конструктивну базу і різняться залежно від виконання (Б та В), конструкції та розмірів окремих вузлів.
Найбільший діаметр розточування, що рекомендується, на цих верстатах 1000 мм. Крім розточування, можна проводити свердління, зенкерування, розгортання, обточування, фрезерування та нарізування внутрішньої різьби різцем, закріпленим у розточувальному шпинделі.
Верстат моделі 2654 з діаметром шпинделя 150 мм є базовою моделлю. Він має виконання Б-1 з поворотним столом та призначений для обробки деталей до 8 т.
Верстат моделі 2656 - колонка має виконання В-II. Він складається з нерухомої плити, поперечно-рухомої передньої стійки зі шпиндельною бабкою і не має планшайби з радіальним супортом. Посилений шпиндельний пристрій з діаметром розсувного шпинделя 175 мм, що володіє підвищеною жорсткістю, дозволяє вести обробку з великими консольними вильотами останнього. На верстаті можуть оброблятися великогабаритні деталі, вага яких не обмежена.
Верстат моделі 2657 - колонка на відміну від верстата моделі 2656 має виконання BI; він оснащується планшайбою з радіальним супортом і знімним поздовжньо-рухомим поворотним столом. Діаметр шпинделя 150 мм. Цей верстат призначений для обробки великих корпусних деталей без обмеження ваги при встановленні на нерухомій плиті та вагою до 12 т і габаритів, що допускають їх встановлення на знімному столі.
Верстати моделей 2654 та 2657 мають однаковий шпиндельний пристрій, який складається з розточувального шпинделя, порожнистого шпинделя та шпинделя планшайби.
У верстаті моделі 2656 є розточувальні та порожнисті шпинделі; планшайба з радіальним супортом відсутня.
Планшайба може обертатися одночасно з шпинделем (з меншою швидкістю) або може бути відключена. Привід обертання шпинделя та планшайби здійснюється від електродвигуна змінного струму через коробку швидкостей, перемикання яких проводиться імпульсним пристроєм, аналогічним застосованому у верстатах 262Г та 2620.
Робочі подачі та настановні переміщення всіх рухомих органів верстата (стійки, бабки, шпинделя, радіального супорта та столу) здійснюються від окремих електродвигунів постійного струму з широким діапазоном зміни швидкостей. Величина подачі встановлюється і може змінюватися в процесі різання електричним варіатором. Керування повільними та швидкими установочними переміщеннями здійснюється за допомогою електрооператора та відповідних кнопок. Тонка осьова установка шпинделя може виконуватися вручну. Для вертикальної установки шпиндельної бабки та поперечної установки стола або передньої стійки по координатах ці верстати мають штанги з пересувними упорами, що діють на пристрої точного автоматичного електрозупинки. У ряді випадків ці пристрої можуть замінити кондуктори. Для спостереження за суміщенням осі люнета переносної задньої стійки з віссю шпинделя верстатів - колонок моделей 2656 та 2657 є оптичний прилад.

Габарит робочого простору верстата 2657
Габарит робочого простору верстата 2657. Завантажити у збільшеному масштабі

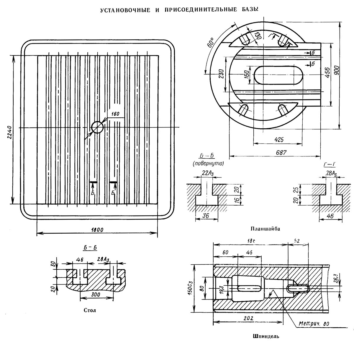
Посадочні та приєднувальні бази верстата 2657
Посадкові та приєднувальні бази верстата 2657. Завантажити у збільшеному масштабі

Фото горизонтально-розточувального верстата 2657

Фото горизонтально-розточувального верстата 2657
Чавунна нерухома плита розточувальної колонки має велику жорсткість за рахунок внутрішніх зв'язків. Вона встановлюється та кріпиться на фундаменті за допомогою клинових регульованих черевиків та фундаментних болтів.
Вивіряння її робочої поверхні в поздовжньому та поперечному напрямках проводиться за допомогою точних рівнянь.
Вироб, що обробляється, кріпиться на нерухомій плиті за допомогою притисків, прихватів, планок і болтів, головки яких розміщуються в Т-подібних пазах робочої поверхні плити.
Станина передньої стійки верстата є чавунним виливком коробчатої форми з внутрішніми зв'язками. Вона має велику довжину, що забезпечує переміщення передньої стійки на 3200 мм у напрямку, перпендикулярному до осі шпинделя. На станині розташовані три напрямні - дві плоскі і одна, що має форму рівнобічної трапеції, що сприяє підвищенню точності верстата.
По направляющим станины перемещаются сани, на которых установлена і жестко закреплена передняя стойка верстата. Между станиной і санями передньої стойки расположены тележки з катками і плоскими пружинами рессорного типа (фиг. 97), которые рассчитаны таким образом, что усилие, з которым они воздействуют на сани знизу, составляет около 50% от веса колонки (саней, стойки, шпиндельной бабки з мостиком і противовесов).
Следовательно, нагрузка на направляющие станины і саней уменьшается вдвое, что делает перемещение колонки более плавным, в особливості при малых скоростях, увеличивает чувствительность или способность переміщення на малые расстояния 0,03—0,10 мм тяжелого подвижного вузла, уменьшает износ направляючих і обеспечивает нормальные условия роботи отдельного електродвигуна постоянного тока (N = 4,4 кВт; п = 1500 об/мин.) приводу переміщення колонки. Это достигается тем, что з применением разгружающего рессорного пристроя (тележек) уменьшаются силы трения ковзання і покоя колонки і уменьшается пусковой момент при включении електродвигуна под нагрузку.
На санях передньої стойки (фиг. 98) закреплен зубчатый редуктор приводу переміщення колонки от електродвигуна і короткий винт, сцепляющийся з винтовой рейкой, прикрепленной нерухомо к станине. Пара винт — винтовая рейка имеет пристрій для выбора зазору, что необходимо при попутном фрезеровании.
Структурна формула кінематичної ланцюги перемещений стойки:
ЭД - (17/158) - (20/102) - (19/31) - (k=1; t=36)/рейка - поперечное перемещение передньої стойки
Скорость установочного переміщення саней изменяется в пределах 1,2..1600 мм/мин за счет изменения числа оборотів електродвигуна постоянного тока. Во избежание сдвига колонки в процессе растачивания сани передньої стойки имеют централизованный електромеханический зажим для закрепления их на станине з помощью рычажновинтовой передачи.
В санях передньої стойки смонтированы: привід вертикального переміщення шпиндельной бабки от отдельного електродвигуна постоянного тока N = 4,4 кВт; п = 1500 об/мин, і плунжерный насос для змазки направляючих, приводимый в действие ходом саней і снабженный рукояткой для ручной подкачки масла перед началом переміщення саней. Структурна формула кінематичної ланцюги перемещений шпиндельной бабки:епло
ЭД - (17/112) - (26/73) - (20/48) - (k=2; t=10) - вертикальное перемещение шпиндельной бабки
К стойке прикреплена металлическая лестница. Для уравновешивания шпиндельной бабки внутри стойки имеются два противовеса, подвешенные на тросах, перекинутых через блоки, закрепленные на верхней частини стойки. Противовесы для уравновешивания шпиндельной бабки, находящиеся, как обычно, внутри передньої стойки, снабжены пристрійм, которое устраняет возможность падения тяжелого груза при обрыве троса (фиг. 99). В етом случае пружина 2, размещенная в противовесе 1, поворачивает рычаг 4, посредством которого противовес подвешен к тросу 5, і рычаг заскакивает своим зубом в одну из впадин внутренней стенки 5 стойки, предотвращая падение противовеса.
В корпусе шпиндельной бабки смонтированы привід головного руху верстата і шпиндельное пристрій. Она имеет встроенную планшайбу з радиальным суппортом.
На корпусе смонтированы отдельные вузли: пристрій для передачи обертання от головного електродвигуна, хвостовая часть і механізмы керування верстатом.
Шпиндельная бабка имеет мостик для робочого. Это необходимо тогда, когда робота ведется в верхнем положении шпиндельной бабки.
Привід головного руху. Главный електродвигатель верстата мощностью N = 14 кВт, п = 1450 об/мин, расположен на шпиндельной бабке. На его фланце укреплен двухскоростной зубчатый редуктор, передающий вращение первому валику коробки швидкостей через клиноременную передачу со шкивами D1 = 190 мм і D2 = 290 мм (фиг. 98).
Натяжение ремней осуществляется поворотом корпуса зубчатого редуктора на фланце електродвигуна.
Привід головного руху дает возможность получать большие крутящие моменты на шпинделе і планшайбе при работе на малых і средних скоростях обертання; в етом случае передача обертання шпинделю і планшайбе от коробки швидкостей осуществляется зубчатыми колесами.
При работе расточного шпинделя на высоких числах оборотів он получает вращение от коробки швидкостей через клиноременную передачу, что обеспечивает плавную его работу.
Структурна формула кінематичної ланцюги головного руху:

Как видно из структурной формулы і схеми, шпиндель или планшайба получают соответственно 36 і 18 различных швидкостей обертання через зубчасті колеса 32/64 і 18/72 (7,5..375 об/мин. — для шпинделя і 3,75..192 об/мин, для планшайби). Через зубчасті колеса 48/24 і клиноременную передачу со шкивами D=210/D=270 шпиндель получает 475..950 об/мин.
Всего шпиндель получает 22 различные скорости обертання (часть чисел оборотів повторяется), а планшайба 18 швидкостей обертання.
Все передвижные блоки редуктора і коробки швидкостей перемещаются по многошлицевым валикам з помощью електроселекторного механізма, имеющего то же принципиальное пристрій, что і аналогичный механізм верстата моделі 262Г.
Различие заключается в том, что здесь предусмотрены отдельные диски з отверстиями для керування каждым перемещающимся блоком, а также отдельный вспомогательный двигатель N = 0,5 кВт, п = 1410 об/мин для механического переключения вместо ручного. Так же, как і в станке 262Г, механізм имеет импульсное пристрій, позволяющее осуществлять переключение швидкостей на ходу верстата, з автоматическим електрическим торможением і остановкой головного електродвигуна в момент переключения.
Рукояткой переключения швидкостей, расположенной на пульті бабки, включается і отключается главный електродвигатель в процесс переключения скорости головного руху. Все зубчасті колеса приводу головного руху изготовлены из стали 20Х, цементированы і закалены до HRC = 59. У наиболее быстроходных шестерен зубья шлифованы.
Шпиндельное пристрій. Принципиальная конструкция і компоновка шпиндельного пристроя верстата аналогичны шпиндельному устройству верстата моделі 2620. Отличие заключается головним образом в размерах і конструкції окремих деталей. Шпиндельное пристрій состоит из расточного шпинделя диаметром 150 мм, полого шпинделя і шпинделя планшайби.
Планшайба верстата крепится на конической головной частини шпинделя планшайби большого диаметра, который смонтирован в передньої і промежуточных стенках корпуса бабки на прецизионных конических роликопідшипниках.
Через полость шпинделя планшайби проходит внутренний полый шпиндель, который передним концом крепится в головной частини шпинделя планшайби, а задним — в задньої стенке корпуса бабки на прецизионных конических роликопідшипниках.
Наружное кольцо переднего прецизійного цилиндрического роликопідшипника помещено в расточке головной частини шпинделя планшайби, а внутреннее кольцо з коническим отверстием для создания предварительного натяга підшипника — на головной частини полого шпинделя.
Азотированный з високою поверхностной твердостью расточной шпиндель размещается в азотированном полом шпинделе, сообщающем ему при помощи шпонок вращательное движение. Осевое перемещение расточного шпинделя осуществляется ползуном хвостовой частини, в котором смонтированы прецизионные упорные шарикопідшипники, воспринимающие осевые зусилля, возникающие в процессе різання.
Планшайба може вращаться одновременно з вращением расточного шпинделя, либо може быть отключена.
Планшайба з радиальным суппортом. Суппорт получает радиальное перемещение по планшайбе от отдельного електродвигуна (фиг. 98) постоянного тока (N = 1,3 кВт, п = 1500 об/мин.) з редуктором, установленным на верхней стенке корпуса бабки, через планетарный механізм 1, зубчатый венец z = 126, сидящий свободно на ступице планшайби, і короткий винт, сцепленный з винтовой рейкой суппорта. Здесь предусмотрено пристрій для устранения зазору между винтом і винтовой рейкой, что исключает игру в направляючих незажатого, вращающегося вместе з планшайбой, суппорта при радиальной подаче.
Отсчет величины переміщення радиального суппорта производится по лимбу 12 (фиг. 100), связанному з суппортом кінематичної ланцюгю (фиг. 98):
Хвостовая часть. На хвостовой частини закреплены: електродвигатель постоянного тока N = 4,4 кВт, п = 1500 об/мин, і связанный з ним зубчатой передачей механізм приводу осевых подач і установочных перемещений расточного шпинделя, состоящий из зубчатой передачи і двухзаходного правого ходового гвинта, сцепленного з гайкой ползуна. Механізм ручного переміщення сблокирован з механізмом механического приводу подач расточного шпинделя.
При нарезании різьби осевое перемещение шпинделя должно быть связано з вращением шпинделя на малых оборотах. В етом случае привід осьового переміщення шпинделя осуществляется через гітару (с набором зубчатых колес), закрепленную на хвостовой частини.
Отсчет величины перемещений расточного шпинделя производится по лимбу 1 (фиг. 100; см. вкладку в кінці книги), связанному з винтом переміщення ползуна хвостовой частини кінематичної ланцюгю
На задньої стенке хвостовой частини смонтировано електромеханическое пристрій для зажиму шпиндельной бабки на направляючих передньої стойки, приводимое от отдельного електродвигуна постоянного тока.
Механізми керування, расположенные на шпиндельной бабке. На главном пульті керування верстатом, смонтированном на крышке корпуса шпиндельной бабки, расположены основні органы і механізмы керування верстатом (фиг. 100):
Электроселекторный механізм переключения швидкостей головного руху работает от отдельного електродвигуна постоянного тока N = 0,5 кВт, п = 1410 об/мин. В момент переключения рукоятки 6 на себя автоматически выключается і тормозится противотоком главный електродвигатель верстата.
Серводвигатель отводит селекторные диски. После поворота рукоятки для выбора новой скорости її отпускают, а серводвигатель поступательно перемещает селекторные диски, осуществляющие переключение блоков. В момент окончания переключения главный електродвигатель автоматически включается. В случае задержки переключения импульсным пристрійм автоматически осуществляются проворот головного двигуна і вимкнення его при прекращении задержки. Рукояткой 8 включается і отключается вращение планшайби.
Электрический вариатор величины подачі 7 управляет изменением скорости електродвигателей постоянного тока приводов подач (принцип его роботи подобен аналогичному устройству верстата 2620, описанному выше). Он связан зубчатыми колесами з рукояткой 6 електроселекторного механізма переключения швидкостей головного руху, вследствие чего показания поворотного указателя величины подач («грибка») выражены в мм/об шпинделя і соответственно планшайби. При изменении числа об/мин, шпинделя или планшайби одновременно з поворотом рукоятки 6 поворачивается і вариатор вместе з поворотным указателем. Связь между ними рассчитана таким образом, что увеличение числа оборотів в минуту шпинделя прямо пропорционально увеличению минутной подачі. Благодаря етому подача на один оборот шпинделя или планшайби остается неизменной. Если надо изменить величину подачі в мм/об, поворачивают указатель величины подач («грибок») до совпадения стрелки з цифрой желаемой подачі. При етом число оборотів шпинделя или планшайби остается неизменным, а минутная подача изменяется, благодаря чему і изменяется подача в мм/об.
Пуск головного електродвигуна производится кнопками 15, а остановка от клавиш 15 «стоп», расположённых на главном і переносном пультах керування верстатом.
Кроме того, имеются кнопки 15 установочного проворота шпинделя или планшайби.
Электродвигатели верстата постоянного тока питаются от електромашинной установки — агрегата. Перед включением какой-либо подачі или установочного переміщення необходимо включить агрегат кнопкой 4. Предварительно з помощью варіатора 7 устанавливается величина подачі расточного шпинделя, радиального суппорта, бабки, стойки или стола, а затем кнопкой 10 включается подача в том или другом направлении. Остановка подачі осуществляется при нажиме на клавишу 10.
При установці поворотного указателя подач 9 («грибка») на подачу автоматически освобождается от зажиму в направляючих тот подвижный орган, который подготовляется для увімкнення подачі. При етом все остальные подвижные органы автоматически зажимаются.
Медленные установочные переміщення подвижных органів верстата включаются реверсивным електрооператором 14, а быстрые — кнопками 16, находящимися на пульті.
Для етого необходимо установить рукоятку 11 на перемещение того или иного подвижного органа.
Тонкое осевое установочное перемещение расточного шпинделя при работе в глубине може осуществляться вспомогательным штурвальным пристрійм 17, которое включается переключателем 13.
Электрооператор состоит из рукоятки 14 і смонтированной в ней клавиши. Среднее (нулевое) положение рукоятки оператора является нерабочим. При повороте рукоятки из среднего положения вправо или влево определяются направление і скорость установочного переміщення подвижного органа, которая тем больше, чем больше угол поворота рукоятки.
Нажатием на клавишу включают установочное перемещение подвижного органа, продолжающееся до тех пор, пока производится нажим на клавишу. Для прекращения установочного переміщення следует отпустить клавишу. При повороте рукоятки оператора одновременно происходит отжим выбранного для переміщення органа.
Точная установка по координатам осуществляется механізмом електроостанова, конструкция которого такая же, как і в станке моделі 2620А (см. выше).
Переключатель 2 на пульті керування верстатом (фиг. 100) включает і отключает механізм автоматичного точного останова, а переключатель 3 включает і отключает автоматические зажимы шпиндельной бабки і передньої стойки.
Съемный стол з прямоугольной поворотной верхней частью устанавливают і крепят на нерухомою плите верстата. Он состоит из станины, саней, перемещающихся по направляющим станины в продольном направлении (по отношению к шпинделю верстата) і прямоугольного поворотного стола, который покоится на санях. Для повышения точності верстата сани стола перемещаются по трем направляющим станины, средняя из которых имеет форму равнобочной трапеции. Цапфа поворотного стола смонтирована на конических роликовых підшипниках.
Поворот стола і перемещение его саней осуществляются от отдельного електродвигуна постоянного тока N = 4,4 кВт, п = 1500 об/мин.
При повороте рукоятки 18, расположенной на санях, включаются червячный редуктор поворота, ведомый вал которого сцеплен посредством шестерни z = 18 з зубчатым венцом z = 208 стола, или зубчатый редуктор переміщення саней стола, передающий вращение короткому винту к = 1; t = 36 мм, сцепленному з винтовой рейкой станины стола. На поворотном столе нанесены деления через каждые 30'.* Для наблюдения за точностью поворота стола через каждые 90° имеется индикаторное пристрій.
Структурна формула кинематических ланцюгів продольного переміщення і поворота стола:
Зажим поворотного стола производится вручную з помощью рукоятки 19 (фиг. 100).
Грубые установочные переміщення саней і поворотного стола осуществляются от електрооператора или з переносного пульта. Тонкая установка производится вручную з помощью специальных рукояток.
Снаружи саней смонтирован плунжерный насос, приводимый в действие ходом саней. Насос снабжен рычагом для подкачки масла от руки (в начале роботи).
Четыре рымболта по углам саней предназначены для съема саней і поворотного стола со станины; для етого стол предварительно поворачивают на 45*.
Четыре стержня в станине служат для съема і установки станины со столом на нерухомою плите.
Для ведения расточки отверстий большой длины по дополнительному заказу вместе со верстатом поставляется переносная задня стойка. Задня стойка состоит из станины, саней, имеющих поперечное перемещение по направляющим станины (по отношению к шпинделю верстата), і собственно стойки.
По вертикальным направляющим стойки перемещается люнет. Привід перемещений задньої стойки і люнета осуществляется от отдельного електродвигуна постоянного тока N = 4,4 кВт, п = 1500 об/мин. Структурна формула кінематичної ланцюги поперечного переміщення задньої стойки і вертикального переміщення люнета:
Установка на поперечное перемещение стойки или вертикальное перемещение люнета производится рукояткой 24.
Люнет имеет выдвижную гильзу, в которой на прецизионных роликопідшипниках смонтирована вращающаяся опорная втулка, служащая для поддержания борштанги.
Сзади вращающейся втулки запрессована втулка з направляющим приемным конусом для удобства ввода борштанги, которая вставляется со стороны задньої стойки. Перемещение выдвижной гильзы люнета производится от руки при вращении рукоятки 20.
Вместо закладной съемной гильзы можно устанавливать в люнете закладные втулки в зависимости от диаметра борштанги. Грубые установочные переміщення саней стойки і люнета осуществляются от отдельного електродвигуна постоянного тока через зубчатый редуктор і распределительные пристроя в санях стойки, а тонкие — от руки з помощью соответствующей рукоятки. Р (фиг. 98).
Зажим саней, люнета і гильзы в направляючих производится съемными рукоятками 25, 23 і 21 (фиг. 100; см. вкладку в кінці книги). Так как задня стойка имеет поперечное, а люнет — вертикальное переміщення, установка люнета соосно з расточным шпинделем затруднена.

Оптический прибор ППС-7
Оптический прибор ППС-7 предназначен для проверки соосности опорной втулки люнета з расточным шпинделем і значительно упрощает установку люнета. Он является принадлежностью верстата і поставляется вместе со съемной задньої стойкой.
С помощью етого прибора проверяется также отклонение от параллельности оси втулки люнета і шпинделя, которое може возникнуть как при установці на фундаменте, так і в процессе експлуатации вследствие оседания фундамента.
Прибор имеет две основні частини (фиг. 101) — коллиматор 1 і визирную трубу 2.
Коллиматор имеет точный метрический конус для центрирования в коническом гнезде головной частини расточного шпинделя, куда он вставляется. С помощью уровня 12 з ценой деления 3' коллиматор устанавливается в строго определенном положении относительно горизонта.
В корпусе 11 коллиматора смонтированы матовое стекло 4, конденсор 5, сетка 6, оборачивающая линза 7, объектив 8 і марка 9. Электролампочка 3, питающаяся напряжением в 13,5 в, является источником света і расположена в патроне 10, который крепится к корпусу коллиматора. Сетка 6 представляет стеклянную пластину з перекрестием из двух штриховых линий (фиг. 101, в), а марка 9 — стеклянную пластинку з перекрестием из сплошных линий (фиг. 101, б).
Центры сетки і марки должны располагаться на оптической оси прибора, которая в свою очередь должна совпадать з геометрической осью конуса коллиматора.
Визирная труба 2 имеет корпус з точным метрическим конусом 24, з помощью которого і переходной втулки она строго центрируется во втулке люнета задньої стойки. Визирная трубка состоит из плоскопараллельной пластины 13, объектива 14, линзы 15 для внутренней фокусировки, сетки 16, призмы 17, оборачивающих линз 18 і окуляра 19.
Плоскопараллельная пластинка закреплена в кольце 20, которое може поворачиваться вокруг корпуса 21 на 360° і имеет шкалу з ценой деления 0,01 мм.
При вращении кольца 20 плоскопараллельная пластинка 13 будет наклоняться на тот или иной угол і смещать изображение линий сетки или марки на сетке визирной трубы параллельно самим себе.
Посредством рычага 22 корпус 21 вместе з кольцом 20 і пластинкой 13 быстро поворачивается на угол 90° относительно первоначального положения пластинки 13, для того чтобы производить післядовательные измерения в двух взаимно-перпендикулярных направлениях.
На корпусе визирной трубы расположен уровень 25 для выверки положения трубы относительно горизонта.
Проверка параллельности осей шпинделя і втулки люнета производится після того, как ети оси предварительно совмещены з точностью до ±10 мм (фиг. 101, е).
Коллиматор включают в електрическую сеть напряжением 12 в, для чего имеется специальная розетка на пульті шпиндельной бабки, а кольцо 20 устанавливают по шкале на нуль. Наблюдая в окуляр визирной трубы, устанавливают его так, чтобы получить резкое і четкое изображение сетки 16 визирной трубы. Продолжая наблюдение, вращением маховичка 23 смещают линзу 15 вдоль оптической оси, до тех пор пока не получится четкое изображение сетки 6 коллиматора. Если оси непараллельны, то изображение креста сетки коллиматора не совпадает з крестом сетки зрительной трубы. Величина смещения оценивается (в сек.) по вертикальной і горизонтальной угломерным шкалам сетки 16 визирной трубы (фиг. 101, а).
Проверка соосности шпинделя і втулки люнета производится з помощью марки 9 коллиматора. Вращением маховичка 23 добиваются четкого изображения марки коллиматора при наблюдении в окуляр 19 визирной трубы. Если отверстия соосны, изображения крестов марки і сетки совпадают. В противном случае вращают кольцо 20 до совпадения крестов. Величина смещения осей в вертикальном или. горизонтальном направлении отсчитывается в долях миллиметра по шкале кольца 20.
Положение сеток (фиг. 101, г) показывает, что ось люнета направлена вниз і влево от оси шпинделя.
Для устранения непараллельности надо станину задньої стойки развернуть на плите вправо і приподнять її передний край.
Положение сетки визирной трубы і марки коллиматора, изображенное на фиг. 101, д, указывает, что ось втулки люнета сдвинута вправо і вверх от оси шпинделя. Следует опустить люнет, а стойку переместить по станине влево.
Відлік вертикальних переміщень шпиндельної бабки та люнета, поздовжніх переміщень столу та поперечних переміщень задньої стійки проводиться відповідно по лінійках з ноніусами 5, 22, 28, 26 (фіг. 100); відлік поперечних переміщень передньої стійки - по лінійці з ноніусом та лімбу 29; відлік настановного повороту столу — за круговою шкалою та індикаторним пристроєм 27.

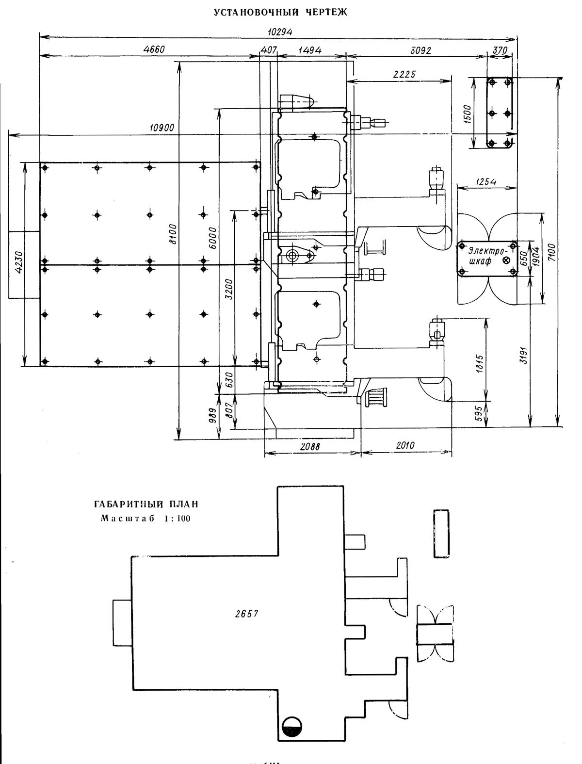
Установче креслення горизонтально-розточувального верстата 2657
Установче креслення горизонтально-розточувального верстата 2657. Дивитись у збільшеному масштабі

Технічні характеристики горизонтально-розточувального верстата 2657
Технічні характеристики верстата 2657. Завантажити у збільшеному масштабі

Технічні характеристики горизонтально-розточувального верстата 2657
Технічні характеристики верстата 2657. Завантажити у збільшеному масштабі
Будь-яка робота потребує більше часу, ніж ви думаєте.
Закон Мерфі