metalinstryment.com
Довідник по металорізальних верстатів та пресовому обладнанні

6441Б Верстат копировально-фрезерный горизонтальный
руководство, схеми, опис, характеристики

Загальний вигляд  гравировального копировально-фрезерного верстата горизонтальный 6441Б







Відомості про виробника копировально-фрезерного верстата 6441Б

Производитель копировально-фрезерного верстата 6441Б Ленинградский станкостроительный завод им. Свердлова, основанный в 1868 году.

С 1949 предприятие тяжёлого станкостроения. Начал выпуск металлорежущих верстатів собственной конструкції (горизонтально-расточных, координатно-расточных, копировально-фрезерных, типа «обрабатывающий центр» і др.





Верстати производства Ленинградского станкостроительного завода им. Свердлова


6441Б Верстат копировально-фрезерный горизонтальный. Назначение, область применения

Копировально-фрезерный напівавтомат 6441Б предназначен для обробки всевозможных ковочных, гибочных і вырубных штампов, металлических моделей кокилей, прессформ і различных изделий, имеющих пространственно-сложную форму, не поддающуюся или трудно поддающуюся обработке на обычных универсально-фрезерных верстатах.

Копировально-фрезерный верстат 6441Б предназначен для роботи в условиях индивидуального і мелкосерийного производства.

Принцип роботи і особливості конструкції верстата

На етом напівавтоматі процесс обробки происходит по копирам (шаблонам, моделям), изготовленным в масштабе 1:1.

На горизонтальном столе верстата 6441Б установлены опорные стойки (нижняя і верхняя) для крепления вироби і копира.

Обрабатываемое изделие крепится к нижней опорной стойке.

Копир, изготовленный из металла, дерева или других материалов в масштабе 1:1, закрепляется на верхней стойке.

Фреза закрепляется в шпинделе.

Обработка сложных поверхностей осуществляется переміщенням бабки і стола в трех взаимно перпендикулярных направлениях:

Во время роботи верстата щуп при помощи пружины прижимается к копиру. При изменении давления копира на щуп в процессе руху его по копиру приводятся в действие електрические приводы, управляющие рухуми рабочих вузлів верстата.

Сочетанием движений в различных направлениях автоматически осуществляется необходимая траектория руху режущего инструмента. Эта траектория соответствует траектории щупа по отношению к копиру или шаблону.

Обработка объемных поверхностей осуществляется горизонтальными или вертикальными строчками. Для етой цели в станке предусмотрена периодическая подача стола или шпиндельной бабки в плоскости, перпендикулярной оси шпинделя.

При обработке горизонтальными строчками столу сообщается непрерывная подача. После прохождения щупом пути, равного длине копира, когда фреза обработает в детали одну строчку, шпиндельна бабка з фрезой і щупом автоматически перемещается в вертикальном направлении на ширину строчки. Вслед за тем столу автоматически сообщается подача в обратном направлении для обробки второй строчки і т. д. до тех пор, пока щуп не обойдет всю поверхность копира, а фреза не воспроизведет но строчкам весь рельеф копира на поверхности детали.

При обработке вертикальными строчками непрерывная вертикальная подача сообщается шпиндельной бабке, фрезерование строчек происходит в вертикальном направлении, а по окончании каждого прохода периодическая подача на ширину строчки сообщается столу. Контурные поверхности обрабатываются методом контурного обхода.

Конфигурация і розміри рабочей частини фрезы і щупа должны быть идентичны.

Конструктивные особливості. Копировально-измерительный прибор для пространственной і контурной обробки деталей работает по индуктивному методу, что обеспечивает большую плавность обвода контура і позволяет резко уменьшить рабочее давление на копіювальний палец до 150—185 Г.

Для осуществления встречного і попутного фрезерування в приводах подач предусмотрены пристроя, устраняющие зазор между ходовыми гвинтами і гайками.

Шпиндель вращается на прецизионных підшипниках, смонтированных в пиноли, которая имеет осевое установочное перемещение вручную.

Для изменения чисел оборотів шпинделя верстат оснащен коробкой швидкостей і двухскоростным електродвигуном.

Перемещение стола і шпиндельной бабки осуществляется от окремих електродвигателей постоянного тока через редукторы і винтовые передачи.

Каждый привід имеет два диапазона подач. Изменение подачі в пределах каждого диапазона достигается вариатором. Для непрерывного изменения подач диапазоны частинично перекрываются.

Каждый редуктор имеет ручной привід для установочных перемещений стола і шпиндельной бабки.

Класс точності верстата Н.


Копировально-фрезерный горизонтальный

В Советском Союзе роботи по развитию системы автоматичного копирования велись в трех направлениях.

  1. В 1934 г. инженер В. С. Вихман впервые предложил систему фотоелектрического копирования по чертежу.
  2. В 1936 г. инженером Т. Н. Соколовым была разработана новая система електроавтоматичного копирования, основанная на применении регулируемых двигателей з електронным керуванням.
  3. Приблизительно в ето же время ЭНИМС были начаты роботи по гідравлическому управлению процессами копирования.

В результате первых работ инж. Соколова лаборатории технологии машиностроения і електроустаткування ЛПИ имени М. И. Калинина изготовили первый опытный копировально-фрезерный напівавтомат з електронным керуванням. Этот напівавтомат имел контактное следящее пристрій, управляющее сетками тиратронов в цепях возбуждения генераторов, питающих двигатели подачі. Кроме того, для повышения скорости переходного процесса і устойчивости регулювання автором были применены специальные обмотки обратной связи на генераторах.

Дальнейшее развитие отечественных копировальных напівавтоматов связано з работами ленинградского завода имени Я. М. Свердлова.

В 1940 году выпущен первый отечественный універсальний копировально-фрезерный напівавтомат 6441, разработанный конструкторами етого завода Т. Н. Соколовым, И. А. Дружинским, А. М. Разыграевым, А. Г. Назаровым і М. С. Ворошиловым. Таким образом, отечественные копировально-фрезерные напівавтоматы были первыми верстатами з електронными приборами, работавшими в нормальных цеховых условиях.

Новая модель універсального копировально-фрезерного напівавтомату 6441А выпущена в 1947 г. За три года, прошедшие з етого часу, в конструкцию его был внесен ряд изменений і улучшений. В результате етого машины, выпущенные в 1949—1950 гг., далеко превосходят по своим качествам иностранные конструкції аналогичного назначения. От післядних отечественная конструкция машины отличается оригинальной системой непрерывного керування, основанной на применении електронных і електромашинных усилителей.

За разработку і освоение в производстве етой машины доценту ЛПИ имени М. И. Калинина Т. Н. Соколову і работникам станкозавода имени Я. М. Свердлова инженерам И. А. Дружинскому, И. И. Верину, А. М. Разыграеву і А. Г. Назарову в 1948 г. была присуждена Сталинская премия второй степени.

В начале 50-х заводом выпущен более совершенный верстат - 6441Б. Машины етого типа поставлены на серийное производство і з успехом работают на многих отечественных заводах

Автор: Соколов Т.Н. і др. Электро-копировально-фрезерный напівавтомат 6441А.





Габаритные розміри робочого простору копировально-фрезерного верстата 6441Б

6441Б Габаритные розміри робочого простору верстата

Габаритные розміри робочого простору верстата 6441Б

Габаритные розміри робочого простору верстата 6441Б. Дивитись у збільшеному масштабі



Посадочные і присоединительные базы копировально-фрезерного верстата 6441Б

6441Б Посадочные і присоединительные базы верстата 6441Б

Посадочные і присоединительные базы верстата 6441Б

Посадочные і присоединительные базы верстата 6441Б. Дивитись у збільшеному масштабі



Загальний вигляд копировально-фрезерного верстата 6441Б

6441Б Загальний вигляд  верстата

Фото копировально-фрезерного верстата 6441Б

Фото копировально-фрезерного верстата 6441Б. Дивитись у збільшеному масштабі



6441Б Загальний вигляд  верстата

Фото копировально-фрезерного верстата 6441Б

Фото копировально-фрезерного верстата 6441Б. Дивитись у збільшеному масштабі



6441Б Загальний вигляд  верстата

Фото копировально-фрезерного верстата 6441Б

Фото копировально-фрезерного верстата 6441Б. Дивитись у збільшеному масштабі



6441Б Загальний вигляд  верстата

Фото копировально-фрезерного верстата 6441Б


6441Б Загальний вигляд  верстата

Фото копировально-фрезерного верстата 6441Б


6441Б Загальний вигляд  верстата

Фото копировально-фрезерного верстата 6441Б





Розташування складових частин верстата 6441Б

6441Б Розташування складових частин верстата 6441Б

Розташування складових частин верстата 6441Б


Список складових частин верстата 6441Б

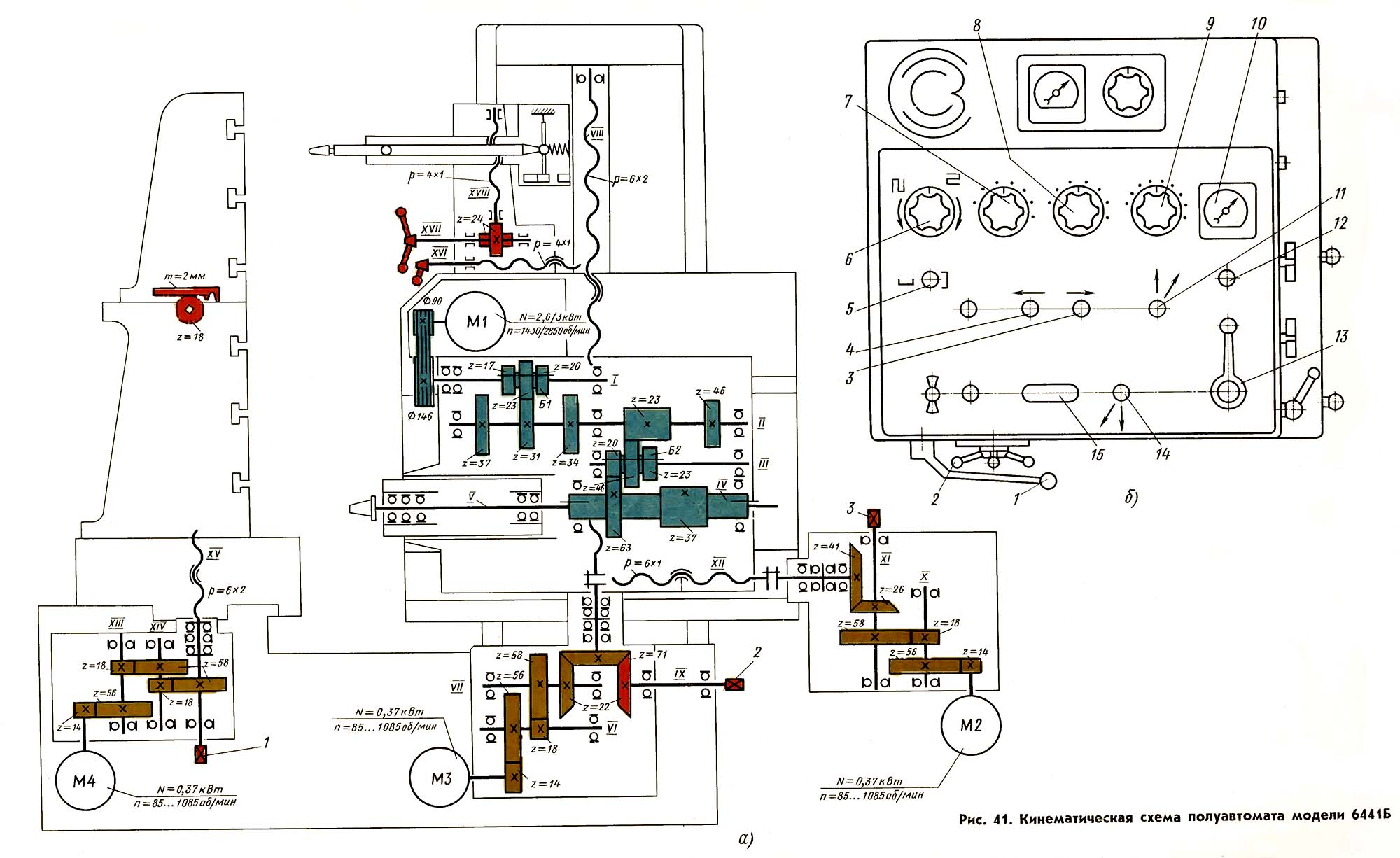
Список органів керування копировально-фрезерным верстатом 6441Б

  1. рукоятка зажиму шпиндельной гильзы;
  2. рукоятка переміщення гильзы шпинделя;
  3. кнопочная станція;
  4. рукоятка налаштування копировальной головки;
  5. рукоятка налаштування копировальной головки;
  6. рукоятка налаштування копировальной головки;
  7. рукоятка керування коробкой швидкостей.




Кінематична схема верстата 6441Б

6441Б Кінематична схема верстата 6441Б

Кінематична схема верстата 6441Б

1. Кінематична схема верстата 6441Б. Дивитись у збільшеному масштабі

2. Кінематична схема верстата 6441Б. Дивитись у збільшеному масштабі



Движения в станке

Рух різання

Шпиндель V (рис. 94) верстата приводится во вращение двухскоростным електродвигуном мощностью 2,6—3 кВт через клиноременную передачу 90—146 і коробку швидкостей. В коробке швидкостей расположены два тройных подвижных блока шестерен Б1| і Б2.

Вал II получает вращение от вала I в зависимости от положения тройного подвижного блока шестерен Б1 через зубчасті колеса 17—37, 23—31 или 20—34.

Тройной подвижной блок шестерен Б2 является промежуточным звеном между валом II і полым валом IV. В показанном на схеме положении блока шестерен Б2 вращение от вала II передається полому валу IV через зубчасті передачи 23—46 і 20—63; в среднем положении блока шестерен Б2 в передаче руху участвуют шестерни 23—46—37, і при установці блока шестерен Б2 в крайнее правое положение полый вал IV получает вращение через шестерни 46—23 і шестерни 46—37.

Как видно из рис. 93, шпинделю сообщается восемнадцать различных швидкостей обертання.

Наибольшее число оборотів шпинделя птах з учетом упругого ковзання ремня може быть определено из выражения

Движения подач

Продольная подача стола осуществляется от двигуна постоянного тока мощностью 0,37 кВт через редуктор. Рух передається через шестерни 14—56, вал XIII, шестерни 18—58, вал XIV, шестерни 18—58 і двухзаходный ходовой винт XV з шагом 6 мм.

Вертикальная подача шпиндельной бабки осуществляется електродвигуном постоянного тока мощностью 0,37 кет через аналогичный редуктор. Рух передається через шестерни 14—56, вал VI, шестерни 18—58, вал VII, конические шестерни 22—71 і двухзаходный ходовой винт VIII з шагом б мм.

Поперечная подача шпиндельной бабки производится также двигателем постоянного тока мощностью 0,37 кВт через редуктор, в котором расположены две пары цилиндрических колес 14—56 і 18—58, коническую передачу 26—41 і ходовой винт XII з шагом 6 мм.

Все електродвигатели подач питаются от двух електромашинных усилителей і имеют бесступенчатое изменение скорости обертання в весьма широких пределах, что позволяет изменять скорости рабочих подач от 25 до 315 мм/мин і величины периодических подач от 0,15 по 8 мм/ход.




Следящее движение

Схема следящего приводу верстата 6441Б

Схема следящего приводу верстата 6441Б


Схема следящего приводу верстата 6441Б

Схема следящего приводу верстата 6441Б


Как известно, рух копировальной головки осуществляется путем геометрического сложения двух взаимно перпендикулярных перемещений. Направление одного из етих перемещений, называемого подачей, неизменно в пределах заданного участка профиля. Направление второго переміщення определяется командным импульсом, поступающим от копировальной головки, і должно изменяться при каждом изменении наклона профиля шаблона.

Это движение, играющее главную роль в процессе копирования, принято называть следящим.

Вспомогательные руху

Быстрые переміщення всех рабочих органів верстата осуществляются от електродвигателей подач со скоростью 350 мм/мин. Ручное установочное перемещение шпиндельной бабки по высоте производится рукояткой, надеваемой на конец вала IX. Вращение вертикальном ходовому винту VIII передається от вала IX коническими колесами 22-71.

Установчі переміщення копировальной головки при налаштуванні верстата осуществляются рукоятками Р1 і Р2. Рукоятка Р1 через винтовые колеса 24—24 і вертикальний ходовой винт изменяет положение електрокопировальной головки по высоте. В поперечном направлении головка перемещается рукояткой Р2, установленной на горизонтальном ходовом винте.


Вузли верстата моделі 6441Б

Вузли копировально-фрезерного верстата 6441Б

Вузли копировально-фрезерного верстата 6441Б

Вузли копировально-фрезерного верстата 6441Б. Дивитись у збільшеному масштабі



Копировальная головка

Копировальная головка верстата 6441Б

Копировальная головка верстата 6441Б


Копировальная головка верстата 6441Б

Копировальная головка верстата 6441Б

Копировальная головка верстата 6441Б. Дивитись у збільшеному масштабі



Разрез копировальном головки изображен на рис. 95, а, схема її роботи — на рис. 95,6. К корпусу 6 копировальной головки привинчена несущая трубка 4. В несущей трубке установлены радиально три гвинта 15 под углом 120° относительно друг друга. Внутренние торцы винтов 15 выполнены по сфере і охватывают шарик 2, представляющий собой шарнирную опору для шпинделя 3. Шпиндель имеет три широких окна а, через которые свободно проходят опорные винты 15. Внутри шпинделя расточено точно по диаметру шарика 2 цилиндрическое отверстие, которое переходит в коническое гнездо. Шпиндель цилиндрической полостью лежит на шарике, а коническим гнездом под действием пружины 10 упирается в него.

Такая конструкция шарового шарнира позволяет шпинделю 3 перемещаться при осевом давлении вдоль своей оси, а при радиальном давлении качаться вокруг центра шарика. Точность роботи копіювального пристроя в большой степени зависит от качества изготовления шарового шарнира, поетому детали его выполняются исключительно тщательно. Шарик 2 прецизійного класса имеет отклонения от шарообразности не свыше 0,005 мм. Цилиндрическую внутреннюю поверхность шпинделя, скользящую по шарику, притирают і она имеет почти беззазорную посадку.

На конец шпинделя надевается копіювальний палец 1. радиус закругления которого соответствует радиусу фрезы. На противоположном кінці шпинделя имеется коническое углубление. Такое же углубление имеется в резьбовой втулке 8, жестко связанной з якорем 13. Между коническими углублениями шпинделя 3 і втулки 8 расположен шарик 5. Якорь 13 установлен в корпусе головки на гибкой подвеске 7. Слева от якоря жестко закреплен нерухомий сердечник 14. Регулируемый сердечник 12 так же, как і якорь, смонтирован в корпусе головки на гибкой подвеске 9. Изменение зазору между сердечниками і соответственно между якорем і сердечником осуществляется гайкой 11.

Работа механической частини копировальной головки хорошо видна на схеме (рис. 95, б). При отсутствии нагрузки на копіювальний палец 1 (поз.1) шпиндель 2 под действием пружины 6 находится в крайнем переднем положении і располагается перпендикулярно рабочей плоскости стойки копира. Якорь 5 в ето время находится вблизи нерухомого сердечника 8.

Если на копіювальний палец 1 (поз. 2) действует только осевая сила Ро , то шпиндель 2, сохраняя свое расположение в пространстве, смещается назад, и, преодолевая сопротивление пружины 6, отжимает через шарик 4 якорь 5, изменяя зазоры между ним і сердечниками 7 і 8 диференціального трансформатора.

Действие радиальной силы Рр на копіювальний палец 1 (поз. 3) вызывает поворот шпинделя 2 относительно шаровой опори 3. Однако і в етом случае вследствие смещения конического гнезда Кш шпинделя относительно конического гнезда Кя якоря шарик 4 сместит якорь 5 назад, изменив зазоры в диференціальном трансформаторе. Позиция 4 показывает одновременное действие на копіювальний палец осевой і радиальной силы, что вызывает смещение шпинделя 2 назад і его поворот относительно шаровой опори 3. Шарик 4, суммируя ети оба смещения, увеличивает величину отхода якоря 5. Изменение зазору между якорем і сердечниками приводит к изменению индуктивного сопротивления катушек диференціального трансформатора, что і является сигналом керування следящей системы верстата.

Шпиндельная бабка

Шпиндель 2 (рис. 95, в) смонтирован на прецизионных підшипниках качения в гильзе 3. Передня опора шпинделя состоит из двух спаренных конических роликовых підшибників 1 класса А, собранных з предварительным натягом. В задньої опоре установлены два шариковых підшипника 5 класса АВ. Шлицевой конец шпинделя связан з приводной втулкой 6".

Для осьового переміщення гильзы 3 со шпинделем 2 на гильзе нарезана рейка, а в корпусе бабки установлена реечная шестерня 4. закрепленная на одном валу со штурвалом ручного установочного переміщення шпинделя.

Ходовой винт 9 служит для переміщення шпиндельной бабки в поперечном направлении. В целях обеспечения необходимой точності объемного копирования, а также возможности фрезерування попутным методом в приводе переміщення шпиндельной бабки предусмотрено пристрій для периодического устранения зазору между витками ходового гвинта 9 і маточной гайки 10. Пристрій для устранения зазору состоит из дополнительной маточной гайки 7, имеющей на кінці наружную резьбу, і шестернигайки 8. Поворотом шестернигайки 8 на необходимый угол можно переместить дополнительную маточную гайку 7 і тем самым устранить зазор между витками ходового гвинта 9 і маточных гаек 7 і 10.

Переключатель ходу

Переключатель имеет два конечных выключателя 6 (рис. 95, г) і механізм переключения, закрытые крышкой 7. На валике 4 механізма переключения слева закреплена рукоятка 3, а справа — поводок 2 з плоской пружиной 1.

В кінці прохода строчки упор, установленный в пазу подвижного робочого органа верстата, наезжает на рукоятку 3 і поворачивает валик 4 з плоской пружиной 1. Последняя нажимает на подвижной стержень одного из конечных выключателей 6 і і производит необходимые переключения контактов електросхеми.

После отхода робочого органа з упором от рукоятки 3 пружина 5 возвращает механізм переключения в среднее положение.




Електрична схема копировально-фрезерного верстата 6441Б

Електрична схема копировально-фрезерного верстата 6441Б

Електрична схема копировально-фрезерного верстата 6441Б

Примечания:

1. Копировально-фрееерный напівавтомат 6441Б з непрерывным керуванням для обробки объемных поверхностей і плоских контуров. Копирование выполняется по моделям или шаблонам, изготовленным в масштабе 1:1 из металла, дерева, гипса і другого материала.

2. Привід шпинделя от двухскоростного АД мощностью 2,6 кВт при 1430/2850 об/мин. Частота обертання шпинделя регулируется ступенчато електромеханическим способом в диапазоне от 75 до 850 об/мин.

3. Привід подач (горизонтальной, вертикальной і поперечної) от окремих регулируемых по системе ЭМУ-Д двигателей постоянного тока, мощностью 0,37 кВт при 1000 об/мин. Скорости подач регулируются плавно в диапазоне от 25 до 315 мм/мии.

4. Питание двигателей подач от двух електромашинных усилителей (ЭМУ1 і ЭМУ2) поперечного поля мощностью по 0,5 кВт при напряжении 110 В і генератора постоянного тока (Г).

Основні елементы схеми




Работа системы керування копировально-фрезерного верстата 6441Б

Копіювальний палец, перемещаясь по шаблону, изменяет положение якоря между сердечниками диференціального трансформатора копировальной головки (КГ), которая формирует сигнал керування (Uy) в зависимости от величины і знака рассогласования (δ).

Сигнал керування (Uу) подается на входной усилитель (ВУ), где преобразуется в напряжения U1, U2 і U3, поступающие на усилитель следящей подачі (УСП) і на блок связи (БС).

В УСП все три напряжения суммируются, а результирующее напряжение поступает в обмотки ЭМУ1 (1-ОУ1 і 2-ОУ1), которые включены встречно. ЭДС електромашинного усилителя будет изменяться по величине і знаку в соответствии з выходным напряжением з УСП, что обеспечит з помощью ДПП перемещение шпинделя к заготовке (2) или от нее, повторяя форму поверхности шаблона (1).

От БС результирующее напряжение з учетом задающего (U3) подается на усилитель ведущей подачі (УВП), выход которого через реверсивный контактный мостик подключен к ОУ2 ЭМУ2, управляющего двигателем горизонтальной подачі (ДГП).

Примечание. В процессе копирования подача (S) в пределах горизонтальной строчки изменяется только по значению, сохраняя неизменное направление.

Вузли керування следящей і ведущей подачами работают взаимосвязано. При изменении скорости следящей подачі скорость ведущей подачі изменяется таким образом, чтобы результирующая скорость руху вдоль профиля сохранялась неизменной і равной заданной.

Таким образом система передбачає і сочетает три вида керування:

  1. линейное — по рассогласованию
  2. диференціальное — по скорости изменения рассогласования
  3. интегральное — по часу рассогласования

Такой варіант позволяет системе быстрее реагировать на всякое изменение наклона профиля шаблона, что значительно повышает точность і качество.

В кінці прохода горизонтальной строчки упор нажимает на путевой переключатель (не показан). ДГП отключается (размыкаются все контакты РВ і РН реверсивного контура), включается ДВП (контакт КЛ) і осуществляется периодическая подача (Sп). Длительность подачі определяется специальным реле часу (не показано), которое отключает ДВП.

После отработки периодической подачі (Sп) снова включается ОУ2 ДГП, но на противоположное направление.

Примечание — При обработке вертикальными строчками поменять местами ДГП і ДВП.


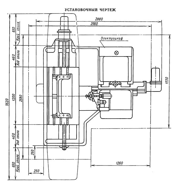
Настановне креслення верстата 6441Б

6441Б Настановне креслення верстата

Настановне креслення верстата 6441Б

Настановне креслення верстата 6441Б. Дивитись у збільшеному масштабі







6441Б Верстат копировально-фрезерный горизонтальный. Відеоролик.




Технічні характеристики верстата 6441Б

Наименование параметра 6441Б
Основні параметри верстата
Розміри рабочей поверхности стола вироби, мм 630 х 1200
Розміри обрабатываемой поверхности стола копира, мм 500 х 900
Наибольшее вертикальное перемещение шпиндельной бабаки (Z), мм 500
Наибольшее поперечное перемещение шпиндельной бабаки (Y), мм 350
Наибольшее продольно перемещениее стола (X), мм 900
Наибольшее установочное осевое перемещение гильзы со шпинделем, мм 125
Пределы вертикальних (шпиндельной бабки) швидкостей рабочих подач в при бесступенчатом изменении скорости подачі, мм/мин 25..315
Пределы поперечных (шпиндельной бабки) швидкостей рабочих подач в при бесступенчатом изменении скорости подачі, мм/мин 25..315
Пределы горизонтальных (стола) швидкостей рабочих подач в при бесступенчатом изменении скорости подачі, мм/мин 25..315
Пределы периодических подач за одни ход, мм 0,15..8
Частота обертання шпинделя, об/мин 63..3150
Количество швидкостей шпинделя 18
Електроустаткування і привід верстата
Количество електродвигателей на станке
Електродвигун приводу головного руху, кВт 2,6/ 3
Електродвигун подачі, кВт 0,37
Габаритные розміри і масса верстата
Габаритные розміри (длина х ширина х высота), мм
Масса верстата, кг

    Список литературы:

  1. Бернштейн-Коган В.С. Електроустаткування координатно-расточных і резьбошлифовальных верстатів, 1969
  2. Глухов Н.М. Работа на координатно-расточных верстатах, 1953
  3. Григорьев С.П., Григорьев В.С. Практика координатно-расточных і фрезерных работ, 1980
  4. Ипатов С.С. Координатно-расточные верстати в точном приборостроении, 1954
  5. Кашепава М.Я. Современные координатно-расточные верстати, 1961
  6. Кудряшов А.А. Верстати инструментального производства, 1968
  7. Смирнов В.К. Токарь-расточник. Учебник для технических училищ, 1982
  8. Тепинкичиев В.К. Металлорежущие верстати, 1973
  9. Зазерский Е.И., Гутнер Н.Г. Токарь-расточник, 1960
  10. Пономарев В.Ф. Справочник токаря-расточника,1969
  11. Смирнов В.К. Токарь-расточник. Учебник для технических училищ, 1982
  12. Богданов А.В. Расточное дело, 1960









Заказать

Кто владеет информацией - тот владеет миром.

Натан Ротшильд