metalinstryment.com
Довідник по металорізальних верстатах та пресовому обладнанні

На головну сторінку 🏠

2А622Ф4 Верстат горизонтально-розточуваної з нерухомою передньою стойкою з
ЧПУ

Фото горизонтально-розточувального верстата 2А622ф4







Відомості про виробника горизонтально-розточувального верстата 2А622Ф4

Виробник горизонтально-розточувальних верстатів 2А622Ф4 Ленінградський верстатобудівний завод ім. Свердлова , заснований у 1868 році.

З 1949 року підприємство важкого верстатобудування. Почав випуск металорізальних верстатів власної конструкції (горизонтально-розточувальних, координатно-розточувальних, копіювально-фрезерних, типу «обробний центр» та ін.)

У 1962 на базі заводу створено Ленінградське верстатобудівне виробниче об'єднання.

Об'єднання має замкнутий технологічний цикл, має ливарне, заготівельне, гальванічне виробництва, всі види механічної обробки, стендове складання верстатів, малярські та пакувальні ділянки.

У 2004 р – банкрутство заводу. Торгова марка продана підприємству Кіров-Станкомаш, ТОВ





Верстати виробництва Ленінградського верстатобудівного заводу ім. Свердлова


2А622Ф4 Горизонтально-розточувальний верстат з ЧПУ. Призначення, сфера застосування

Горизонтальний верстат верстата з ЧПУ 2А622Ф4 призначений для виконання різноманітних розточувальних, фрезерних та свердлильних робіт, включаючи контурне фрезерування та нарізання різьблення мітчиками.

Принцип роботи та особливості конструкції верстата

Шорсткість обробленої поверхні отвору при чистовому розточуванні різцем ВК8, встановленим у висувному шпинделі, у чавуні СЧ15, ГОСТ 1412-79; Ra = 1,6 мкм.

Горизонтально-розточувальний верстат 2А622Ф4 виконаний у компонуванні з нерухомою стойкою , що несе вертикально-рухливу шпиндельну бабку з висувним шпинделем і вбудованим поворотним столом, що має поздовжнє та поперечне (щодо осі шпинделя) переміщення. Роздільні приводи подач дозволяють здійснювати одночасну обробку за трьома координатами та вибрати найбільш оптимальний режим різання, а також змінювати величину подачі вузлів у процесі різання.

Рухомі вузли переміщаються за допомогою кулько-гвинтових передач кочення з попереднім натягом.

Змащення направляючих рухомих вузлів та головного приводу автоматизовано.

Вбудувати верстат 2А622Ф4 в автоматичну лінію не можна. Ступінь автоматизації - Ф4 (керування в контурному режимі).

Керування верстатом 2А622Ф4 здійснюється пристроєм числового програмного керування (УЧПУ). Програмовані переміщення по чотирьох осях - X, Y, Z, W. Ось працює в режимі позиціонування.

Відсутні завантажувальний пристрій та пристрій для транспортування стружки.

Система СОЖ складається з насосної станцій ємністю 200 л, пристрою поливу інструменту та деталі та системи збирання СОЖ.

Верстат 2А622Ф4 має зручну допоміжну систему ручного керування з пульта.

Зона обробки освітлюється світильником із люмінісцентними лампами, вбудованим у шпиндельну бабку.

Шкідливі виділення відсутні.

Порівняно з попередніми виконаннями верстата моделі 2А622Ф4 виконання 04 має такі переваги:

Конструктивні та експлуатаційні особливості верстата 2А622Ф4:

Верстат відповідає високим вимогам сучасного технічного рівня верстатобудування.

Шумові характеристики відповідно до ОСТ2 Н89-40-75.

Рівень вібрації відповідно до ГОСТ 12.2.009-80.

Транспортування верстата має здійснюватися: для внутрішньосоюзних поставок у тарі згідно з ГОСТ 10198-78.

Категорія упаковки - КУ-2 за ГОСТ 23170-78Е та ОСТ2 М92-1-81.

Тимчасовий протикорозійний захист (консервація) здійснюється відповідно до ГОСТ 9.014-78 та ОСТ2 Н89-30-79.

Вибір транспортної упаковки та умов транспортування здійснюється відповідно до ГОСТ 7599-82 та ОСТ Н92-1-81.

Розробник-Ленінградське ОКБС.

Клас точності верстата Н згідно з ГОСТ 8-82Е.


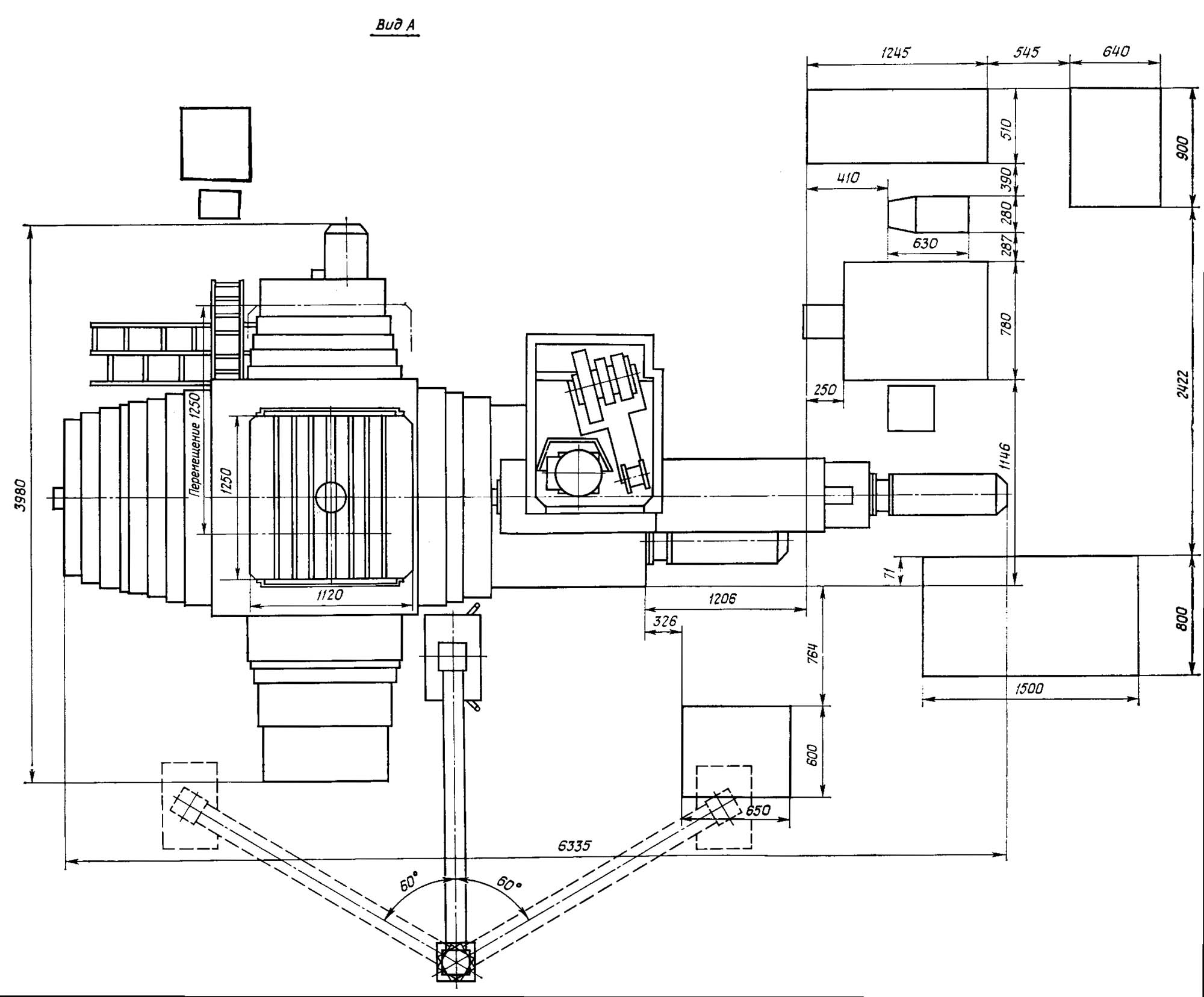
2А622Ф4 Габаритні розміри робочого простору горизонтально-розточувального верстата

2А622Ф4 Габарит робочого простору горизонтально-розточувального верстата

Габаритні розміри робочого простору верстата 2а622ф4

Габаритні розміри робочого простору горизонтально-розточувального верстата 2А622Ф4. Завантажити у збільшеному масштабі



2А622Ф4 Габаритні розміри робочого простору горизонтального верстата 2А622Ф4

Габаритні розміри робочого простору верстата 2а622ф4

Габаритні розміри робочого простору горизонтально-розточувального верстата 2А622Ф4. Завантажити у збільшеному масштабі



2А622Ф4 Посадочні та приєднувальні бази горизонтально-розточувального верстата

2А622Ф4 Габарит робочого простору горизонтально-розточувального верстата

Поворотний стіл горизонтально-розточувального верстата 2а622ф4


2А622Ф4 Габарит робочого простору горизонтально-розточувального верстата

Хвостова частинина інструментальної оправки верстата 2а622ф4


2А622Ф4 Габарит робочого простору горизонтально-розточувального верстата

Головка захватна горизонтально-розточувального верстата 2а622ф4


2А622Ф4 Габарит робочого простору горизонтально-розточувального верстата

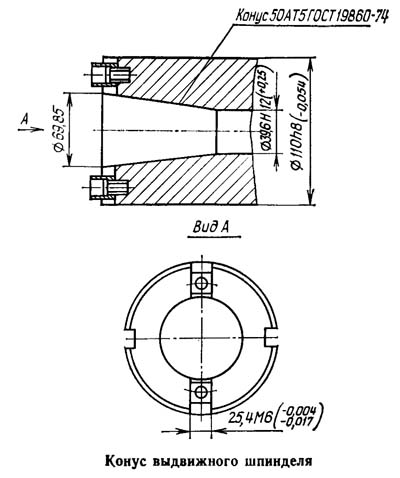
Конус висувного шпинделя верстата 2а622ф4


2А622Ф4 Габарит робочого простору горизонтально-розточувального верстата

Посадковий кінець порожнистого шпинделя верстата 2а622ф4


Загальний вигляд горизонтально-розточувального верстата 2А622

2А622Ф4 Загальний вигляд горизонтально-розточувального верстата

Фото горизонтально-розточувального верстата 2а622ф4


Головний пульт горизонтально-розточувального верстата 2А622Ф4

Головний пульт горизонтально-розточувального верстата 2А622Ф4

Головний пульт горизонтально-розточувального верстата 2а622ф4

Головний пульт горизонтально-розточувального верстата 2А622Ф4. Завантажити у збільшеному масштабі



  1. S12 - Аварійна кнопка ВСІ СТОП
  2. - Выносной пульт коррекции УЧПУ

  3. Лампы сигнализации

  4. H25 - Выбор вузла В
  5. H24 - Выбор вузла W
  6. H23 - Выбор вузла Z
  7. H22 - Выбор вузла Y
  8. H21 - Выбор вузла X

  9. Кнопки

  10. S135 - Выбор вузла В
  11. S134 - Выбор вузла W
  12. S133 - Выбор вузла Z
  13. S132 - Выбор вузла Y
  14. S131 - Выбор вузла X
  15. S15 - Варіатор подачі
  16. S19 - Оператор для управлении вузлами подачі

  17. S136 - Увімкнення рабочей подачі в направлении "+"
  18. S137 - Увімкнення рабочей подачі в направлении "-"
  19. S156 - Запись кадра з позиционированием
  20. S157 - Запись кадра з подачей
  21. S36 - СТОП подача
  22. S143 - СТОП обертання шпинделя
  23. - Выносной пульт керування УЧПУ

  24. Лампы сигнализации

  25. H26 - Автоматическая работа
  26. H34 - УЧПУ не готово к работе
  27. H35 - Нет силового живлення тиристорных преобразователей
  28. H36 - Гідростанція неисправна
  29. H33 - Неисправности холодильной машины
  30. H27 - Засорение фильтра
  31. H87 - Наезд на аварийные конечные выключатели
  32. S16 - Варіатор скорости обертання головного привода
  33. S151 - Увімкнення насоса охлаждающей жидкости
  34. S13 - Увімкнення освещения верстата

  35. Кнопки

  36. S144 - Включен не обертання шпинделя по часовий стрелке
  37. S119 - Увімкнення змазки
  38. S146 - Увімкнення толчкового проворота шпинделя по часовий стрелке
  39. S145 - Увімкнення обертання шпинделя против часовий стрелки
  40. S147 - Увімкнення толчкового проворота шпинделя против часовий стрелки
  41. S152 - Увімкнення гідростанції
  42. S148 - СТОП обертання шпинделя
  43. S153 - СТОП гідростанції

  44. Переключатели в наладочном режиме

  45. S52 - Регулювання скорости перемещений
  46. S54 - Выбор диапазона швидкостей шпинделя
  47. S51 - Выбор направления переміщення вузлів, подачі і обертання шпинделя
  48. S185 - Переключатель выбора роботи з пульта головного или переносного
  1. S159 - Работа з планшайбой
  2. S158 - робота з фрезерной головкой

Кінематична схема горизонтально-розточувального верстата 2а622ф4

Кінематична схема горизонтально-расточного верстата 2а622ф4

Схема кінематична горизонтально-расточного 2а622ф4. Скачать в увеличенном масштабе







2А622Ф4 Верстат горизонтально-расточной з ЧПУ. Відеоролик.




Технічні характеристики горизонтально-расточных верстатів 2А622Ф4

Наименование параметра 2А622Ф4 2В622Ф4
Основні параметри верстата
Диаметр выдвижного расточного шпинделя, мм Ø 110 Ø 125
Наибольший диаметр растачиваемого отверстия, мм Ø 240 Ø 320
Наибольший диаметр сверла (по конусу), мм Ø 50
Наибольший диаметр фрезы, мм Ø 250
Точность перемещений по координатам (X,Y,Z) на длине переміщення 1000 мм, мм ± 0,015
Точность углового позиционирования поворотного стола через 90°, мм ± 0,015
Стол
Рабочая поверхность стола, мм 1250 х 1250 1250 х 1250
Наибольшая масса обрабатываемого вироби, кг 5000 5000
Наибольшее продольное перемещение стола (Z), мм 1000 1000
Наибольшее поперечное перемещение стола (X), мм 1250 1250
Наибольший поворот (B), град 360°
Пределы рабочих подач стола (X, Y, Z, W), мм/мин 1..3200 1..5000
Пределы рабочих подач стола (B), град/мин 1..360°
Наибольшее усиление подачі стола (вдоль і поперек), Н (кгс) 19600 (2000)
Скорость быстрых продольных перемещений (X, Y, Z, W), м/мин 8 8
Скорость быстрых установочных круговых перемещений (B), об/мин 3,2
Шпиндель
Наибольшее горизонтальное (осевое, продольное) перемещение шпинделя, мм 710 710
Частота обертання шпинделя, об/мин 4..1250 6..1250
Дискретность задания швидкостей шпинделя 1 1
Найбільший момент, що крутить, на шпинделі, Н (кгс*м) 1765 (180) 1765 (180)
Межі робочих подач шпинделя (W), мм/хв. 1..3200 1..5000
Межі робочих подач шпиндельної бабки вертикально (Y), мм/хв. 1..3200 1..5000
Швидкість швидких переміщень шпиндельної бабки вертикально (Y), м/хв. 8 8
Найбільше вертикальне переміщення шпиндельної бабки (Y), мм 1000 1000
Швидкість швидких переміщень шпинделя (W), м/хв. 8 8
Найбільше осьове посилення подачі (X, Y, Z, W), Н (кгс) 10780 (11000) 10780 (11000)
Кінець висувного шпинделя за ГОСТ19860-74 50 AT5 ISO 50
Пристрій програмного керування (УЧПУ)
Модель УЧПУ 2C42—65 2C42—65
Кількість одночасно керованих координат 3/4
Дискретність завдання координат 0,001 0,001
Привід
Кількість електродвигунів на верстаті 10
Електродвигун приводу головного руху Потужність, кВт 20 22
Електродвигун приводу подач, Н*м 47
Сумарна потужність електродвигунів, кВт 50,6
Габарити та маса верстата
Габарити верстата, включаючи хід столу та санок, мм 3980 х 6335 х 3980 7600 х 3750 х 3500
Маса верстата, кг 20500 18500


    Список літератури:

  1. Бернштейн-Коган В.С. Електроустаткування координатно-розточувальних та різьбошліфувальних верстатів, 1969
  2. Глухів Н.М. Робота на координатно-розточувальних верстатах, 1953
  3. Григор'єв С.П., Григор'єв В.С. Практика координатно-розточувальних та фрезерних робіт, 1980
  4. Іпатов С.С. Координатно-розточувальні верстати в точному приладобудуванні, 1954
  5. Кашепав М.Я. Сучасні координатно-розточувальні верстати, 1961
  6. Кудряшов О.О. Верстати інструментального виробництва, 1968
  7. Смирнов В.К. Токар-розточник. Підручник для технічних училищ, 1982
  8. Тепінкічієв В.К. Металорізальні верстати, 1973
  9. Зазерський Є.І., Гутнер Н.Г. Токар-розточник, 1960
  10. Пономарьов В.Ф. Довідник токаря-розточника,1969
  11. Смирнов В.К. Токар-розточник. Підручник для технічних училищ, 1982
  12. Богданов А.В. Розточна справа, 1960









Будь-яка робота потребує більше часу, ніж ви думаєте.

Закон Мерфі