Виробник безцентрового круглошліфувального верстата 3Е183 - Вітебський верстатобудівний завод "Вістан" , заснований у 1914 році.
У 1960 році рішенням уряду було ухвалено рішення про випуск безцентро-вішліфувальних верстатів універсальних та спеціальних.
Вітебський верстатобудівний завод «Вістан» одне з провідних підприємств із виробництва круглошліфувальних, центрових та безцентрових верстатів, зубообробних, обробних центрів з ЧПУ, токарних, спеціальних, міні, деревообробних верстатів.
Верстат безцентровошліфувальний 3Е183 призначений для шліфування тіл обертання з діаметром заготовок від 1,2 до 40 мм при обробці на прохід і обробці врізанням. Діаметр виробу, що допускається, на напівавтоматах 3Е183В і 3Е183А до 40 мм.
Напівавтомат 3Е183 забезпечує автоматичні цикли:
Для здійснення врізного шліфування на напівавтоматі передбачено встановлення завантажувального маніпулятора УЗ1-560, налагодженого на завантаження деталей діаметром 27-40 і довжиною до 245 мм.
Для завантаження деталей різноманітної конфігурації, діаметри та довжини яких відмінні від зазначених у паспорті напівавтомата, конкретний завантажувальний пристрій та налагодження завод виготовляє на особливе замовлення.
Бабка шліфувального кола і бабка ведучого кола рухливі. Супорт та опорний ніж нерухомі. Бабку провідного кола можна встановити у горизонтальній площині під кутом ±30°, а найбільший кут нахилу осі провідного кола у вертикальній площині ±8°. Шліфувальна бабка встановлена на роликових направляючих зі сталевими загартованими планками. Бічні напрямні також роликові. Бабка провідного кола встановлена на направляючих ковзання.
Клас точності верстатів за ГОСТ 8-82Е: мод. 3Е183В - В; мод. 3Е183А - А.
Для роботи цим методом вісь провідного кола встановлюють у вертикальній площині щодо осі шліфувального кола під кутом до 4° (рис. 58, б).
У процесі шліфування осі обох кіл та ніж нерухомі. У міру зношування кіл їх переміщають відносно один одного на величину зношування.
Матеріал ведучого кола внаслідок високого коефіцієнта тертя забезпечує хороше зчеплення провідного кола зі заготовкою, що шліфується. Тому встановлений під кутом α і обертовий з окружною швидкістю v провідний коло повідомляє заготівлі кругову подачу з окружною швидкістю v=v cosα м/хв (рис. 58, б) і поздовжню подачу зі швидкістю vп=v sinα м/хв.
Дійсна окружна швидкість v′о під впливом додаткового обертання заготовки шліфувальним кругом дещо більша за теоретичну vо: v′о=(1,02..1,07) vо (залежно від кута α).
Процес шліфування може бути безперервним, тому безцентрово-шліфувальні верстати зручно використовувати у потокових та автоматичних лініях.
Цим методом користуються при шліфуванні заготовок з фасонним, конічним або іншим, відмінним від циліндричного профілем, а також при шліфуванні циліндричних заготовок з буртом або будь-якою виступаючою частининою, діаметр якої більший за діаметр шліфованої поверхні.
Працюючи методом врізання осі кіл розташовують горизонтально, заготовку поміщають між ножем і провідним колом. Шліфування поверхні ведеться одночасно по всій довжині за рахунок поперечної подачі шліфувального (або в деяких верстатах провідного) кола. Наприкінці поперечної подачі виріб має заданий розмір.
Профіль обох кіл правиться відповідно до профілю заготовки, що шліфується. Довжина оброблюваної поверхні не може бути більшою за ширину шліфувального кола.
Шліфування з наскрізною подачею до упору. Цим методом використовують для шліфування циліндричних поверхонь заготовок з буртом або конічних поверхонь. Осьове переміщення заготовки обмежується упором, який після закінчення обробки виштовхує її.
Характерною особливістю цього методу є рух опорного ножа разом із заготівлею в процесі її обробки. Для переміщення ножа використовують спеціальний пристрій, який встановлюють на опорний місток 4 (рис. 59, г).
Цей метод застосовують замість шліфування з наскрізною подачею до упору, коли поздовжню подачу та відведення виробу зручніше здійснювати за допомогою опорного ножа.

Габарит робочого простору шліфувального верстата 3Е183
Габарит робочого простору шліфувального верстата 3Е183. Дивитись у збільшеному масштабі

Абразивні круги та планшайба безцентрового верстата 3Е183
Абразивні круги та планшайба безцентрового верстата 3Е183. Дивитись у збільшеному масштабі

Фото круглошліфувального безцентрового верстата 3Е183
Фото круглошліфувального безцентрового верстата 3Е183. Дивитись у збільшеному масштабі

Фото круглошліфувального безцентрового верстата 3Е183
Фото круглошліфувального безцентрового верстата 3Е183. Дивитись у збільшеному масштабі

Фото круглошліфувального безцентрового верстата 3Е183
Фото круглошліфувального безцентрового верстата 3Е183. Дивитись у збільшеному масштабі

Фото круглошліфувального безцентрового верстата 3Е183
Фото круглошліфувального безцентрового верстата 3Е183. Дивитись у збільшеному масштабі

Фото круглошліфувального безцентрового верстата 3Е183
Фото круглошліфувального безцентрового верстата 3Е183. Дивитись у збільшеному масштабі

Розташування основних вузлів безцентрово-шліфувального верстата 3Е183

Розташування основних вузлів безцентрово-шліфувального верстата 3Е183

Розташування органів керування бесцентрово шлифовальным верстатом 3Е183

Розташування органів керування бесцентрово шлифовальным верстатом 3Е183
Увімкнення верстата
Кнопкой SB4 в зоне 4.7 включается електродвигатель змазки M5 в зоне 2.3 для напівавтомату моделі 3Е183В или в зоне 5.3 для напівавтомату, моделі ЗЕ183А.
При повышении температуры змазки выше установленной включается магнитный пускатель КМ1 в зоне 4.8, который включает вентилятор охлаждения змазки М6 в зоне 2.1 для напівавтомату моделі 3E183В или в зоне 5.1 для напівавтомату моделі 3Е183А. При нормальной температуре змазки вентилятор охлаждения змазки М6 отключен.
При наличии потока змазки шлифовального круга в напівавтоматі моделі 3Е183В включается бесконтактный путевой переключатель SQ11 в зоне 5.7, который включает реле KV4 в зоне 5.6.
При наличии давления змазки шлифовального і ведущего кругов в напівавтоматі моделі 3Е183А нажимаются выключатели конечный - SQ13 і SQ14, которые включают реле КV4 в зоне 5.4.
Кнопкой SB6 в зоне 4.6 включается привід ведущего круга A3 в зоне 3.10. Кнопкой SB5 в зоне 4.6 осуществляется его останов.
Когда защитный кожух шлифовального круга установлен, включается бесконтактный путевой переключатель SQ12, который включает реле KV5 в зоне 5.6.
Кнопкой SB8 в зоне 4.5 включается електродвигатель М1 приводу шлифовального круга в зоне 2.10. Кнопкой SB7 в зоне 4.5 осуществляется его останов.
При включенном шлифовальном круге переключателем SA4 в зоне 4.4 включается електродвигатель М2 приводу охлаждения в зоне 2.8 магнитный сепаратор М3 в зоне 2.6. Этим же переключателем осуществляется их останов.
С наличием подачі СОЖ нажимается конечный выключатель SQ10, который включает реле КV3 в зоне 5.7.
Когда отсутствует наладочный режим роботи напівавтоматов (размыкающий контакт в зоне 4.4), по команде на перемещение механізма правки шлифовального круга (замыкающие контакты в зонах 4.3, 4.4), включается магнитный пускатель КМ8 или КМ9 в зоне 4.3. Включается електродвигатель М9 переміщення механізма правки шлифовального круга в зоне 3.6.
Механізм правки шлифовального круга перемещается из одного крайнего положения в другое і наоборот путем переключения магнитных пускачів КМ8 і КМ9 в зоне 4.3 конечными выключателями SQ4 і SQ5. В наладочном режиме роботи напівавтоматов ( размыкающий контакт в зоне 4.4 разомкнут, замыкающий контакт в зонах 4.2 і 5.12 замкнут).
Кнопкой SВ9 в зоне 4.3 осуществляется перемещение механізма правки шлифовального круга вперед, а кнопкой SB10 в зоне 4.2 назад. Кнопкой SB11 в зоне 4.2. осуществляется останов механізма правки шлифовального круга.
Кнопкой SB12 в зоне 4. 2. осуществляется перемещение механізма правки ведущего круга вперед (електродвигатель М10 в зоне 3.4), а кнопкой SB13 в зоне 4.1 назад.
Кнопкой SB14 в зоне 4.1 осуществляется останов механізма правки шлифовального круга.
Кнопкой SB15 в зоне 5.12, при отключенном шлифовальном круге (размыкающий контакт KM4 в зоне 5.12 замкнут), осуществляется ускореннее перемещение шлифовальной бабки вперед, а кнопкой SB16 в зоне 5.11 назад (електродвигатель КМ4 в зоне 2.5).
Резистором R13 в зоне 3.4 устанавливается скорость переміщення механізма правки шлифовального круга.
Резистором R14 в зоне 3.3 устанавливается скорость переміщення механізма правки ведущего круга.
Привід ведущего круга A2 (зона 3.9 работает в двух режимах:
Режим роботи приводу ведущего круга устанавливается переключателем SA1 в зоне 5.5. При работе ведущего круга в режиме «Работа» реле KV6 в зоне 5.5 отключено.
Задатчик частоти обертання ведущего круга получает питание ~110 В от трансформатора Т3 в зоне 3.12.
Это напряжение выпрямляется двухполупериодным выпрямителем VД1 в зоне 3.12, сглаживается конденсатором С1 і стабилизируется стабилитроном VД2. Стабилизированное напряжение =110 В подается на резисторы R3, R4, R5. Задающее напряжение подается на точки 9 і 11 клеммника Х12 приводу А2, зона 3.10.
Резистором R4 в зоне 3.11 в рабочем режиме приводу ведущего круга устанавливается требуемая частота обертання ведущего круга.
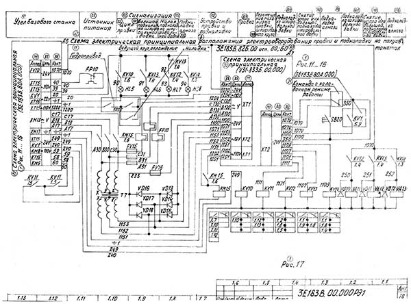
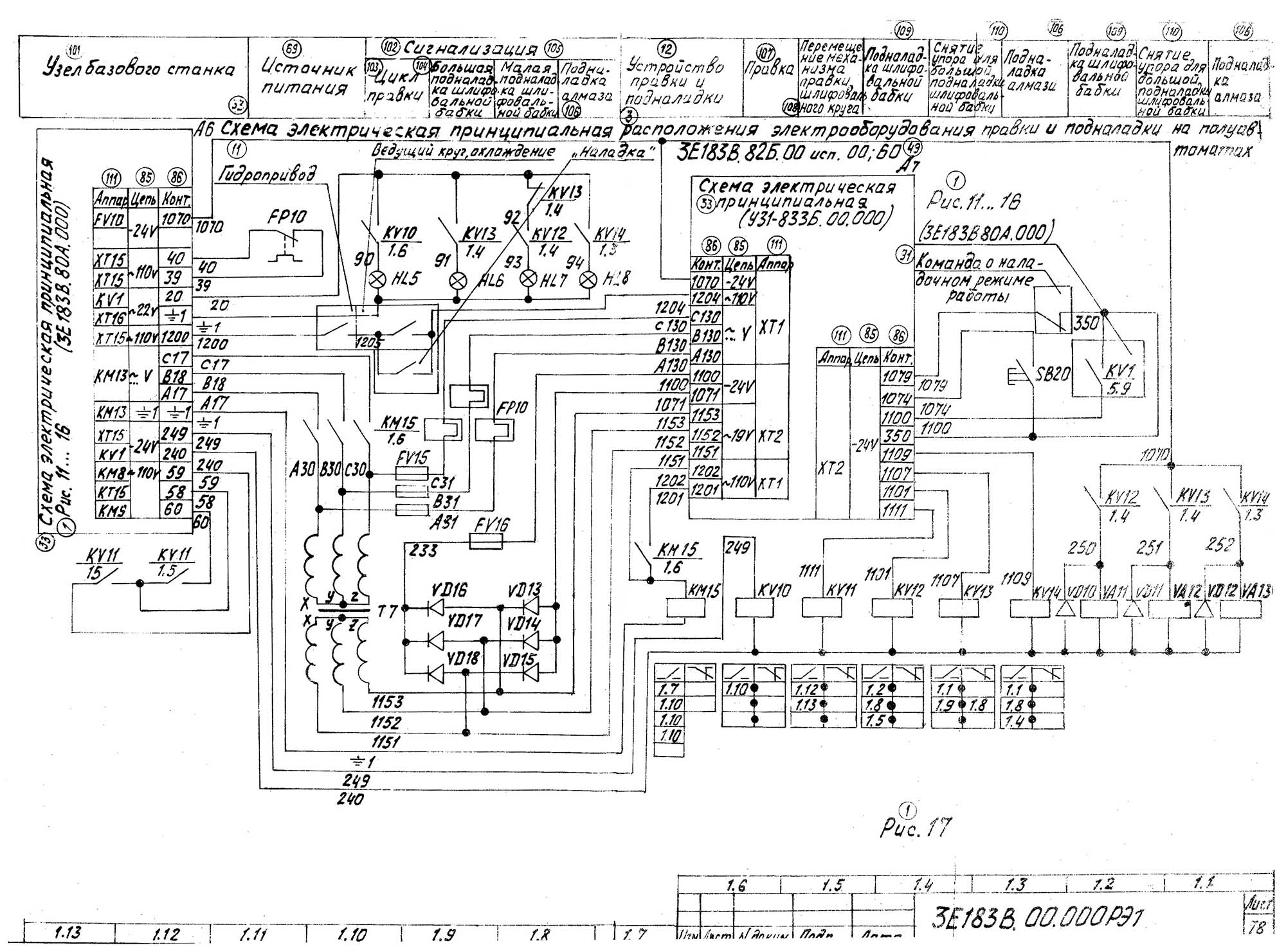
Опис роботи схеми електрической принципиальной вузла правки і подналагодження. Рисунок 17.
По команде из пристроя правки і подналагодження У31-8338 включается магнитный пускатель КМ15 в зоне 4.6, который включает источник живлення Т? в зоне 1.10. При цикле правки, по команде из пристроя правки і подналагодження У31-8335 подключается реле КV10 в зоне 1.6. Включается реле КV11в зоне 1.5, которое замыкающими контактами включает перемещение механізма правки.
Кнопкой SB26 в зоне 2.8 включается магнитный пускатель KM20, который включает електродвигатель гідроприводу M15 в зоне 2.12. Кнопкой SB25 в зоне 2.8 осуществляется его останов.
Узел загрузки передбачає три режима роботи:
Переключатель режимов работ SA7 в зонах 2.2 і 2.4 устанавливается в положение «Напроход».
Реле КV20, КV21, КV22, КV23, КV40 в зонах 2.1; 2.2; 2.3; 2.4; і 4.4 отключены.
Производится загрузка деталей в зону шлифования. Детали шлифуются і выгружаются.
Переключатель режимов работ SA7 в зоне 2.2 устанавливается в положение «Врезание». Включается реле КV22, КV23 в зоне 2.2.
С включением гідроприводу в зоне 3.9 включается реле KV24.
При включенных ведущем круге і СОЖ включается реле KV25 в зоне 3.9.
Механізм переміщення правки шлифовального круга находится в одном из крайних положений.
Пристрій правки і подналагодження У31-833Б включено.
Загрузка передбачає два цикла роботи:
Переключатель SA11 в зоне 4.3 устанавливается в положение «П-образный» цикл роботи. Включается реле KV41.
Если загрузка находится не впереди, включается реле KV35 в зоне 4.12, которое в зоне 2.7 включает електромагнит VA15.
Происходит подъем загрузки. Когда загрузка поднимается вверх, включается бесконтактный путевой переключатель SQ18 в зоне 3.5, который включает реле KV29. Реле KV36 в зоне 4.9 отключается.
Электромагнит VA16 отключается в зоне 2.6.
Загрузка идет вперед в исходное положение. Бесконтактный путевой переключатель SQ16 в зоне 3.7 отключается і отключает реле KV27.
Придя вперед, включается путевой переключатель SQ15 в зоне 3.8, который включает реле KV26. Реле KV35 в зоне 4.12 отключается в зоне 2.6 отключает електромагнит VA15.
Загрузка опускается вниз. Бесконтактный путевой переключатель SQ18 в зоне 3.5 отключается і отключает реле KV29. Когда загрузка опустится, включается бесконтактный путевой переключатель SQ17 в зоне 3.6, который включает реле KV28. Таким образом загрузка пришла в исходное положение.
При отсутствии цикла правки (размыкающий контакт реле KV10 в зоне 4.9) при нахождении загрузки впереди і внизу при исходном положении шлифовальной бабки (замыкающий контакт реле KV32, KV28, KV34, в зоне 4.8) кнопками SB27, SB28, SB29 в зоне 4.7 включается реле KV37, т.е. цикл.
Включается реле KV38 в зоне 4.6?. Включается реле KV35 в зоне 4.12. Включается електромагнит VA15 в зоне 2.6.
Происходит подъем загрузки. Бесконтактный путевой переключатель SQ17 в зоне 3.6 отключается і отключает реле KV28. Когда загрузка поднимается, включая бесконтактный путевой переключатель SQ18 в зоне 3.5, который включает реле KV29. Включается реле KV36 в зоне 4.9, которое в зоне 2.6 включает електромагнит VA16 в зоне 2.6.
Загрузка идет в зону. Бесконтактный путевой переключатель SQ15 в зоне 3.8 і реле KV26 в зоне 3.8 отключается. Когда загрузка придет в зону, включается бесконтактный путевой переключатель SQ16 в зоне 3.7 і реле KV27 в зоне 3.7. Включается реле KV33 в зоне 3.2. В зоне 4.12 отключается реле KV36. В зоне 2.7 отключается електромагнит VA15 в зоне 2.6.
Загрузка опускается вниз. Бесконтактный путевой переключатель SQ18 в зоне 3.5 отключается. Когда загрузка опустится, включается бесконтактный путевой переключатель SQ17 і реле KV28 в зоне 3.6.
В зоне 4.5 включается реле KV39, которое в зоне 2.5 включит електромагнит VA17.
Происходит подскок шлифовальной бабки, рабочая подача. Бесконтактный путевой переключатель SQ19 і реле KV30 в зоне 3.4 отключаются.
Когда закончится подача шлифовальной бабки бесконтактный путевой переключатель SQ20 і реле KV31 в зоне 3.3 включатся. Включается реле часу KT5 в зоне 2.8.
Происходит выхаживание. Когда сработает реле часу KT5 з выдержкой часу на включение, оно отключает реле KV37 в зоне 4.8. В зоне 4.5 отключается реле KV39. В зоне 2.8 отключается реле KT5. Электромагнит VA17 в зоне 2.5 отключается.
Шлифовальная бабка возвращается в исходное положение. Бесконтактный путевой переключатель SQ20 і реле KV31 в зоне 3.4 отключатся. Когда шлифовальная бабка придет в исходное положение включаются бесконтактный путевой переключатель SQ19 і реле KV30 в зоне 3.4. В зоне 3.1 включается реле KV34. В зоне 4.6 отключается реле KV38. В зоне 4.12 включается реле KV35, которое в зоне 2.7 включает електромагнит VA15.
Загрузка поднимается вверх. Бесконтактный путевой переключатель SQ17 і реле KV28 в зоне 3.6 отключаются. Когда загрузка поднимется вверх, включается бесконтактный путевой переключатель SQ18 і реле KV29 в зоне 3.5. В зоне 4.9 отключается реле KV36, которое в зоне 2.6 отключает електромагнит VA1?.
Загрузка идет вперед в исходное положение. Бесконтактный путевой переключатель SQ16 і реле KV27 в зоне 3.7 отключаются. Реле KV33 в зоне 3.2 отключается.
Когда загрузка придет вперед, включается путевой переключатель SQ15 в зоне 3.8, который включает реле KV26.
В зоне 6.3 включается реле KV32. Реле KV35 в зоне 4.12 отключается. В зоне 2.7 отключается електромагнит VA15. Загрузка опускается вниз. Бесконтактный путевой переключатель SQ18 і реле KV29 в зоне 3.5 отключаются. Когда загрузка опустится, включается бесконтактный путевой переключатель SQ17 і реле KV28 в зоне 3.6.
С нажатием кнопок SB27, SB28, SB29 в зоне 4.7 описанный цикл повторяется.
При включении цикла правки цикл обробки детали заканчивается полностью.
Увімкнення цикла врізання при правке невозможно.
Переключатель SA11 в зоне 4.3 устанавливается в положение «Прямой цикл роботи».
В зоне 4.3. включается реле KV41. Загрузка находится впереди внизу, шлифовальная бабка находится в исходном положении (замыкающие контакты реле KV28, KV32, KV34 в зоне 4.8). Теперь при отсутствии цикла правки (размыкающий контакт реле KV10 в зоне 3.9) кнопками SB27, SB28, SB29 включается реле KV37 т.е. «Цикл».
В зоне 4.9 включается реле KV36, которое в зоне 2.6 включает електромагнит VA16.
Загрузка перемещается в зону. Бесконтактный путевой переключатель SQ15 в зоне 3.8 і реле KV26, KV32 в зоне 3.8, 3.3 отключается. Когда загрузка придет в зону, включается бесконтактный путевой переключатель SQ16 в зоне 3.7, реле KV27 в зоне 3.7 і реле KV33 в зоне 3.2 включатся.
Бесконтактный путевой переключатель SQ17, реле KV28 в зоне 3.6 все время включены.
Бесконтактный путевой переключатель SQ18, реле KV29 в зоне 3.5 все время отключены.
Включается реле KV39 в зоне 4.5, которое в зоне 2.5 включает електромагнит VA17.
Происходит подскок шлифовальной бабки, рабочая подача. Бесконтактный путевой переключатель SQ19 і реле KV30 в зоне 3.4 отключаются.
Когда закончится подача шлифовальной бабки бесконтактный путевой переключатель SQ20 і реле KV31 в зоне 3.3 включатся. Включается реле часу KT5 в зоне 2.8.
Происходит выхаживание. Когда сработает реле часу KT5 з выдержкой часу на включение, оно отключает реле KV37 в зоне 4.8. В зоне 4.5 отключается реле KV39. В зоне 2.8 отключается реле KT5.
Электромагнит VA17 в зоне 2.5 отключается.
Шлифовальная бабка возвращается в исходное положение. Бесконтактный путевой переключатель SQ20 і реле KV31 в зоне 3.4 отключатся. Когда шлифовальная бабка придет в исходное положение включаются бесконтактный путевой переключатель SQ19 і реле KV30 в зоне 3.4. В зоне 3.1 включается реле KV34. В зоне 4.6 отключается реле KV38. В зоне 4.6 отключается реле KV38. В зоне 4.9 отключается реле KV36, которое в зоне 2.6 отключает електромагнит VA16.
Загрузка возвращается вперед в исходное положение. Бесконтактный путевой переключатель SQ16 і реле KV27 в зоне 3.7 отключаются. Реле KV33 в зоне 3.2 отключается.
Когда загрузка придет вперед, включается путевой переключатель SQ15 в зоне 3.8, который включает реле KV26 і реле KV32 в зонах 3.8, 3.3 включаются.
С нажатием кнопок SB27, SB28, SB29 в зоне 4.7 описанный цикл повторяется.
При включении цикла правки цикл обробки детали заканчивается полностью.
Увімкнення цикла врізання при правке невозможно.
Переключатель режимов работ SA7 в зоне 2.4 устанавливается в положение «Наладка».
Включаются реле KV20, KV21, KV40 в зонах 2.2, 4.4.
Переключателем SA8 в зоне 4.11 можно осуществить подъем і опускание загрузки при П-образной загрузке.
Переключателем SA9 в зоне 4.9 можно осуществить перемещение загрузки в зону і из зоны.
Переключателем SA10 в зоне 4.5 можно осуществить подвод і отвод шлифовальной бабки.
Схеми напівавтоматов предусматривают наступні блокировки.
1. Увімкнення вводного выключателя QF1 в зоне 2.12 возможно в режиме «Блокировка дверей електрошафи включена» (переключатель SA3в зоне 4.10) при нажатых конечных выключателях SQ2, SQ3 в зоне 4.9.
2. Увімкнення вводного выключателя QF1 в зоне 2.12 возможно в режиме «Блокировка дверей електрошафи включена» (переключатель SA3в зоне 4.10) при отжатых конечных выключателях SQ2, SQ3 в зоне 4.9.
3. Увімкнення змазки шлифовального і ведущего кругов, охлаждения, механізмов переміщення правки шлифовального і ведущего круга можно, если шлифовальная бабка не находится в крайних положениях (Размыкающий контакт реле RV2 в зоне 4.7).
4. Увімкнення шлифовального круга і охлаждения возможно только при защитном кожухе шлифовального круга (Замыкающий контакт реле KV5 в зоне 4.6).
5. Перемещение механізма правки шлифовального круга возможно, если нет переміщення механізма правки ведущего круга і наоборот (Размыкающие контакты магнитных пускачів KM8, KM9, KM10, KM11, в зоне 4.1, 4.2).
6. Перемещение механізма правки шлифовального і ведущего круга вперед возможно, если они не находятся впереди і наоборот назад если они не находятся сзади (Размыкающие контакты конечных выключателей SQ4, SQ5, SQ6, SQ76 в зоне 4.1, 4.2, 4.3).
7. Установочное перемещение шлифовальной бабки возможно при отключенном шлифовальном круге (Размыкающие контакты магнитных пускачів KM4, в зоне 5.12). Установочное перемещение шлифовальной бабки возможно, если шлифовальная бабка находится не в крайнем заднем переднем положении і наоборот – назад, если не в крайнем заднем положении (Размыкающие контакты конечных выключателей SQ8 і SQ9 в зоне 5.11, 5.12).
Циклы правки шлифовального круга, малой подналагодження шлифовальной бабки в не наладочном режиме роботи напівавтоматов возможны при нахождении механізма правки шлифовального круга в одном из крайних положений (Замыкающий контакт реле KV1 в зоне 1.2).
Работа вузла загрузки возможна только при включенном гідроприводе (Замыкающий контакт реле KV24 в зоне 4.12).
Цикл врізання возможен только при:
В наладочном режиме возможно осуществить:
1. Пристрій сигнализации "Дверь електрошафи открыта" - мигающие лампочки, размещенные в електрошкафу (А1 в зоне 2.11).
2. Лампа "Полуавтомат включен" - молочного цвета, расположена на пульті сигнализации (HL1 в зоне 4.12).
3. Лампа "Отсутствие змазки" - красного цвета, расположена на пульті сигнализации (HL2 в зоне 4.12).
4. Лампа "Механізм правки шлифовального круга в крайнем положении" - синего цвета, расположена на пульті сигнализации (HL3 в зоне 4.12).
1. Лампа "Цикл правки шлифовального круга" - синего цвета, расположена на пульті сигнализации (HL5 в зоне 1.10).
2. Лампа "Большая подналадка шлифовальной бабки" - синего цвета, расположена на пульті сигнализации (HL6 в зоне 1.9).
3. Лампа "Малая подналадка шлифовальной бабки" - синего цвета, расположена на пульті сигнализации (HL7 в зоне 1.8).
4. Лампа "Подналадка алмаза шлифовального круга" - синего цвета, расположена на пульті сигнализации (HL8 в зоне 1.8).
1. Лампа "Гідропривід включен" - зеленого цвета.
2. Лампа ???
3. Лампа ???
4. Лампа "Загрузка впереди" вне зоны обробки" - синего цвета, расположена на пульті сигнализации (HL13 в зоне 3.12).
5. Лампа "Загрузка сзади" в зоне обробки" - синего цвета, расположена на пульті сигнализации (HL14 в зоне 3.11).
6. Лампа "Исходное положение шлифовальной бабки" - синего цвета, расположена на пульті сигнализации (HL15 в зоне 3.11).
7. Лампа "Цикл включен" - синего цвета, расположена на пульті сигнализации (HL16 в зоне 3.10).
8. Лампа "Подача шлифовальной бабки" - синего цвета, расположена на пульті сигнализации (HL17 в зоне 3.10).
8. Лампа "Выхаживание" - синего цвета, расположена на пульті сигнализации (HL18 в зоне 3.9).
Регулювання приводу правки У31-863.86А производится согласно «Руководство по експлуатации У31-863.86А.000
Регулювання приводу ведущего круга производится согласно инструкции по експлуатации на блоки керування БУ3609.
При полностью выведенном резисторе R4 резистором R3 устанавливается требуемая минимальная частота обертання ведущего круга.
При полностью введенном резисторе R4 резистором R5 устанавливается требуемая максимальная частота обертання ведущего круга.
При 100 об/мин ведущего круга резистором R8 устанавливается на вольтметре R1 напряжение 10 В.
Резистором R7, при работе в режиме «Правка» путем ослабления поля устанавливается частота обертання ведущего круга при правке. Резистором R10 по вольтметру PV1 устанавливается такое напряжение, которое бы соответствовало частоте обертання ведущего круга при правке. При етом 1 В должен соответствовать 20 об/мин.
Для контроля нагрузки на електродвигатель на шлифовального круга в % к номинальной, на пульті сигнализации установлен амперметр PA1.
Амперметр включен через трансформатор тока ТА1. В зависимости от мощности установленного на станке електродвигуна, показания амперметра в % необходимо умножить на коеффициент К, равный:

Функциональная схема бесцентрово-шлифовального верстата 3Е183
Функциональная схема бесцентрово-шлифовального верстата 3Е183. Дивитись у збільшеному масштабі

Функциональная схема бесцентрово-шлифовального верстата 3Е183
Функциональная схема бесцентрово-шлифовального верстата 3Е183. Дивитись у збільшеному масштабі

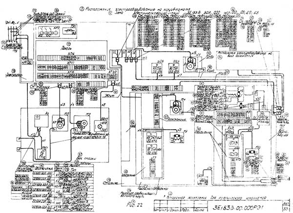
Схема розположення електроустаткування бесцентрово-шлифовального верстата 3Е183

Схема розположення електроустаткування бесцентрово-шлифовального верстата 3Е183

Схема розположення електроустаткування бесцентрово-шлифовального верстата 3Е183

Схема розположення електроустаткування бесцентрово-шлифовального верстата 3Е183

Схема розположення електроустаткування бесцентрово-шлифовального верстата 3Е183

Схема розположення електроустаткування бесцентрово-шлифовального верстата 3Е183

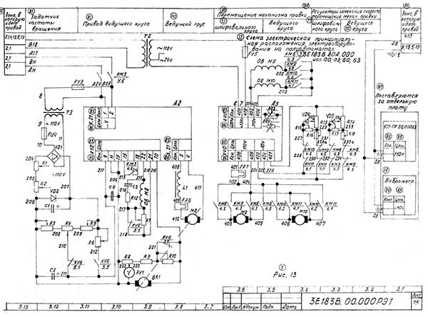
Схема електрична бесцентрово-шлифовального верстата 3Е183
Схема електрична бесцентрово-шлифовального верстата 3Е183. Дивитись у збільшеному масштабі

Схема електрична бесцентрово-шлифовального верстата 3Е183
Схема електрична бесцентрово-шлифовального верстата 3Е183. Дивитись у збільшеному масштабі

Схема електрична бесцентрово-шлифовального верстата 3Е183
Схема електрична бесцентрово-шлифовального верстата 3Е183. Дивитись у збільшеному масштабі

Схема електрична бесцентрово-шлифовального верстата 3Е183
Схема електрична бесцентрово-шлифовального верстата 3Е183. Дивитись у збільшеному масштабі

Схема електрична бесцентрово-шлифовального верстата 3Е183
Схема електрична бесцентрово-шлифовального верстата 3Е183. Дивитись у збільшеному масштабі

Схема електрична бесцентрово-шлифовального верстата 3Е183
Схема електрична бесцентрово-шлифовального верстата 3Е183. Дивитись у збільшеному масштабі

Схема електрична бесцентрово-шлифовального верстата 3Е183
Схема електрична бесцентрово-шлифовального верстата 3Е183. Дивитись у збільшеному масштабі

Схема електрична бесцентрово-шлифовального верстата 3Е183
Схема електрична бесцентрово-шлифовального верстата 3Е183. Дивитись у збільшеному масштабі

Схема електрична бесцентрово-шлифовального верстата 3Е183
Схема електрична бесцентрово-шлифовального верстата 3Е183. Дивитись у збільшеному масштабі

Схема електрична бесцентрово-шлифовального верстата 3Е183
Схема електрична бесцентрово-шлифовального верстата 3Е183. Дивитись у збільшеному масштабі

Схема електрична бесцентрово-шлифовального верстата 3Е183
Схема електрична бесцентрово-шлифовального верстата 3Е183. Дивитись у збільшеному масштабі

Схема електрична бесцентрово-шлифовального верстата 3Е183
Схема електрична бесцентрово-шлифовального верстата 3Е183. Дивитись у збільшеному масштабі

Список елементів бесцентрово-шлифовального верстата 3Е183
Список елементів бесцентрово-шлифовального верстата 3Е183. Дивитись у збільшеному масштабі

Список елементів бесцентрово-шлифовального верстата 3Е183
Список елементів бесцентрово-шлифовального верстата 3Е183. Дивитись у збільшеному масштабі

Монтажная схема бесцентрово-шлифовального верстата 3Е183
Монтажная схема бесцентрово-шлифовального верстата 3Е183. Дивитись у збільшеному масштабі

Технічні характеристики бесцентровошлифовального верстата 3Е183
Технічні характеристики бесцентровошлифовального верстата 3Е183. Дивитись у збільшеному масштабі

Технічні характеристики бесцентровошлифовального верстата 3Е183
Технічні характеристики бесцентровошлифовального верстата 3Е183. Дивитись у збільшеному масштабі