Виробник шліфувального верстата 3451 Московський верстатобудівний завод шліфувальних верстатів, МСЗ , заснований в 1879 році.
Гама шліцешліфувальних верстатів серії 3451 , 3451б, 3451в, 3451г запущена в серійне виробництво у 1965 році
Шліцешліфувальні верстати гами 3451 призначені для шліфування прямобічних, трикутних шліцьових валів, а також для шліфування бічних сторін евольвентних шліцьових валів по радіусу, наближеному до евольвенти.
Верстати 3451 призначені для шліфування шліцьових валів у серійному виробництві.
Шліфування виробів проводиться одним колом або блоком кіл. Бічні сторони шліцю та центруючий внутрішній діаметр обробляються одночасно. На верстаті можливе також роздільне шліфування центруючого діаметра та бокових сторін шліцю.
Механізми верстатів забезпечують автоматичний поділ на один зуб за подвійний хід стола, автоматичну вертикальну подачу шліфувального кола за один оборот виробу, редагування кола з керуванням від кнопки і автоматичну редагування.
Верстат 3451 гідрофікований. За допомогою гідроприводу здійснюються зворотно-поступальні переміщення столу, вертикальна подача шліфувального круга, правка кола та мастило направляючих столу.
Одночасна автоматична правка кола трьома алмазами та автоматична компенсація правки, автоматична подача кола на врізання швидке вертикальне переміщення шліфувальної головки скорочують допоміжний час обслуговування верстатів.
Змащування направляючих станини та каретки здійснюється автоматично. Надійний захист направляючих від пилу та абразивних частининок та застосування роликових направляючих кочення забезпечують стабільність автоматичної вертикальної подачі та довговічність служби направляючих.
Виділення гідросистеми з резервуаром для олії в окремий агрегат та застосування охолодження олії значно зменшує теплові деформації верстатів.
Шпиндель шліфувального кола змонтований на підшипниках кочення класу точності і отримує обертання від індивідуального електродвигуна через плоскочасну передачу.
Зміна чисел оборотів шліфувального кола здійснюється зміною шківів.
Електроапаратура верстата розміщена у підвісній шафі та безпосередньо на верстаті.
Захисні та блокувальні пристрої забезпечують надійну та безпечну роботу на верстаті.
Точність обробки відповідає нормам точності шліцешліфувальних верстатів класу П за ГОСТ 13134-67. Чистота обробки V7 (ГОСТ 2789-59).
За особливим замовленням зі верстатами поставляється необхідна кількість ділильних дисків та оснащення для обробки виробів з різною кількістю шліців.
Гама шліцешліфувальних верстатів серії 3451 складається з 4-х моделей, які відрізняються довжиною виробів, що шліфуються:
Розробник - Московський завод шліфувальних верстатів .

Посадочні та приєднувальні бази шліцешліфувального верстата 3451
Посадочні та приєднувальні бази верстата 3451. Дивитись у збільшеному масштабі

Вузол кріплення шліфувального круга верстата 3451

Фото шліцешліфувального верстата 3451

Фото шліцешліфувального верстата 3451

Фото шліцешліфувального верстата 3451

Фото шліцешліфувального верстата 3451
Фото шліцешліфувального верстата 3451. Дивитись у збільшеному масштабі

Фото шліцешліфувального верстата 3451

Фото шліцешліфувального верстата 3451

Розташування органів керування шліцешліфувальним верстатом 3451
Розташування органів керування шліцешліфувальним верстатом 3451. Дивитись у збільшеному масштабі

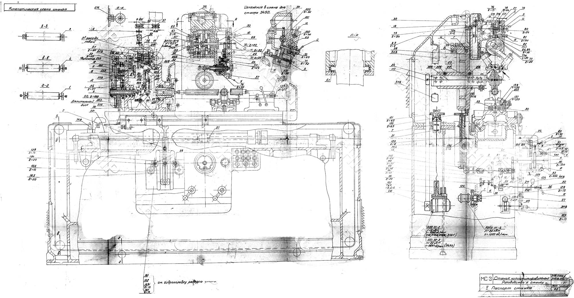
Кінематична схема шлицешлифовального верстата 3451
Схема кінематична шлицешлифовального верстата 3451. Дивитись у збільшеному масштабі

Шлифовальная головка 3451-30
Шлифовальная головка 3451-30. Дивитись у збільшеному масштабі

Настановне креслення шлицешлифовального верстата 3451
Настановне креслення шлицешлифовального верстата 3451. Дивитись у збільшеному масштабі
| Наименование параметра | 3451 | 3451Б | 3451В | 3451Г |
|---|---|---|---|---|
| Основні параметри верстата | ||||
| Высота центров над столом, мм | 180 | 180 | 180 | 180 |
| Расстояние от оси шпинделя до линии центров, мм | 32..182 | 32..182 | 32..182 | 32..182 |
| Длина устанавливаемых шлифуемых изделий, мм | 200..500 | 200..1000 | 200..1500 | 200..2000 |
| Диаметр шлифуемых изделий, мм | 25..125 | 25..125 | 25..125 | 25..125 |
| Наибольшая длина шлифуемых шлицев, мм | 350 | 850 | 1350 | 1850 |
| Количество шлифуемых шлиц | 3..48 | 3..48 | 3..48 | 3..48 |
| Вес обрабатываемого вироби (шлифовать з люнетом, если вес вироби превышает 40 кг), кг | 40 | 80 | 120 | 200 |
| Стол | ||||
| Розміри рабочей поверхности стола, мм | 1345 х 250 | 1845 х 250 | 2345 х 250 | 2845 х 250 |
| Продольное перемещение от гідропривода, мм | 200..620 | 200..1120 | 200..1620 | 200..2120 |
| Скорость продольного переміщення стола от гідравлики (регулювання бесступенчатое), м/мин | 1..15 | 1..15 | 1..15 | 1..15 |
| Шлифовальная головка | ||||
| Скорость шлифовального круга (регулируется сменой шкивов), об/мин | 2880, 4550, 6300 | 2880, 4550, 6300 | 2880, 4550, 6300 | 2880, 4550, 6300 |
| Найбільше вертикальне переміщення шліфувальної головки, мм | 150 | 150 | 150 | 150 |
| Найбільше поперечне (установче) переміщення шліфувальної головки, мм | 150 | 150 | 150 | 150 |
| Вертикальне переміщення шліфувальної головки за один оберт лімба, мм | 0,5 | 0,5 | 0,5 | 0,5 |
| Вертикальне переміщення шліфувальної головки на один поділ лімба, мм | 0,005 | 0,005 | 0,005 | 0,005 |
| Вертикальне переміщення шліфувальної головки на одну поштовху, мм | 0,005 | 0,005 | 0,005 | 0,005 |
| Автоматична вертикальна подача шліфувальної головки, мм | 0,005..0,07 | 0,005..0,07 | 0,005..0,07 | 0,005..0,07 |
| Швидке переміщення шліфувальної головки, мм/хв. | 462 | 462 | 462 | 462 |
| Діаметр шліфувального круга зовнішній, мм | 90..200 | 90..200 | 90..200 | 90..200 |
| Ширина шліфувального кола найбільша, мм | 32 | 32 | 32 | 32 |
| Діаметр посадкового отвору шліфувального кола, мм | 32..50 | 32..50 | 32..50 | 32..50 |
| Ділильний механізм | ||||
| Конусний отвір у шпинделі виробу | Морзе 6 | Морзе 6 | Морзе 6 | Морзе 6 |
| Центр шпинделя виробу | Морзе 4 | Морзе 4 | Морзе 4 | Морзе 4 |
| Задня бабка | ||||
| Конусний отвір у санках | Морзе 4 | Морзе 4 | Морзе 4 | Морзе 4 |
| Поздовжнє переміщення санок, мм | 30 | 30 | 30 | 30 |
| Прилад редагування кола | ||||
| Конусний отвір у шпинделі радіальної правки | Морзе 2 | Морзе 2 | Морзе 2 | Морзе 2 |
| Найбільше вертикальне переміщення, мм | 100 | 100 | 100 | 100 |
| Переміщення бічних алмазів, мм | 20 | 20 | 20 | 20 |
| Кут повороту радіусного алмазу, град | ±60° | ±60° | ±60° | ±60° |
| Глибина правки без компенсації зносу кола, мм | 0,01..0,05 | 0,01..0,05 | 0,01..0,05 | 0,01..0,05 |
| Глибина виправлення з автоматичною компенсацією зносу кола, мм | 0,01..0,02 | 0,01..0,02 | 0,01..0,02 | 0,01..0,02 |
| Швидкість переміщення алмазів при правці, м/хв | 0,05..0,5 | 0,05..0,5 | 0,05..0,5 | 0,05..0,5 |
| Привід та електроустаткування верстата | ||||
| Електродвигун головного приводу - шліфувального шпинделя, кВт (об/хв) | 3 (3000) | 3 (3000) | 3 (3000) | 3 (3000) |
| Електродвигун насоса гідравліки, кВт (об/хв) | 3 (1000) | 3 (1000) | 3 (1000) | 3 (1000) |
| Електродвигун приводу механізму розподілу, кВт (об/хв) | 0,27 (1500) | 0,27 (1500) | 0,27 (1500) | 0,27 (1500) |
| Електродвигун механізму прискореного вертикального переміщення каретки шліфувальної головки, кВт (об/хв) | 0,6 (1350) | 0,6 (1350) | 0,6 (1350) | 0,6 (1350) |
| Електродвигун системи охолодження, кВт (об/хв) | 0,12 (2800) | 0,12 (2800) | 0,12 (2800) | 0,12 (2800) |
| Габаритні розміри та маса верстата | ||||
| Габаритні розміри верстата (довжина x ширина x висота), мм | 2600 х 1513 х 1900 | 3450 х 1513 х 1900 | 4450 х 1513 х 1900 | 5250 х 1513 х 1900 |
| Маса верстата з електрообладнанням та охолодженням, кг | 3900 | 4900 | 6200 | 6820 |
Замовити
Хто володіє інформацією – той володіє світом.
Натан Ротшильд