metalinstryment.com
Довідник по металорізальних верстатів та пресовому обладнанні

692Д Верстат шпоночно-фрезерный вертикальний
схеми, опис, характеристики

692Д Верстат фрезерный шпоночный







Відомості про виробника шпоночно-фрезерного верстата 692Д

Производитель специального шпоночно-фрезерного верстата 692Д Дмитровский завод фрезерных верстатів, основанный в 1940 году.

Основной продукцией завода, в настоящее время, є универсальные консольно-фрезерные верстати гаммы «6К» і «6ДМ».





Верстати, выпускаемые Дмитровским заводом фрезерных верстатів, ДЗФС



692Д Верстат шпоночно-фрезерный вертикальний. Назначение, область применения

Специальный шпоночно-фрезерный верстат 692Д консольного типа з вертикально расположенным шпинделем сконструирован на базе моделі 692р запущенной в серию примерно в 1974 году.

Специализированные фрезерные верстати 692Д применяют в серийном производстве для обробки деталей, сходных по конфигурации, но различных по размеру.

Шпоночно-фрезерный верстат 692Д предназначен для обробки шпоночных пазов на валах мерными і немерными кінцівыми і шпоночными і фрезами, изготовленными по ТУ2-035-858—82.

На станке 692Д могут обрабатываться шпоночные пазы шириной от 4 до 28 мм в напівавтоматическом цикле.

Обработка пазов от 4 до 6 мм ведется маятниковым циклом мерным инструментом, а з 6 до 28 мм – на полную глубину за один проход з післядующей калибровкой ширины немерным инструментом.

Применение имеющегося на станке пристроя калибровки обрабатываемого паза обеспечивается соблюдение точності ширины шпоночного паза независимо от точності диаметра применяемых фрез (начиная з диаметра 6 мм).

На станке 692Д диапазон частот обертання шпинделя позволяет вести обработку шпоночных пазов как быстрорежущими фрезами, так і твердосплавными на всем диапазоне ширины пазов з високою производительностью.

Особливості конструкції верстата

Продольная подача осуществляется переміщенням фрезерной головки по направляющим головки станины.

Вертикальная подача — пинолью шпинделя.

Калибровка паза осуществляется путем поперечного переміщення стола.

Привід всех перечисленных движений гідравлический. Кроме того, на станке имеются установочные ручні переміщення:

Привід шпинделя от асинхронного електродвигуна мощностью 2,2 кВт через коробку швидкостей і двухступенчатые шкивы клиноременной передачи. Регулювання частоти обертання шпинделя производится переключением рукояток коробки швидкостей і переводом клинового ремня на ступенчатых шкивах из одного ручья в другой.

Маятниковый цикл шпоночно-фрезерного верстата 692Д

Маятниковый цикл шпоночно-фрезерного верстата 692Д


Шпоночные пазы шириной 4—6 мм обрабатываются на станке з маятниковой подачей на врезание (маятниковый цикл).

Шпоночные пазы шириной 6—25 мм обрабатываются со сверлильной подачей на полную глубину і за один проход на длину паза (однопроходный цикл).

Для обробки точных шпоночных пазов верстат имеет цикл обробки паза з калибровкой его ширины по двум стенкам.

Для обробки менее точных пазов существует цикл обробки паза з калибровкой его ширины по одной стенке.

Верстат 692Д имеет также цикл обробки паза без калибровки, когда ширина паза обеспечивается фрезой.

При обработке пазов на полную глубину сверлильная подача може быть прерывистой, что предотвращает образование длинной сливной стружки і наматывание її на фрезу.

При маятниковом цикле фреза ускоренно подводится к заготовке і з рабочей подачей перемещается вдоль заготовки. При каждом реверсе продольного переміщення инструмент получает периодическую вертикальную подачу врізання, величина которой задается по лимбу і може мати величину от 0 до 0,5 мм/ход. После нескольких продольных проходов, число которых будет зависеть от величины вертикальной периодической подачі, паз будет прорезан на полную глубину. Имеется возможность обробки паза без калибровки, з калибровкой ширины паза по одной стенке, з калибровкой ширины паза по двум стенкам. Выбирается вигляд обробки переключателем на пульті верстата при наладке.

Цикл без калибровки заканчивается після прорезки паза на заданную глубину, когда инструмент ускоренно выводится из паза і перемещается в начало паза.

Цикл з калибровкой ширины паза по одной стенке заключается в том, что після прорезки паза на заданную глубину, заготовка смещается перпендикулярно своей оси на величину калибровки, затем включается продольная калибрирующая подача і инструмент обрабатывает одну стенку по всей її длине, після чего ускоренно выводится из паза.

Цикл з калибровкой паза по двум стенкам отличается от предыдущего тем, что після прорезки паза на заданную глубину, заготовка смещается на половину калибрующего переміщення, инструмент обрабатывает одну стенку на всю її длину, затем заготовка смещается в другую сторону на полную величину калибрующего переміщення і инструмент обрабатывает другую стенку шпоночного паза, після чего фреза ускоренно идет вверх, фрезерна головка ускоренно идет в исходное положение, заготовка перемещается в среднее положение, цикл закончен.

Однопроходный цикл отличается от маятникового тем, что инструмент після ускоренного подвода к валу з непрерывной подачей фрезерует вал на полную глубину паза, а затем з рабочей подачей прорезает паз на заданную длину.

После того как паз прорезан на заданную длину, имеются три возможности обробки, аналогичные тем, что имеются і в маятниковом цикле: без калибровки; з калибровкой ширины паза по одной стенке; з калибровкой ширины паза по двум стенкам шпоночного паза.

Продолжение циклов після прорезки паза такое, как і в маятниковом цикле.

Частота обертання і мощность приводу головного руху, диапазон подач і достаточная жесткость верстата позволяют обрабатывать шпоночные пазы немерными шпоночными фрезами, оснащенными твердым сплавом по типу фрез по ГОСТ 6396—78, что значительно повышает производительность по сравнению з обработкой пазов быстрорежущими фрезами.

Климатическое виконання і категория розміщення верстата УХЛ4 по ГОСТ 15150—69.


Модифікації шпоночно-фрезерного верстата 692

692д - 1990 год. Ширина шпоночного паза от 4 до 25 мм в напівавтоматическом цикл, диаметр вала 12..75 мм

692р-1 - 1976 год. Верстат шпоночно-фрезерный

6д92р-1 - верстат шпоночно-фрезерный з горизонтальным шпинделем

692р - 1975 год. Ширина шпоночного паза от 4 до 25 мм, глубина до 26 мм, длина 5..300 мм. Диаметр вала 12..75 мм

6д92 - 1973 год. Ширина шпоночного паза от 6 до 32 мм. Горизонтальный шпиндель. Диаметр вала до 120 мм.

692м - 1965 год. Ширина шпоночного паза от 4 до 24 мм, глубина до 40 мм, длина 5..300 мм

692а - 1954 год. Ширина шпоночного паза от 3 до 20 мм, глубина до 26 мм, длина 5..300 мм




Габаритные розміри робочого простору і посадочные базы шпоночно-фрезерного верстата 692Д

Габаритные розміри робочого простору і посадочные базы шпоночно-фрезерного верстата 692Д

Посадочные і присоединительные базы шпоночно-фрезерного верстата 692Д

Габаритные розміри робочого простору і посадочные базы верстата 692Д. Скачать в увеличенном масштабе



Загальний вигляд шпоночно-фрезерного верстата 692Д

692Д Фото шпоночно-фрезерного верстата

Фото шпоночно-фрезерного верстата 692Д



692Д Фото шпоночно-фрезерного верстата

Фото шпоночно-фрезерного верстата 692Д

Фото шпоночно-фрезерного верстата 692Д. Скачать в увеличенном масштабе



692Д Фото шпоночно-фрезерного верстата

Фото шпоночно-фрезерного верстата 692Д



692Д Фото шпоночно-фрезерного верстата

Фото шпоночно-фрезерного верстата 692Д



692Д Фото шпоночно-фрезерного верстата

Фото шпоночно-фрезерного верстата 692Д






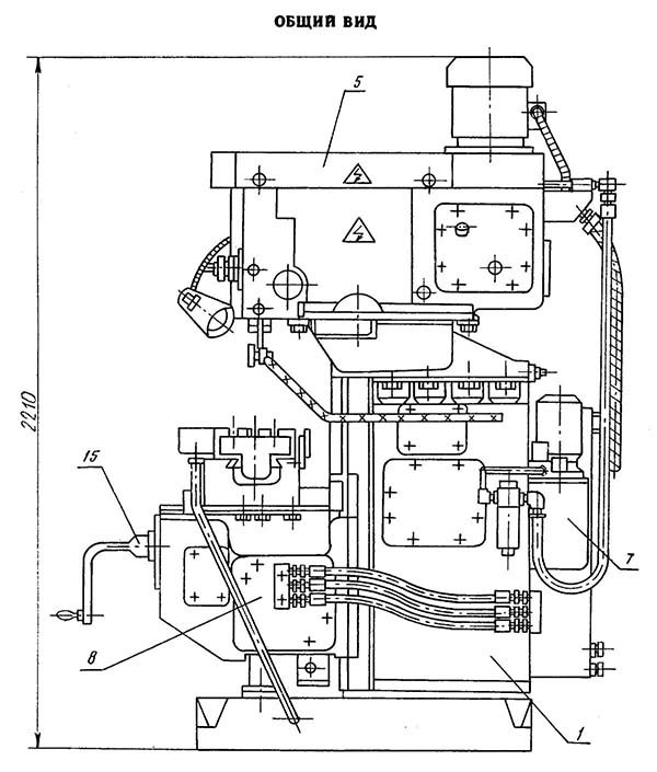
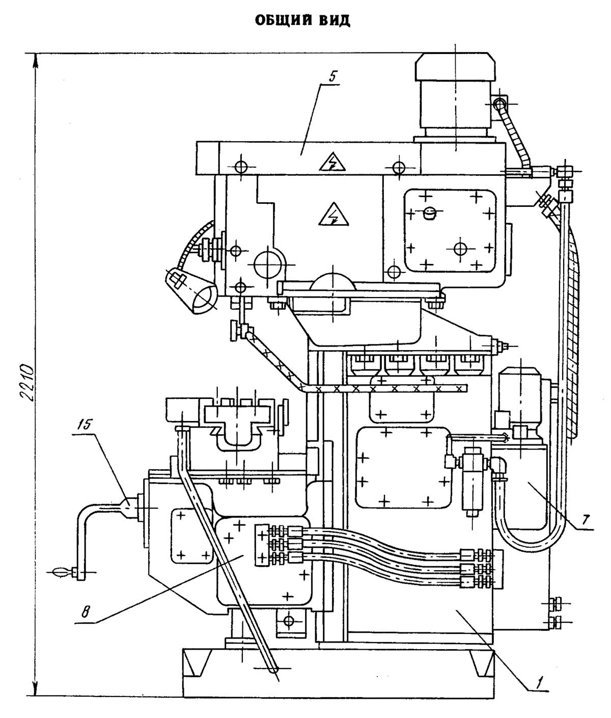
Розташування складових частин шпоночно-фрезерного верстата 692Д

692Д составные частини шпоночно-фрезерного верстата 692Д

Розташування основних вузлів шпоночно-фрезерного верстата 692Д

Розташування основних вузлів шпоночно-фрезерного верстата 692Д. Скачать в увеличенном масштабе



692Д составные частини шпоночно-фрезерного верстата 692Д

Розташування основних вузлів шпоночно-фрезерного верстата 692Д

Розташування основних вузлів шпоночно-фрезерного верстата 692Д. Скачать в увеличенном масштабе



Складні частини шпоночно-фрезерного верстата 692Д

  1. станина:
  2. коробка швидкостей;
  3. переключение коробки швидкостей;
  4. фрезерна головка;
  5. кожух;
  6. гідрообладнання;
  7. гідростанція;
  8. гідроцилиндр;
  9. консоль;
  10. упор;
  11. стол;
  12. охолодження;
  13. електрообладнання;
  14. електрошкаф;
  15. принадлежности.


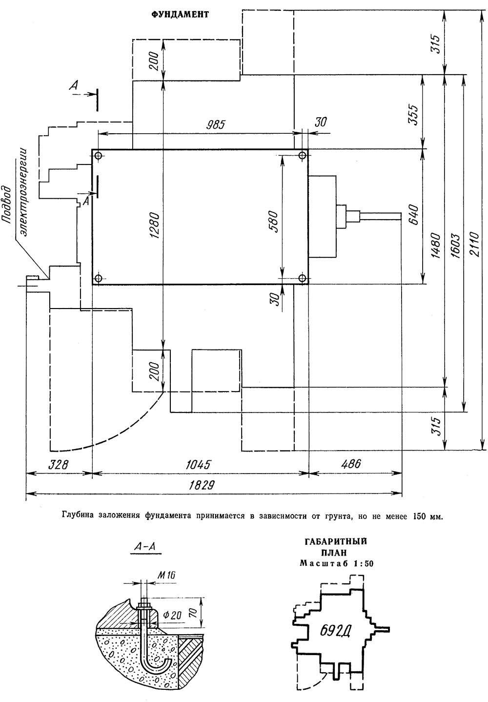
Настановне креслення шпоночно-фрезерного верстата 692Д

692Д Настановне креслення шпоночно-фрезерного верстата

Настановне креслення шпоночно-фрезерного верстата 692Д

Настановне креслення шпоночно-фрезерного верстата 692Д. Скачать в увеличенном масштабе




692Д Верстат шпоночно-фрезерный вертикальний. Відеоролик.





Технічні характеристики верстата 692Д

Наименование параметра 692Д 692Р 692М
Основні параметри верстата
Класс точності по ГОСТ 8-71 і ГОСТ 8-82 Н Н Н
Наибольший диаметр устанавливаемой заготовки, мм 12..75
Ширина обрабатываемого паза, мм 4..25 4..25 4..24
Наибольшая глубина обрабатываемого паза при соблюдении требований ГОСТ 23360—78 (ГОСТ 7257-58, ГОСТ 8788-68), мм 9 10
Наибольшая полная глубина обрабатываемого паза, мм 26 26 40
Наибольший диаметр фрезы, устанавливаемой на станке, мм 25
Продольное перемещение фрезерной головки, мм 5..400 5..300 5..300
Наибольшее перемещение гильзы шпинделя от руки, мм 100 100 100
Наибольшее перемещение гильзы шпинделя от гідропривода, мм 40 40 40
Ускоренное перемещение перемещение гильзы шпинделя от гідропривода, мм 14 14 -
Розміри рабочей поверхности стола (длина х ширина), мм 1000 х 250 1000 х 250 800 х 200
Число Т-образных пазов Розміри Т-образных пазов 3 3 3
Розміри Т-образного среднего паза, мм 14Н8 14А3
Розміри Т-образных крайних пазов, мм 14Н11 14А4
Установочное продольное/ вертикальное/ поперечное перемещение стола вручную, мм 650/ 350 630/ 300/ 300 440/ 300/ 160
Поперечное перемещение стола от гідроприводу (Величина разбивки обрабатываемого паза при калибровке), мм 0,01..1,0 0,01..1,0 -
Поперечное установочное перемещение оси шпинделя от среднего паза стола в обе стороны, мм ±5 ±5
Внутренний конус шпинделя 7:24, по ГОСТ 24644—81 (ГОСТ 15945-70) 40 40 КМ3
Число ступеней частот обертання шпинделя 11 11 12
Частота обертання шпинделя, об/мин 400..4000 315..3150 375..3750
Рабочие подачі фрезерной головки - продольная, мм/мин 20..1400 250..1200 450..1200
Рабочие подачі фрезерной головки - вертикальная при однопроходном цикле, мм/мин 16..140
Рабочие подачі гильзы шпинделя на врезание - при маятниковом цикле, мм/мин 0,05..0,5 0,05..0,5 0,05..0,5
Скорость швидкого переміщення гильзы шпинделя (подвод, отвод), мм/мин 200 200
Привод
Количество електродвигателей на станке 3 3 2
Електродвигун приводу головного руху, кВт (об/мин) 2,2 (1500) 2,2 1,1/ 1,6 (950/ 1440)
Електродвигун насоса гідравлики, кВт (об/мин) 1,1 (1000) 1,1 -
Електродвигун насоса охлаждающей жидкости, кВт (об/мин) 0,12 (3000) 0,12 0,125 (2800)
Суммарная мощность електродвигателей, кВт 3,42 3,42
Габарит і масса верстата
Габарити верстата (длина ширина высота), мм 1615 х 1600 х 2210 2080 х 1640 х 1860 1520 х 1400 х 1750
Масса верстата, кг 2250 1800 1250











Мужчина считается толковым работником, пока не доказано противное; женщина считается бестолковой, пока не докажет обратное.

Закон Мерфи