metalinstryment.com
Довідник по металорізальних верстатів та пресовому обладнанні

6Д92 Верстат шпоночно-фрезерный горизонтальный
схеми, опис, характеристики

6Д92 Верстат фрезерный шпоночный







Відомості про виробника шпоночно-фрезерного верстата 6Д92

Производитель специального шпоночно-фрезерного верстата 6Д92 Дмитровский завод фрезерных верстатів, основанный в 1940 году.

Основной продукцией завода, в настоящее время, є универсальные консольно-фрезерные верстати гаммы «6К» і «6ДМ».





Верстати, выпускаемые Дмитровским заводом фрезерных верстатів, ДЗФС



6Д92 Верстат шпоночно-фрезерный горизонтальный. Назначение, область применения

Специализированные фрезерные верстати 6Д92 применяют в серийном производстве для обробки деталей, сходных по конфигурации, но различных по размеру.

Верстат предназначен для обробки шпоночных пазов немерными шпоночными фрезами.

На станке можно обрабатывать пазы под закладные шпонки, сквозные пазы, а также производить другие фрезерные роботи.

Вращение шпинделя верстата і перемещение фрезерной головки осуществляются от окремих електродвигателей. Фрезерная головка имеет механическую подачу і быстрые переміщення в продольном і поперечном направлениях.

Установленная мощность приводу головного руху, высокие скорости обертання шпинделя і достаточная жесткость верстата позволяют производить на нем обработку пазов фрезами, оснащенными пластинками из твердого сплава.

Верстат може работать в напівавтоматическом цикле. В напівавтоматическом цикле за одну установку на станке може быть обработано до 6 шпоночных пазов одной ширины, расположенных на одной прямой вдоль вала.

Класс точності верстата П.

Шероховатость обробки боковых сторон шпоночного паза V 5

Шероховатость обробки боковых сторон шпоночного дна паза V 4


Модифікації шпоночно-фрезерного верстата 692

692д - 1990 год. Ширина шпоночного паза от 4 до 25 мм в напівавтоматическом цикл, диаметр вала 12..75 мм

692р-1 - 1976 год. Верстат шпоночно-фрезерный

692р - 1975 год. Ширина шпоночного паза от 4 до 25 мм, глубина до 26 мм, длина 5..300 мм. Диаметр вала 12..75 мм

692м - 1965 год. Ширина шпоночного паза от 4 до 24 мм, глубина до 40 мм, длина 5..300 мм

692а - 1954 год. Ширина шпоночного паза от 3 до 20 мм, глубина до 26 мм, длина 5..300 мм

6д92 - 1973 год. Ширина шпоночного паза от 6 до 32 мм. Горизонтальный шпиндель. Диаметр вала до 120 мм.

6д92р-1 - верстат шпоночно-фрезерный з горизонтальным шпинделем




Габаритные розміри робочого простору шпоночно-фрезерного верстата 6Д92

Габаритные розміри робочого простору шпоночно-фрезерного верстата 6Д92

Габаритные розміри робочого простору шпоночно-фрезерного верстата 6Д92

Габаритные розміри робочого простору шпоночно-фрезерного верстата 6Д92. Скачать в увеличенном масштабе



Посадочные і присоединительные базы шпоночно-фрезерного верстата 6Д92

Посадочные і присоединительные базы шпоночно-фрезерного верстата 6Д92

Посадочные і присоединительные базы шпоночно-фрезерного верстата 6Д92

Посадочные і присоединительные базы шпоночно-фрезерного верстата 6Д92. Скачать в увеличенном масштабе



Загальний вигляд шпоночно-фрезерного верстата 6Д92

6Д92 Фото шпоночно-фрезерного верстата

Фото шпоночно-фрезерного верстата 6Д92




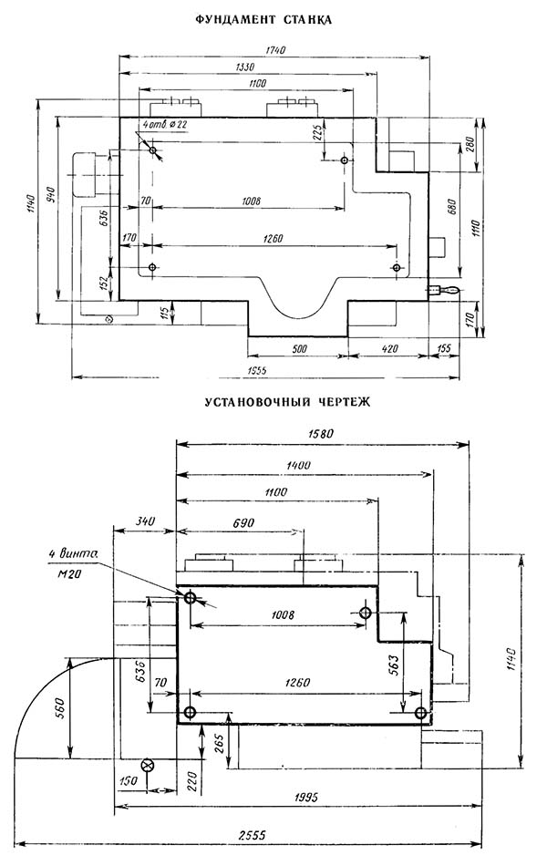
Настановне креслення шпоночно-фрезерного верстата 6Д92

6Д92 Настановне креслення шпоночно-фрезерного верстата

Настановне креслення шпоночно-фрезерного верстата 6Д92

Настановне креслення шпоночно-фрезерного верстата 6Д92. Скачать в увеличенном масштабе




6Д92 Верстат шпоночно-фрезерный горизонтальный. Відеоролик.





Технічні характеристики верстата 6Д92

Технічні характеристики верстата 6Д92

Технічні характеристики верстата 6Д92

Технічні характеристики верстата 6Д92. Скачать в увеличенном масштабе

Наименование параметра 692Д 692Р 692М
Основні параметри верстата
Класс точності по ГОСТ 8-71 і ГОСТ 8-82 Н Н Н
Наибольший диаметр устанавливаемой заготовки, мм 12..75
Ширина обрабатываемого паза, мм 4..25 4..25 4..24
Наибольшая глубина обрабатываемого паза при соблюдении требований ГОСТ 23360—78 (ГОСТ 7257-58, ГОСТ 8788-68), мм 9 10
Наибольшая полная глубина обрабатываемого паза, мм 26 26 40
Наибольший диаметр фрезы, устанавливаемой на станке, мм 25
Продольное перемещение фрезерной головки, мм 5..400 5..300 5..300
Наибольшее перемещение гильзы шпинделя от руки, мм 100 100 100
Наибольшее перемещение гильзы шпинделя от гідропривода, мм 40 40 40
Ускоренное перемещение перемещение гильзы шпинделя от гідропривода, мм 14 14 -
Розміри рабочей поверхности стола (длина х ширина), мм 1000 х 250 1000 х 250 800 х 200
Число Т-образных пазов Розміри Т-образных пазов 3 3 3
Розміри Т-образного среднего паза, мм 14Н8 14А3
Розміри Т-образных крайних пазов, мм 14Н11 14А4
Установочное продольное/ вертикальное/ поперечное перемещение стола вручную, мм 650/ 350 630/ 300/ 300 440/ 300/ 160
Поперечное перемещение стола от гідроприводу (Величина разбивки обрабатываемого паза при калибровке), мм 0,01..1,0 0,01..1,0 -
Поперечное установочное перемещение оси шпинделя от среднего паза стола в обе стороны, мм ±5 ±5
Внутренний конус шпинделя 7:24, по ГОСТ 24644—81 (ГОСТ 15945-70) 40 40 КМ3
Число ступеней частот обертання шпинделя 11 11 12
Частота обертання шпинделя, об/мин 400..4000 315..3150 375..3750
Рабочие подачі фрезерной головки - продольная, мм/мин 20..1400 250..1200 450..1200
Рабочие подачі фрезерной головки - вертикальная при однопроходном цикле, мм/мин 16..140
Рабочие подачі гильзы шпинделя на врезание - при маятниковом цикле, мм/мин 0,05..0,5 0,05..0,5 0,05..0,5
Скорость швидкого переміщення гильзы шпинделя (подвод, отвод), мм/мин 200 200
Привод
Количество електродвигателей на станке 3 3 2
Електродвигун приводу головного руху, кВт (об/мин) 2,2 (1500) 2,2 1,1/ 1,6 (950/ 1440)
Електродвигун насоса гідравлики, кВт (об/мин) 1,1 (1000) 1,1 -
Електродвигун насоса охлаждающей жидкости, кВт (об/мин) 0,12 (3000) 0,12 0,125 (2800)
Суммарная мощность електродвигателей, кВт 3,42 3,42
Габарит і масса верстата
Габарити верстата (длина ширина высота), мм 1615 х 1600 х 2210 2080 х 1640 х 1860 1520 х 1400 х 1750
Масса верстата, кг 2250 1800 1250











Мужчина считается толковым работником, пока не доказано противное; женщина считается бестолковой, пока не докажет обратное.

Закон Мерфи