metalinstryment.com
Довідник по металорізальних верстатів та пресовому обладнанні

7М430 долбежный верстат з гідравлическим приводом
опис, характеристики, схеми

Фото долбежного верстата 7М430







Відомості про виробника долбежного верстата 7М430

Разработчиком і изготовителем долбежного верстата 7М430 является Гомельский станкостроительный завод им. С. М. Кирова СтанкоГомель, основанный в 1885 году.





Верстати, выпускаемые предприятием Гомельский станкостроительный завод им. С. М. Кирова, СтанкоГомель


7М430 долбежный верстат з гідравлическим приводом. Назначение і область применения

Гідрофицированный долбежный верстат моделі 7М430 предназначен для изготовления шпоночных пазов, шлицев і канавок на фасонных і плоских поверхностях, для долбления плоских і фасонных поверхностей, вырезов, канавок в цилиндрических і конических отверстиях і долбления з поднутрением до 10°.

Верстат предназначен для обробки наружных поверхностей изделий по высоте до 320 мм і обробки внутренних поверхностен изделий по высоте до 250 мм. Верстат пригоден для роботи в индивидуальном і мелкосерийном производстве, а также в ремонтных мастерских.

Наличие трёх видов подач стола (поздовжньої, поперечної і круговой) даёт возможность обробки на данном станке нескольких поверхностей з одной установки. Наличие механических подач стола, механізма автоматичного останова, дистанционного керування позволяет многостаночное обслуговування.

Верстат предназначен для обробки долблением плоских і фасонных поверхностей, пазов і канавок в разнообразных деталях, а также различных видов штампов, устанавливаемых непосредственно на столе или в приспособлениях. Возможность поворота рамы з долбяком позволяет обрабатывать наклонные плоскости, не меняя позиции детали.


Короткий опис конструкції верстата 7М430

Стол перемещается как вручную, так і механически. Круговая подача стола дает возможность обрабатывать на станке круглые детали і зубчасті колеса.

Верстат имеет гідравлическое перемещение долбяка і гідравлическую подачу стола на каждый его двойной ход. Кінематична схема верстата обеспечивает быстрое перемещение стола в продольном, поперечном і круговом направлениях от отдельного електродвигуна. Стол в указанных направлениях може перемещаться также вручную. В столе верстата имеется делительный механізм, позволяющий точно делить заготовку на нужное число частин.

Скорость руху долбяка по всей длине ходу постоянная. Верстат имеет ступенчато-дроссельное регулювання скорости долбяка і переміщення стола. Изменение направления руху долбяка происходит за счёт переключения золотника керування при помощи двух упоров, помещённых на крышке панелі керування. Этими же упорами регулируется длина і место ходу долбяка.

На правую сторону верстата выведены две рукоятки. Одна из них служит для переключения швидкостей руху долбяка, таких швидкостей в станке 4. Другой рукояткой производится плавное регулювання скорости в пределах каждой ступени.

В станке имеется механізм, позволяющий обрабатывать изделие на установленную длину обробки і автоматически выключающий верстат в кінці обробки; долбяк при етом останавливается в верхнем положении. Конструкція верстата обеспечивает автоматический отвод резца от вироби при обратном ходе. Верстат имеет дистанционное керування, осуществляемое от подвесной кнопочной станції. С кнопочной станції осуществляется пуск і зупинка головного двигуна, а также пуск, останов і налаштування долбяка. В станке имеется ограничитель холостого ходу — при останове долбяка останавливается главный двигатель. Верстат снабжен системой охлаждения инструмента. Смазка направляючих долбяка принудительная от отдельного резервуара при помощи плунжерного насоса і ручная от ручного лубрикатора.

Смазка стола — от 2-х ручных лубрикаторов.


Налаштування, наладка і режим роботи долбежного верстата 7М430

Выбор режима різання

Для выбора режима обробки на станке того или иного металла рекомендуется пользоваться справочниками по режимам різання.

Установка і наладка ходу долбяка

Налаштування величины ходу долбяка производится упорами. При заданной длине обробки упоры надо устанавливать так, чтобы разность на шкале между одним упором і другим определяла полную длину обробки з учетом перебегов резца на каждую длину.

Развод упоров обеспечивает обработку деталей по всей высоте.

Подвод резца к обрабатываемой детали производится кнопкой «Пуск долбяка», работающей в толчковом режиме, при етом переключатель цикла «Работа - наладка» должен находиться в положении «Наладка».

Установка подачі стола

Установка выбранной подачі стола осуществляется поворотом маховичка до момента, пока против риски указателя не установится необходимая цифра, соответствующая нужной подаче.

Регулювання верстата

В процессе експлуатации верстата возникает необходимость в регулировании окремих вузлів і елементів з целью восстановления их нормальной роботи.

Ниже указаны требующие регулювання, вузли і способы регулировки:

  1. Регулювання клина долбяка
  2. Регулювання клиньєв продольных і поперечных салазок стола
  3. Регулювання откидки резцовой головки осуществляется гайкой тормозного пристроя, а также гайками, непосредственно устанавливающими регулируемый зазор между откидной доской і долбяком;
  4. По истечении некоторого часу може оказаться необходимым регулювання підшибників качения, для чего требуется немного подтянуть круглые гайки или фланцы, создающие натяг в етих підшипниках;
  5. Регулювання предохранительной шариковой муфты осуществляется гайкой і контргайкой.
  6. Регулювання механізмов гідроприводу была рассмотрена в разделе «Гідропривід верстата»
  7. Тормозное пристрій коробки подач, служащее для предотобертання проворота вала в обратную сторону, регулируется тремя гайками.

Шероховатость обработанной поверхности не менее V 6

Класс точності верстата Н


Технічні характеристики долбежного верстата з гідравлическим приводом 7м430

Изготовитель Гомельский станкостроительный завод, СтанкоГомель.

Основні параметри верстата в соответствии з ГОСТ 1141-74.






7М430 Посадочные і присоединительные базы долбежного верстата

Посадочные і присоединительные базы долбежного верстата 7М430

Посадочные і присоединительные базы долбежного верстата 7М430


7М430 Загальний вигляд долбежного верстата

Загальний вигляд  і органы керування долбежного верстата 7М430

Фото долбежного верстата 7м430


7М430 Розташування складових частин долбежного верстата

7М430 Розташування складових частин долбежного верстата

Розташування складових частин долбежного верстата 7м430


7М430 Розташування складових частин долбежного верстата

Розташування складових частин долбежного верстата 7м430

Розташування складових частин верстата 7М430. Дивитись у збільшеному масштабі



Специфікація складових частин долбежного верстата 7М430


7М430 Розташування органів керування долбежным верстатом

Розташування органів керування долбежным верстатом 7М430

Розташування органів керування долбежным верстатом 7м430


Список органів керування долбежным верстатом 7М430

  1. Маховичок установки величины подачі
  2. Механізм налаштування переміщення стола на заданную величину обробки
  3. Маховичок для ручнoгo продольного переміщення стола
  4. Рукоятка увімкнення механической поздовжньої подачі
  5. Рукоятка реверса
  6. Рукоятка увімкнення механической круговой подачі
  7. Рукоятка увімкнення механической поперечної подачі
  8. Выключатель „Освещение"
  9. Кнопка „Пуск" швидкого переміщення стола
  10. Кнопка „Пуск" долбяка (дублированная з рукояткой 18)
  11. Кнопка „Пуск" головного двигуна
  12. Переключатель цикла „Работа — Наладка"
  13. Гайки для фиксации поворота салазок долбяка
  14. Квадрат для поворота салазок долбяка на угол
  15. Висящая кнопка „Стоп" головного двигуна
  16. Упоры для установки длины ходу долбяка
  17. Рукоятка для ручного переміщення ходу долбяка
  18. Рукоятка пуска і остановки долбяка
  19. Рукоятка бесступінчастого изменения скорости долбяка между ступенями
  20. Рукоятка ступінчастого изменения скорости долбяка
  21. Сигнальная лампочка подключения верстата к сети
  22. Пакетный выключатель електронасоса
  23. Пакетный выключатель сети
  24. Рукоятка прихвата поперечної салазки
  25. Рукоятка прихвата поздовжньої салазки
  26. Квадрат для ручного продольного переміщення стола
  27. Квадрат для ручного поперечного переміщення стола
  28. Рукоятка делительного механізма
  29. Гайки фиксации круглого стола




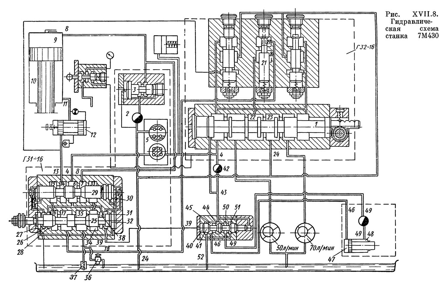
7М430 Кінематична схема долбежного верстата

7М430 Схема кінематична долбежного верстата

Кінематична схема долбежного верстата 7м430

1. Схема кінематична долбежного верстата 7М430. Дивитись у збільшеному масштабі

2. Схема кінематична долбежного верстата 7М430. Дивитись у збільшеному масштабі

3. Схема кінематична долбежного верстата 7М430. Дивитись у збільшеному масштабі

4. Схема кінематична долбежного верстата 7М430. Дивитись у збільшеному масштабі



7М430 Опис вузлів долбежного верстата

Станина верстата состоит из 2-х частин: нижней і верхней, скреплённых между собой гвинтами, шпильками і штифтами. Обе частини станины имеют коробчатую форму, рёбра жёсткости, что обеспечивает достаточную жёсткость верстата. В нижней частини верхней станины помещается резервуар для масла гідроприводу ёмкостью в 250 литров. Там же к левой стенке крепится фланец, в котором помещена муфта, соединяющая гідронасосы з фланцевым електродвигуном (гідронасосы помещаются внутри камеры і крепятся на гвинтах к фланцу). Средняя камера нижней станины является резервуаром системы охлаждения. К правой стенке верхней станины крепится плита з гідропанелью. В левой боковой стенке сделано окно для монтажа гідропривода. В задньої стенке верхней станины имеется ниша, в которой помещается електрошкаф. Дверцы електрошафи имеют уплотнения из губчатой резины і замковое пристрій, обеспечивающее герметичность шкафа.

Долбяк з цилиндром. Долбяк представляет собой чугунную полую отливку з прямоугольными направляющими, внутри долбяк имеет ребра жёсткости. В нижней частини долбяка монтируется резцовая головка з резцедержателями. В етом узле смонтирован механізм механического відведення резца при обратном ходе долбяка.

Откидная доска резцовой головки через кронштейн, игольчатый подшипник, ексцентрик і вал-шестерню связана з зубчатой рейкой, которая помещается в пазу долбяка.

Зубчатая рейка, перемещаясь совместно з долбяком, вращает шестерню тормозного пристроя, находящуюся в салазках долбяка.

Отбрасывание откидной доски происходит за счет поворота ексцентрика, нерухомо сидящего на валик-шестерне.

Регулювання тормозного пристроя осуществляется пружиной при помощи гайки.

Гідравлический цилиндр представляет собой стальную трубу закрепленную на салазках долбяка.

Длина цилиндра выбрана з таким расчетом, чтобы обслужить резцом всё расстояние от плоскости стола до направляючих салазок.

Внутри цилиндра перемещается поршень со штоком, конец которого соединяется з долбяком. Цилиндр крепится к салазкам долбяка неподвижно, а поршень со штоком і з долбяком получают возвратно-поступательное движение. Подавая масло в верхнюю полость цилиндра, т. е. в бесштоковую полость, получим рабочий ход долбяка, а подавая масло в нижнюю полость цилиндра, т. е. в штоковую, получим холостой ход долбяка. В салазках долбяка монтируется принудительная і ручная системы змазки направляючих долбяка.

Коробка подач предназначена для осуществления поперечных, продольных і круговых рабочих подач стола на каждый двойной ход долбяка і для швидкого переміщення стола в етих направлениях.

Рабочие подачі стола производятся следующим образом: При переключении долбяка на рабочий ход масло от насоса через золотник подач поступает в цилиндр коробки подач (см. гідравлическую і кинематическую схеми верстата) і перемещает поршень вправо. Рейка, соединенная со штоком, вращает зубчатое колесо z = 24, от которого через храповой механізм получает вращение вал, связанный з помощью предохранительной муфты з узлом стола. Быстрое перемещение стола во всех трех направлениях осуществляется от отдельного електродвигуна мощностью 1,7 кВт. Регулювання величины подачі производится за счет изменения величины ходу поршня при помощи маховика, пары зубчатых колес, гайки і гвинта. На наружной стороне гайки нарезана рейка, которая зацепляется з шестерней, сидящей на валике гідравлічного дросселя подач Г77-11. Таким образом, одновременно при регулировке величины подачі за счет изменения ходу поршня подач, соответственно дросселируется количество масла, выходящего из штоковой полости цилиндра подач (см. гідравлическую схему), что обеспечивает стабильность подач при любой скорости. Отсчет величины установленной подачі осуществляется при помощи лимба, установленного на маховичке. На выходящем валу коробки установлен тормоз, который противодействует вращению вала в обратную сторону.

В верхнюю крышку коробки подач вмонтирован спеціальний механізм налаштування стола на заданную длину обробки вироби з автоматическим остановом в кінці обробки. Механізм состоит из лимба з делениями, стрелки, приводу стрелки і електрического микровыключателя. Стрелка связана з узлом стола жесткой кінематичної ланцюгю. При вращении она нажимает на микровыключатель, который останавливает главный двигатель верстата. При установці длины ходу стола стрелка закрепляется в заданном положении зажатием гайки.

Стол верстата в основном состоит из продольных салазок, перемещающихся по станине, поперечных салазок, перемещающихся по продольным салазкам, поворотного стола, смонтированного на поперечных салазках і коробки передач.

Внутри поворотного стола салазок имеются каналы, по которым емульсия стекает в нижнюю станину.

С правого торца продольных салазок смонтирована коробка передач, передающая рух от коробки подач (узел 03) к шлицевому валу червяка круговой подачі і гвинтам поздовжньої і поперечної подач стола. На крышку коробки передач выведены два квадрата, которыми оканчиваются винт поперечного переміщення і вал поздовжньої подачі.

В коробке передач смонтирован делительный механізм, позволяющий делить обрабатываемое изделие на нужное число частин; через шлицевый вал і червячную пару механізм связан з поворотным столом.

Поворотный стол центрируется на поперечных салазках з помощью конуса; он имеет три Т-образных паза, позволяющие крепить обрабатываемые детали. В центре поворотного стола имеется центрирующее отверстие диаметром 32 мм.

Поворотный стол на поперечных салазках, поперечные на продольных, а продольные салазки на станине фиксируются з помощью прижимов.

Между поперечными і продольными салазками, а также между продольными салазками і станиной имеются клинья для регулювання зазоров, возникающих в процессе експлуатации верстата.

Направляющие салазок — прямоугольные.

Все вращающиеся валы і червяк смонтированы в роликовых і шариковых підшипниках.

Конструкція стола обеспечивает раздельное увімкнення каждой из подач: поздовжньої, поперечної і круговой (увімкнення одновременно двух подач возможно).

Система охлаждения. Приводом системы охлаждения является електронасос производительностью 22 литра в минуту.

Электронасос крепится к бачку, післядний, в свою очередь, крепится к нижней станине. Бачок вместе со средней камерой нижней станины образует резервуар для охлаждающей жидкости. Емкость резервуара 55 литров. Поворотный круг стола (узел 04) имеет по краям кольцевой желоб, куда з обрабатываемых деталей сливается охлаждающая жидкость.

Этот желоб через систему отверстий і каналов связан со средней камерой нижней станины (резервуаром). Бачок имеет знизу отверстие для слива охлаждающей жидкости, которое закрывается пробкой.

Узел керування долбяка обеспечивает:


1. Установка положения і величины ходу долбяка производится з мощью двух упоров, выведенных на правую стенку верстата.

Упоры через спеціальний рычаг передвигают золотник керування гідропанелі, осуществляя тем самым реверс долбяка.

Угол между упорами определяет величины ходу долбяка. Относительное расположение упоров определяет положение ходу долбяка в пределах заданной величины долбления.

Угол между упорами і относительное расположение их устанавливаются по лимбу.

Привід упоров осуществляется от долбяка через передачу шестерня — рейка і две пары конических шестерен.


2. Рычаг реверса з роликами, на которые воздействуют упоры, имеет рукоятку для ручного керування.


3. Сектор, связанный з шестерней крана «пуск»—«стоп» гідропанелі, сидит на валике.

На конец етого валика насажена ступица з рукояткой, через которую можно осуществлять ручной пуск і зупинка долбяка.


4. Кроме рукоятки пуска і останова долбяка на правую стенку верстата выведены еще две рукоятки гідропанелі. Одна из них служит для переключения швидкостей (ступеней) руху долбяка, таких ступеней в станке четыре; другая — для плавного регулювання скорости в пределах каждой ступени.

Смазка деталей данного вузла принудительная от гідросистемы приводу верстата.

Трубопровод осуществляет соединение между собой робочого цилиндра, цилиндра коробки подач, гідропанелі, насосов і вспомогательной апаратури.

Гідропанель крепится через промежуточную плиту к литой рамке вузла керування. Вместе з рамкой і промежуточной плитой гідропанель крепится к правой стенке станины, в которой имеется окно для демонтажу гідропанелі. Монтаж гідропанелі з промежуточной плитой і рамкой производится через окно в левой стенке станины. Через ето же окно производится монтаж і демонтаж трубопровода. Трубопровод состоит из стальных труб і кінцівых з'єднань. В одной из труб имеется отверстие для присоединения манометра. Для замера давления в системе манометр включается специальным золотником. Параллельно сливной трубе встроен фильтр для очистки масла. Залив масла производится через горловину, в которой помещен свой фильтр; слив—через две специальные трубки или при помощи откачивающего насоса, имеющегося у потребителя. Для создания противовеса от падения долбяка служит напорный золотник з обратным клапаном. Для регулировки подачі масла в коробку подач служит спеціальний муфтовый кран і гідравлический дроссель подач, который находится непосредственно внутри корпуса коробки подач — (узел 03).

Опис гідропанелі, насосов і другой гідроапаратури смотри в разделе «Гідропривід верстата».





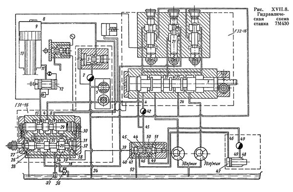
7М430 Гідравлічна схема долбежного верстата

7М430 Схема Гідравлічна долбежного верстата

Гідравлічна схема долбежного верстата 7м430

Гідравлічна схема долбежного верстата 7м430. Дивитись у збільшеному масштабі



Опис гідравлической схеми долбежного верстата 7м730

Рабочие руху:

Главное движение осуществляется гідроприводом (рис. XVII. 8). Привід сообщает ползуну четыре ступени скорости, соответствующие четырем возможным положениям золотника переключения 1, устанавливаемым рукояткой 4 (см. рис. XVII.7), а также обеспечивает возможность плавного изменения скорости робочого ходу ползуна в пределах каждой ступени посредством рукоятки 5, действующей на дроссель 2 (рис. XVII.8) з регулятором 3. Масло от двух лопастных насосов производительностью Q = 50 л/мин і Q = 70 л/мин поступает в проточки золотника переключения 1. При работе на первой ступени скорости переміщення ползуна, равные 5—7,9 і 11 м/мин для робочого і обратного ходу соответственно, золотник занимает положение, при котором масло от насоса Q = 70 л/мин сливается в бак, а масло от насоса Q = 50 л/мин поступает в систему. Вторая ступень скорости ползуна характеризуется її значением, равным 7,9—11 м/мин при рабочем і 22 м/мин при обратном ходе ползуна, і использованием для роботи в системе масла от насоса Q = 70 л/мин. При третьей і четвертой ступенях скорости, определяемых соответствующими положениями золотника 1, масло в систему поступает от обоих насосов. Но отсутствие слива масла при рабочем ходе ползуна отличает четвертую ступень от третьей, второй і первой. Скорость робочого і обратного ходу ползуна составляет: на третьей ступени 11 — 19,3 і 36 м/мин; на четвертой ступени 19,3—36 і 35 м/мин. Циркуляция масла в системе при всех четырех скоростях руху ползуна аналогична, несмотря на отмеченную особенность четвертой ступени, не изменяющую общей принципиальной схеми.

Масло, прошедшее золотник переключения 1, поступает по каналу 4 через кран 5 гідропанелі Г31-16 і проточки 6, 7 по трубе 8 в рабочую полость 9 гідроцилиндра, закрепленного на салазках ползуна. Из штоковой полости 10 цилиндра ползуна масло вытесняется в бак по трубе 11, через напорный золотник 12, по трубе 25, проточкам 14, 15, 16, 17 гідропанелі, каналу 18 промежуточной плиты, проточкам 19 і 20 стопового золотника 21, проточкам 22 і 23 панелі керування Г32-16 і трубе 24. Ползун совершает рабочий ход. Скорость робочого ходу ползуна в пределах ступени изменяется дросселем 2 з регулятором 3, который для етого спускает часть масла, подаваемого насосом. В кінці робочого ходу упор, закрепленный на станине і связанный з ползуном передачей, состоящей из конических колес і круглой рейки, через систему рычагов перемещает золотник керування 25 вправо. Перемещаясь, золотник разъединяет проточки 16 і 17, притормаживая ползун, а в кінці ходу «отсекает» проточку 26 от проточки 27 і соединяет її з давлением, подведенным к проточке 28. Из полости, ограниченной правым торцом золотника 29 реверса, масло сливается через дроссель 30 і проточки 31 і 32, а золотник 29 перемещается слева направо. В правом положении золотника проточка 14 сообщается з проточкой 6, а проточка 7 соединяется з проточкой 33. При етом масло поступает по проточкам 6, 14, трубе 13, проточкам напорного золотника і трубе 11 в штоковую полость 10 цилиндра ползуна і сливается из рабочей полости 9 по трубе 8, проточкам 7, 33, 34, 35 і через фильтр 36 і клапан 37. Осуществляется обратный ход ползуна, который прекращается при перемещении упором золотника керування 25 влево.

Рух подачі сообщается столу з обрабатываемой деталью от гідропривода. В момент реверсирования руху ползуна з обратного ходу на рабочий масло по проточкам 38, 31 і трубе 39 (см. рис. XVII.8) поступает в полость 40 реверсивного золотника подачі 41 і перемещает его в крайнее правое положение, при котором масло от насоса через демпфер 42, канал 43, проточки 44, 45, канал 46 поступит в рабочую полость 47 гідроцилиндра коробки подач. При етом масло из штоковой полости 48 вытесняется і по трубе 49, проточкам 50, 51 і трубе 52 сливается в бак. Происходит перемещение поршня, совершаемое за один двойной ход ползуна. При етом рейка 1, соединенная со штоком поршня (рис. XVII.9), вращает зубчатое колесо z = 24, от которого через храповой механізм получает вращение вал I. От него через реверсивный механізм, состоящий из трех конических колес z = 26 з кулачковой муфтой, і цилиндрические колеса z = 39 на валах II і III вращение передається гвинтам 2 і 3 поздовжньої і поперечної подач стола і червячной паре (z = 1, z = 105), осуществляющей его круговую подачу.

Таким образом, стол получает продольную, поперечную і круговую подачі за один двойной ход ползуна. Величина подач находится в следующих пределах: продольная і поперечная — 0,2—2,4 мм/дв. ход, круговая — 0,1—1,3°/дв. ход. Быстрые (установочные) переміщення в тех же направлениях столу сообщаются електродвигуном М1. Требуемая длина долбления обеспечивается специальным механізмом з кінематичної ланцюгю z = 44,44, z = 1, z = 50 (см. рис. XVII.9).

При обратном ходе ползуна різець отводится от поверхности детали специальным механізмом.








7М430 Верстат долбежный з гідравлическим приводом. Відеоролик.




Технічні характеристики долбежного верстата 7М430

Наименование параметра 7403 7405 7М430 7Д430
Основні параметри верстата
Класс точності верстата Н Н Н Н
Ход долбяка, мм 120..320 120..500 120..320 120..320
Диаметр стола, мм 630 800 630 630
Расстояние от плоскости стола до направляючих долбяка, мм 500 710 500 500
Расстояние от долбяка до станины (вылет), мм 615 710 590 615
Наибольшая высота обрабатываемого вироби при обработке наружной поверхности, мм 500 650 320 500
Наибольшая высота обрабатываемого вироби при обработке внутренней поверхности, мм 250 325 250 250
Долбежная головка верстата (долбяк)
Наибольшее перемещение долбяка в пределах рабочей зоны, мм 500 700 570 500
Наибольший угол поворота долбяка в направлении поздовжньої подачі, град 10° 10° 10° 10°
Наибольшее сечение резца, мм 32 х 20 40 х 25 40 х 25 32 х 20
Скорость долбяка под нагрузкой, м/мин 3..38 3..38 3..38
Рабочий стол верстата
Наибольшие переміщення стола продольные (по направляющим станины), мм 650 800 650 650
Наибольшие переміщення стола поперечные (по направляющим салазок), мм 510 650 500 510
Наибольшие переміщення стола круговые, град 360° 360° 360° 360°
Цена деления лимба при продольном і поперечном перемещении стола, мм 0,1 0,1 0,2 0,1
Перемещение стола за оборот лимба при продольном і поперечном перемещении стола, мм 0,7 1,4
Цена деления лимба при круговом перемещении стола, град
Перемещение стола за оборот лимба при круговом перемещении стола, град 0,86° 0,86°
Пределы подач за один двойной ход продольные, мм 0,1..2,5 0,1..2,5 0,2..2,4 0,1..2,5
Пределы подач за один двойной ход поперечные, мм 0,1..2,5 0,1..2,5 0,2..2,4 0,1..2,5
Пределы подач за один двойной ход круговые, град 0,1..1,4° 0,1..1,4° 0,1..1,4° 0,1..1,4°
Скорость швидкого переміщення стола продольная, мм/мин 2,8 2,8 2,5 2,8
Скорость швидкого переміщення стола поперечная, мм/мин 2,8 2,8 2,5 2,8
Скорость швидкого переміщення стола круговая, об/мин 4,5 4,5 4,07 4,5
Електроустаткування. Привод
Количество електродвигателей на станке 3 3 3 3
Електродвигун гідроприводу (головного руху), кВт (об/мин) 11 (970) 11 (970) 7 10
Електродвигун ускоренного переміщення стола, кВт 2,2 3,0 1,7 2,2
Електродвигун електронасоса СОЖ, кВт 0,12 0,12 0,12 0,12
Суммарная мощность всех електродвигателей, кВт 13,32 14,12
Габарити і масса верстата
Габарити верстата (длина ширина высота), мм 2850 х 2160 х 3010 3440 х 2760 х 3465 2650 х 1810 х 2890 3030 х 2175 х 3010
Масса верстата, кг 5660 8160 5200 5700


    Список литературы:

  1. Гідрофицированный долбежный верстат 7М430. Руководство к верстату, 1961

  2. Петруха П.Г. Резание конструкционных материалов, режущие инструменты і верстати, 1974, стр.438
  3. Яковцев А.Д. Работа на строгальных і долбёжных верстатах, 1966
  4. Копылов Р.Б. Работа на строгальных і долбежных верстатах, 1975









Подумай о своём будущем: положи сто рублей в карман зимней куртки.