Виробником токарно-гвинторізних універсальних верстатів 1А616 є Середньоволзький верстатобудівний завод СВСЗ , заснований у 1876 році.
Токарно-гвинторізний верстат 1А616 вироблявся Середньоволзьким верстатобудівним заводом за ТУ2-024-499_66. Він замінив у виробництві застарілий верстат 1616 року , який вироблявся з 1949 року – 8 років. Потім верстат 1А616 був замінений на більш досконалий верстат 16Б16 .
Токарно-гвинторізний верстат 1А616 вироблявся Середньоволзьким верстатобудівним заводом з 1957 року. Він замінив у виробництві застарілий верстат 1616 року , який вироблявся з 1949 року – 8 років. Потім верстат 1А616 був замінений на більш досконалий верстат 16Б16 .
Верстат 1А616 призначений для токарної обробки порівняно невеликих деталей, діаметром до Ø 320 мм з різних матеріалів як швидкорізальними, так і твердосплавними інструментами в умовах індивідуального та серійного виробництва. На верстаті можна нарізати різцем метричні, дюймові, модульні та різьби.
Найбільший діаметр деталі типу Диск, що обробляється над станиною, становить Ø320 мм, а максимальний діаметр деталі типу Вал , що закріплюється в центрах над верхньою частининою супорта, не повинен перевищувати Ø180 мм. Найбільша довжина обточування деталі з механічною подачею супорта дорівнює 660 мм за РМЦ = 710 мм. Шпиндель має наскрізний отвір Ø35 мм під пруток до Ø34 мм.
Привід руху різання біля верстата моделі 1А616 розділений. Він складається з дванадцятиступінчастої коробки швидкостей, виконаної як окремий вузол, та перебірного пристрою, розташованого в шпиндельній бабці. Електродвигун, коробка швидкостей, перебірний пристрій та шпиндель, з'єднані двома клинопасовими передачами складають привід руху різання.
Шпиндель верстата 1А616 отримує 24 швидкості обертання (9..1800 або 11,2..2240 об/хв), причому 3 швидкості збігаються за величиною при роботі з перебором і без перебору. Таким чином, шпиндель отримує 21 різну швидкість обертання. 12 швидкостей обертання безпосередньо від коробки швидкостей через клинопасову передачу та розвантажений приймальний шків (через зубчасту муфту) та 12 швидкостей обертання через перебірні шестерні. Для включення перебору або зубчастої муфти служить праворуч на передній бабці.
Зміна чисел оборотів шпинделя проводиться за рахунок переміщення блоків шестерень по шліцьових валів за допомогою двох рукояток, виведених на передню стінку коробки швидкостей.
Реверс шпинделя здійснюється фрикційною муфтою. Гальмування електромагнітною муфтою підключенням постійного струму в обмотку статора електродвигуна.
Передній кінець шпинделя виконаний за ГОСТ 12593 (DIN 55027, ISO 702-3-75) під поворотну шайбу, з коротким центруючого конусом. (До 1959 року токарний верстат 1а616 випускався з різьбовим кінцем шпинделя (М76 х 6):
Оброблювана деталь встановлюється у центрах чи патроні. Привід верстата 1А616 здійснюється від одного електродвигуна через два клинопасових ременя і редуктор, розташований у лівій тумбі верстата.
Наявність клинопасової передачі оберігає механізми коробки швидкостей та шпиндельної бабки від динамічних ударів при пуску, реверсуванні та гальмуванні.
Гальмування електродвигуна приводу проводиться постійним струмом, що дає плавний і швидкий зупинку шпинделя без нагрівання електродвигуна.
Коробка подач забезпечує нарізання метричної, дюймової та модульної різьби без застосування змінних шестерень. Для нарізування точного різьблення ходовий гвинт може бути прямо включений, минаючи коробку подач.
Двигун для приводу швидкого ходу не передбачено.
У верстаті 1А616 передбачена можливість встановлення гідрокопіювального пристрою та гідропневмоциліндрів для затиску виробів у патроні або цангу.
Коробка подач забезпечує нарізання метричної, дюймової та модульної різьби без застосування змінних шестерень. Для нарізування точного різьблення ходовий гвинт може бути прямо включений, минаючи коробку подач.
Для нарізування різьблення з кроком до 6 мм рух, як і при подачі супорта, запозичується від верстата шпинделя. Різьблення з більшим кроком нарізаються при включеному переборі з використанням ланки збільшення кроку.
У токарномуу верстаті 1А616 передбачена можливість нарізання особливо точних різьблень шляхом виключення кінематичних ланцюгів коробки подач та застосування спеціальних прецизійних змінних зубчастиних коліс.

Габарит робочого простору верстата 1А616. Ескіз супорта

Фото токарного верстата 1а616
Загальний вигляд токарно-гвинторізного верстата 1А616. Дивитись у збільшеному масштабі

Розташування основних вузлів та органів керування токарним верстатом 1а616
Верстат 1А616 предназначен для токарной обробки сравнительно небольших деталей, диаметром до Ø 320 мм из различных материалов как быстрорежущими, так і твердосплавными инструментами в условиях индивидуального і серийного производства. На станке можно нарезать резцом метрические, дюймовые, модульные і питчевые різьби.
Питание ланцюгів електроустаткування осуществляется следующими напряжениями:
Електроустаткування верстата предназначено для подключения к трехфазной сети переменного тока з глухозаземленным или изолированным нейтральным проводом.
На станке установлены два трехфазных короткозамкнутых асинхронных електродвигуна:
Реверс шпинделя осуществляется фрикционной муфтой. Торможение — електромагнитной муфтой подключением постоянного тока в обмотку статора електродвигуна.
На станке установлены два трехфазных електродвигуна:
Перед пуском ставка рукоятка вводного выключателя ВВ ставится в положение "включено" рукоятка керування - в среднее положение.
Шпиндель пускают в ход і останавливают включением і отключением електродвигуна ДГ, который управляется двумя магнитными пускателями КР-КП, переключателем ПУ і валиком з двумя рукоятками на три положения: верхнее - рабочий ход, среднее -стоп і нижнее - обратный ход.
Відключення електродвигуна ДГ сопровождается торможением - магнитный пускатель КТ включает в статоряую обмотку електродвигуна постоянный ток от выпрямителя ВС.
В момент остановки електродвигуна реле контроля скорости обертання PC отключает магнитный пускатель КТ.
Для контроля степени загрузки електродвигуна ДГ в корпус передньої бабки встроен указатель нагрузки. Стрелка указателя не должна находиться длительное время правее зачерченной частини шкалы.
Ввод от електросети подводится к задньої (правой) тумбе верстата і присоединяется к зажимам А-В-С вводного клеммника. На крышке вводного клеммника имеется табличка, на которой указало рабочее напряжение верстата.
Для присоединения верстата к сети защитного заземления на задньої тумбе верстата имеется спеціальний винт. Заземление верстата обязательно.

Електрична схема токарно-гвинторізного верстата 1а616
Схема електрична токарно-гвинторізного верстата 1А616. Дивитись у збільшеному масштабі

Список елементров токарно-гвинторізного верстата 1а616
Список елементров токарно-гвинторізного верстата 1А616. Дивитись у збільшеному масштабі

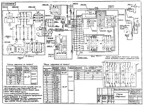
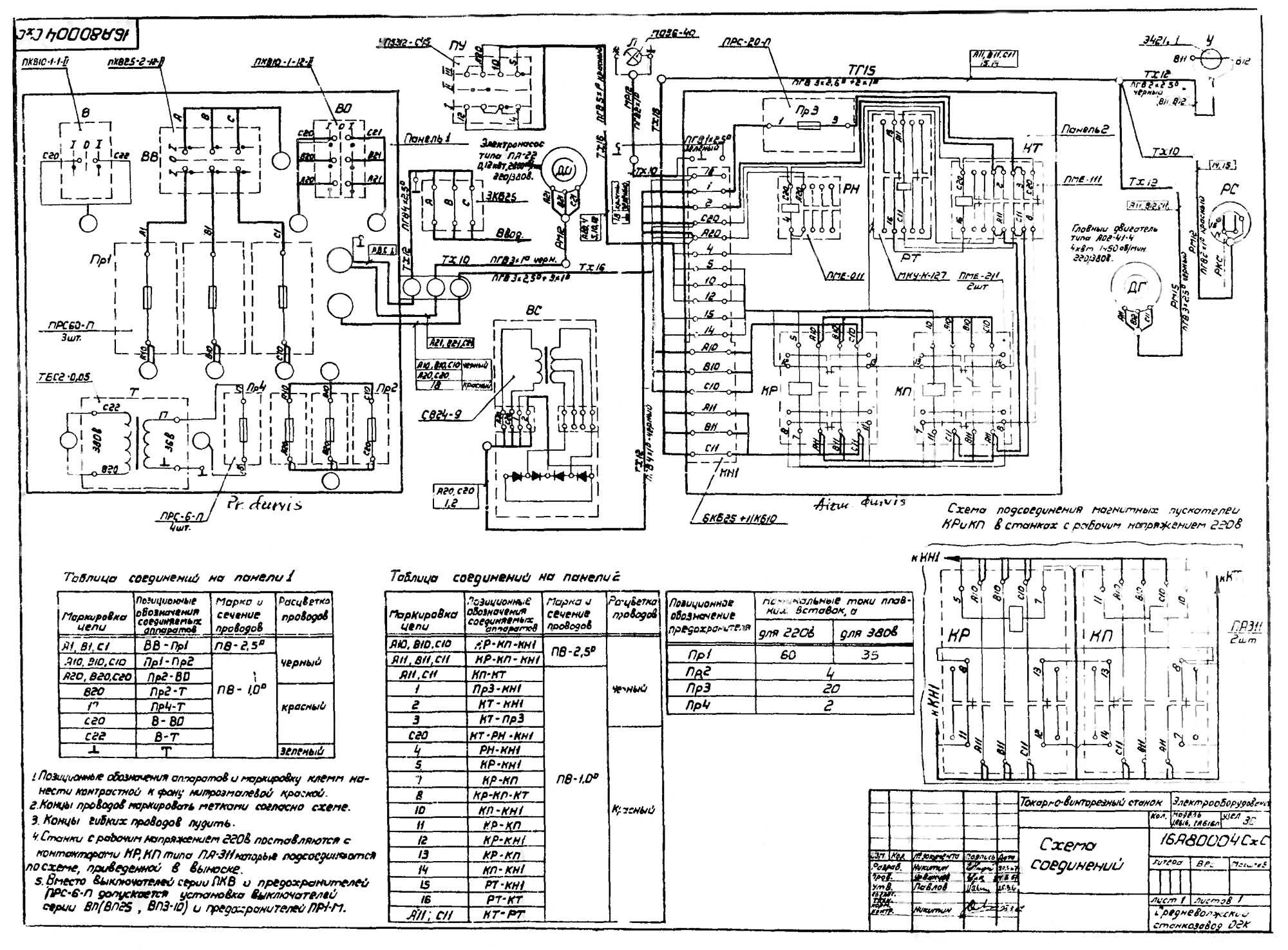
Схема з'єднань токарно-гвинторізного верстата 1а616
Схема з'єднань токарно-гвинторізного верстата 1А616. Дивитись у збільшеному масштабі

Електричнапанель токарно-гвинторізного верстата 1а616
панель електрична токарно-гвинторізного верстата 1А616. Дивитись у збільшеному масштабі
| Наименование параметра | 1616 | 1А616 1971г |
1А616п 1961г |
16Б16 |
|---|---|---|---|---|
| Основні параметри | ||||
| Класс точності по ГОСТ 8-82 | Н | Н | П | Н, П |
| Наибольший диаметр заготовки, обрабатываемой над станиной, мм | 320 | 320 | 320 | 320 |
| Наибольший диаметр заготовки, обрабатываемой над суппортом, мм | 175 | 180 | 180 | 180 |
| Наибольшая длина заготовки, обрабатываемой в центрах (РМЦ), мм | 750 | 710 | 710 | 500,750,1000 |
| Наибольшая длина обтачивания, мм | 700 | 660 | 660 | 960 |
| Высота от опорной поверхности резца до линии центров, мм | 20 | 25 | 25 | 25 |
| Наибольшее расстояние от оси центров до кромки резцедержателя, мм | 185 | 170 | 170 | 185 |
| Высота оси центров над плоскими направляющими станины (высота центров), мм | 160 | 165 | 165 | 175 |
| Наибольшая масса заготовки, обрабатываемой в патроне, кг | ||||
| Наибольшая масса заготовки, обрабатываемой в центрах, кг | ||||
| Шпиндель | ||||
| Диаметр сквозного отверстия в шпинделе, мм | 30 | 35 | 35 | 45 |
| Наибольший диаметр прутка, проходящий через отверстие в шпинделе, мм | 29 | 34 | 34 | 44 |
| Частота прямого обертання шпинделя, об/мин | 19..1415 | 9..1800 | 11,2..2240 | 25..2500 |
| Число ступеней частот прямого обертання шпинделя | 24 | 21 | 21 | 21 |
| Частота обратного обертання шпинделя, об/мин | 19..1415 | 9...1800 | 11,2..2240 | 25...1250 |
| Число ступеней частот обратного обертання шпинделя | 24 | 21 | 21 | 18 |
| Размер внутреннего конуса в шпинделе, М | Морзе 5 | Морзе 5 | Морзе 5 | Морзе 6 |
| Кінець шпинделя по ГОСТ 12593-72 | 6К | 6К | 6К | |
| Торможение шпинделя | нет | есть | есть | есть |
| Блокировка рукояток | нет | есть | есть | есть |
| Точность, тип і размер підшипника в передньої опоре | АВ 3182115 75х115-30 | А 3182116 80х125-34 | А 3182116 80х125-35 | 4-697716Л 80х140-85 |
| Суппорт. Подачи | ||||
| Наибольшее перемещение поздовжньої каретки суппорта от руки, по валику, по винту, мм | 850/ 750/ 750 | 670/ 670/ 670 | 670/ 670/ 670 | 500, 750 |
| Наибольшее перемещение поперечної каретки суппорта от руки, по винту, мм | 210/ 90/ нет | 195/ - /195 | 195/ - /195 | 220 |
| Цена деления лимба продольного переміщення суппорта, мм | 1 | 1 | 1 | 1 |
| Цена деления лимба поперечного переміщення суппорта, мм | 0,02 | 0,05 | 0,05 | 0,025 |
| Продольное перемещение на один оборот лимба, мм | 110 | 110 | 100 | |
| Поперечное перемещение на один оборот лимба, мм | 5 | 5 | 5 | |
| Число ступеней продольных подач | 140 | |||
| Пределы продольных рабочих подач, мм/об | 0,07..1,67 | 0,065..0,91 | 0,05..2,5 | 0,05..2,8 |
| Пределы поперечных рабочих подач, мм/об | 0,02..1,24 | 0,065..0,91 | 0,05..1,5 | 0,025..1,4 |
| Скорость быстрых перемещений суппорта, продольных, м/мин | нет | нет | нет | 4 |
| Скорость быстрых перемещений суппорта, поперечных, м/мин | нет | нет | нет | 2 |
| Количество нарезаемых різьб метрических | ||||
| Пределы шагов нарезаемых різьб метрических, мм | 0,5..9 | 0,5...24 | 0,5..6 | 0,25...56 |
| Количество нарезаемых різьб дюймовых | ||||
| Пределы шагов нарезаемых різьб дюймовых | 38..2 | 56..1 | 48..2,5 | 112..0,5 |
| Количество нарезаемых різьб модульных | ||||
| Пределы шагов нарезаемых різьб модульных | 0,5..9 | 0,25..22 | 0,25..5 | 0,25..56 |
| Количество нарезаемых різьб питчевых | ||||
| Пределы шагов нарезаемых різьб питчевых | нет | 128...2 | 128..1,25 | 112...0,5 |
| Резцовые салазки | ||||
| Наибольшее перемещение резцовых салазок, мм | 105 | 120 | 120 | 120 |
| Перемещение резцовых салазок на одно деление лимба, мм | 0,02 | 0,05 | 0,05 | 0,02 |
| Перемещение резцовых салазок на один оборот лимба, мм | 2 | |||
| Наибольший угол поворота резцовых салазок, град | ±45° | ±90° | ±90° | ±90° |
| Цена деления шкалы поворота резцовых салазок, град | 1° | 1° | 1° | 1° |
| Наибольшее сечение державки резца, мм | 20 х 30 | 20 х 25 | 20 х 25 | 20 х 25 |
| Высота от опорной поверхности резца до оси центров (высота резца), мм | 20 | 25 | 25 | 25 |
| Число резцов в резцовой головке | 4 | 4 | 4 | 4 |
| Задня бабка | ||||
| Диаметр пиноли задньої бабки, мм | ||||
| Конус отверстия в пиноли задньої бабки по ГОСТ 2847-67 | Морзе 4 | Морзе 4 | Морзе 4 | Морзе 5 |
| Наибольшее перемещение пиноли, мм | 95 | 120 | 120 | 120 |
| Перемещение пиноли на одно деление лимба, мм | 1 | 1 | 1 | 0,05 |
| Величина поперечного смещения корпуса бабки, мм | ±10 | ±10 | ±10 | ±5 |
| Електроустаткування | ||||
| Количество електродвигателей на станке | 3 | 2 | 2 | 4 |
| Привід головного руху, кВт | 2,8/ 1420 | 4 | 4,5 | 4,2; 7,5 |
| Тип електродвигуна головного привода | АОЛ42-4 | АО2-41-4 | А51-4-Щ2-К1 | 4А132М8/4У3 |
| Привід ускоренных перемещений, кВт | - | - | - | 0,37 |
| Привід маслонасоса в станції змазки С48-14М, кВт | 0,1 | - | - | 0,12 |
| Привід насоса охлаждения, кВт | 0,1 | 0,125 | 0,125 | 0,125 |
| Насос охлаждения (помпа) | ПА-22 | ПА-22 | ПА-22 | ПА-22 |
| Габарити і масса верстата | ||||
| Габарити верстата (длина ширина высота), мм | 2355 х 852 х 1275 | 2135 х 1225 х 1220 | 2135 х 1225 х 1220 | 2025 х 1110 х 2270 |
| Масса верстата, кг | 1850 | 1500 | 1500 | 1900 |
Приложение: В случае поставки верстата з выемкой в станине, конусной линейкой или гідросуппортом руководство дополняется соответствующими приложениями.