metalinstryment.com
Довідник по металорізальних верстатів та пресовому обладнанні

16К20Ф3с32 Електроустаткування верстата
Електросхема верстата

16К20Ф3 Верстат токарний з ЧПУ







Відомості про виробника токарного верстата з ЧПУ 16К20Ф3

Производитель токарного верстата 16К20Ф3 - Московский станкостроительный завод "Красный пролетарий" им. А.И. Ефремова, основанный в 1857 году.

Первые универсальные токарно-винторезные верстати з коробкой швидкостей впервые в СССР начали выпускаться на Московском станкостроительном заводе "Красный пролетарий" им. А.И. Ефремова в 1932 году і получили наименование ДИП-200, ДИП-300, ДИП-400, ДИП-500 ( ДИП - Догнать И Перегнать), где 200, 300, 400, 500 - высота центров над станиной.

По мере совершенствования конструкції верстатів завод выпускал все более современные моделі - 1А62, 1К62, 16К20, МК6056.





Верстати, выпускаемые Московским станкостроительным заводом Красный пролетарий, КП


16К20Ф3 Верстат токарний патронно-центровой з числовым программным керуванням (ЧПУ). Назначение, область применения

Токарний патронно-центровой верстат 16К20Ф3 предназначен для токарной обробки деталей типа тел обертання в замкнутом напівавтоматическом цикле.

Верстат 16К20Ф3 предназначен для токарной обробки наружных (диаметром до 400 мм) і внутренних поверхностей деталей (длиной до 1000 мм) со ступенчатым і криволинейным профилем в осевом сечении.

Токарний верстат 16К20Ф3 сконструирован на базе токарно-гвинторізного верстата 16К20, поетому компоновка, составные частини і руху у етих верстатів одинаковы. Во многом унифицирована также конструкция.

Верстати 16К20Ф3 могут выпускаться з различными пристроями ЧПУ (УЧПУ), в виконанні для встраивания в гибкие производственные модули (ГПМ), а также в специальном і специализированном виконанні при оснащении наладками по согласованию з заказчиком.

Фланцевый конец шпинделя выполнен по ГОСТ 12593 (DIN 55027, ИСО 702-3-75) под поворотную шайбу, з центрирующим коротким конусом 1:4 (7°7′30″), номинальный диаметр конуса D = 106,375 мм, условный размер кінця шпинделя - 6. Внутренний (инструментальный) конус шпинделя - Морзе 6. Стандартный диаметр токарного патрона 200, 250 мм.

Область применения: Мелкосерийное серийное производство.

Класс точності П по ГОСТ 8—82.

Вид климатического исполнения по ГОСТ15150—69: УХЛ4.

В зависимости от заказа верстати поставляются з основанием под транспортер стружкоудаления і комплектуются транспортером или з основанием без окна для транспортера стружкоудаления і не комплектуются транспортером.


История серии токарно-винторезных верстатів от ДИП-200 → 1а62 → 1к62 → 16к20 → МК6056

В 1930 году на Московском станкостроительном заводе "Красный пролетарий" было принято решение о разработке нового верстата токарного, стандартного, сокращенно ТС. Несколько позже его переименовали в ДИП-200 – Догоним И Перегоним, по главному лозунгу первой пятилетки, где 200 - высота центров над станиной. В качестве прототипа был избран токарно-гвинторізний верстат немецкой фирмы VDF. В апреле 1932 года началась подготовка выпуска первой партии верстатів ДИП-200.

25 апреля 1932 года был собран і опробован первый советский універсальний токарно-гвинторізний верстат з коробкой швидкостей - ДИП-200. К концу 1932 года было выпущено 25 ДИПов.

В 1934 году осваивается выпуск верстатів ДИП-300, ДИП-400, ДИП-500. Впіслядствии производство етих верстатів было передано на Рязанский станкостроительный завод. Производство верстата ДИП-500 было, также, передано на Коломенский завод тяжелых верстатів КЗТС.

В 1937 году в ЭНИМС был разработан типаж (номенклатура типов і размеров) верстатів і принята единая система условных обозначений верстатів. По новой системе обозначений первый ДИП-200 стал называться 1Д62. Но абревиатура ДИП-200 сохранилась і по сей день - для обозначения токарного верстата з высотой центров над станиной равной или близкой 200 мм.

В 1940 году завод выпустил верстат 162К (26А) - один из варіантівДИП-200.

В 1945 году завод переходит на выпуск модернізованого верстата ДИП-200 (ДИП-20М, 1д62м).

В 1948 году завод переходит на выпуск верстата 1А62.

В 1949-1953 году без остановки производства осуществлен переход на поточное производство токарного верстата 1А62. Также в разные годы выпускались: 1620, 1Б62, 1м620, 1622.

В 1954 году был изготовлен опытный образец верстата 1К62, серийное производство которого было запущено в 1956 году.

В 1956 году завод перешёл на крупносерийный выпуск нового верстата 1К62. За понаступні 18 лет, в течение которых они изготавливались, было выпущено 202 тысячи таких верстатів.

Выпускались модификации, изготовленные на базе токарно-гвинторізного верстата 1к62: 1к625, 1к620, 1к62Б підвищеної точності і др.

В 1965 году завод выпустил токарно-гвинторізний верстат підвищеної точності 16Б20П, который стал переходной моделью между 1к62 і 16к20. Коробка подач 16Б20П.070.000 і фартук 16Б20П.061.000 етого верстата стали стандартом для всех післядующих моделей етой серии.

В 1971 году была изготовлена опытная партия верстатів 16К20, в 1972 году на Лейпцигской ярмарке верстат 16К20 был удостоен золотой медали.

В 1972—1973 проводилась реконструкция завода в связи з выпуском новой моделі верстата 16К20. Осваивается серийное производство етих верстатів. К концу года з конвейера сходит до 1000 таких верстатів в месяц. На експорт отправляется около 10 процентов.

На основе базовой моделі токарно-гвинторізного верстата 16К20 было изготовлено множество модификаций, в том числе: 16К25, 16К20М, 16К20П, 16К20В, 16К20Г, 16К20К, 16К20Ф1, 16К20ПФ1, 16К20ВФ1 і др.

Верстати з ЧПУ 16К20Ф3, 16К20Ф3С32, 16А20Ф3, 16К20Т1.

В 1988 году производство верстата моделі 16к20 прекращено. На смену ему пришли токарно-винторезные верстати серии МК: МК6046, МК6047, МК6748, МК6056, МК6057, МК6758.





Обозначения верстатів 16К20ф3 в зависимости от исполнения і моделі ЧПУ

Модель верстата Модель ЧПУ Модель привода Год начала производства
16К20Ф3 Контур 2ПТ-71, Н22-1М,
ЭМ-907, Алкатель CC-221-02P
Приз 1972
16K20T1 Электроника НЦ-31 Приз 1972
16К20Ф3С1 Контур 2ПТ-71 Приз
16К20Ф3С2 СС221-02Р Алкатель Приз
16К20Ф3С32 2Р22 Размер 2М-5-21 1985
16К20РФ3С32 2Р22 Размер 2М-5-21 1985
16К20Ф3С132 2Р22 Размер 2М-5-21 1985
16К20Ф3С232 2Р22 Размер 2М-5-21 1985
16К20Т1.02 НЦ-31 Размер 2М-5-21 1987
16К20Ф3С4 ЭМ-907 Приз
16К20Ф3С5 Н22-1М Приз
16К20Ф3С6 1Н22-62
16К20Ф3С8 1Н22-61
16К20Ф3С15 МС2101-01
16К20Ф3С18 2У22-62 Кемтор, Кемрон НРБ
16К20Ф3С19 2У22-62 Размер 2М-5-2
или Кемтор, Кемрон
1983
16К20Ф3С119 2У22-62 Размер 2М-5-2
или Кемтор, Кемрон
1983
16К20Ф3С219 2У22-62 Размер 2М-5-2
или Кемтор, Кемрон
1983
16К20Ф3С39 Электроника НЦ-31
16К20Ф3С239 Электроника НЦ-31




Габарит робочого простору токарного верстата з ЧПУ 16К20Ф3

16К20Ф3 Габарит робочого простору токарного верстата з ЧПУ

Креслення робочого простору токарного верстата 16к20ф3

Габарит робочого простору токарного верстата з ЧПУ 16К20Ф3. Дивитись у збільшеному масштабі



Загальний вигляд токарного верстата з ЧПУ 16К20Ф3

16К20Ф3 Загальний вигляд токарного верстата з ЧПУ

Фото токарного верстата 16к20ф3


16К20Ф3 Загальний вигляд токарного верстата з ЧПУ

Фото токарного верстата 16к20ф3


16К20Ф3 Загальний вигляд токарного верстата з ЧПУ

Фото токарного верстата 16к20ф3







Електроустаткування токарного верстата 16К20Ф3, з ЧПУ 2Р22, 1985 год

Выбор скорости шпинделя

Для увімкнення соответствующей скорости шпинделя сигналы подаются на кодовые реле скорости. Соединение контактов кодовых реле представляет собой релейный дешифратор, на выходе которого, при соответствующем включении кодовых реле, получаем одну из девяти необходимых швидкостей шпинделя, з включением соответствующей електромагнитной муфты АКС (порядок увімкнення електромагнітних муфт указаны в таблице на принципиальной електросхеме верстата).

При отключении всех реле подаётся команда на торможение. Вращение шпинделя в толчковом режиме возможно при отключении всех кодовых реле і при нажатии кнопки толчкового режима, которая включает малую скорость шпинделя в прямом направлении. Контроль диапазона осуществляется кінцівым выключателем. Увімкнення електродвигуна головного приводу осуществляется подачей команды от пристроя ЧПУ или от пульта керування верстата на промежуточные реле з включением соответствующего контактора.

Назначение і обозначение аппаратов, осуществляющих работу шпинделя, указаны в таблице № 5.

Выбор позиции инструмента

На станке предусмотрена возможность установки 6 идя 8-ми позиционной резцедержки - револьверної головки.

Поворот резцедержки на необходимую позицию осуществляется при подаче сигнала на реле смены инструмента резцедержки і кодовые реле позиция инструмента з включением електродвигуна или гідромотора. Схема построена на совпадении заданной позиции инструмента з пристроя ЧПУ з позицией, определяемой кінцівыми выключателями контроля позиции резцедержки.

При совпадении позиции включаются реле совпадения, которое даёт команду на реверс резцедержки.

По окончании цикла поворота резцедержателя происходит увімкнення реле обратной связи» дающий сигнал в пристрій ЧПУ на продолжение отработки программы.

Условное обозначение і назначение аппаратов по електросхеме, осуществляющих работу резцедержки, приведены в табл. 6.

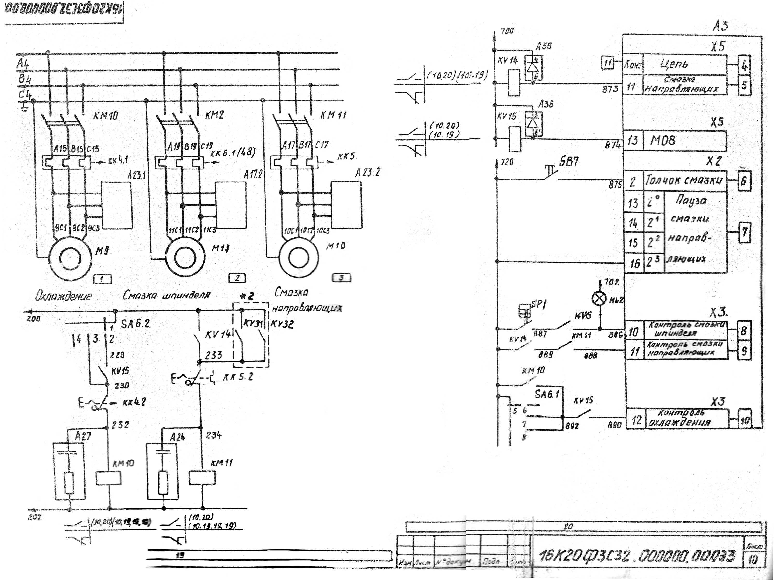
Увімкнення охлаждения

В автоматическом режиме двигатель охлаждения работает при подаче сигналов пристроя ЧПУ на промежуточное реле, которое включает контактор електродвигуна охлаждения .

В процессе різання возможен пуск охлаждения выключателем з пульта керування верстата при включенном главном приводе.

Условное обозначение назначения аппаратов, участвующих в работе охлаждения - приведены в таблице 7.

Работа агрегатов змазки

Електродвигун змазки включается при каждом первоначальном пуске верстата і остается включенным на время, необходимое для змазки. При работе верстата продолжительное время цикл змазки устанавливается соответствующими реле о необходимой выдержкой часу на смазку і паузу.

На станке предусмотрена возможность увімкнення змазки во время паузы - толчковой кнопкой не нарушая цикла змазки.

Условное обозначения аппаратов, участвующих в работе агрегата змазки - приведены в таблице 7.

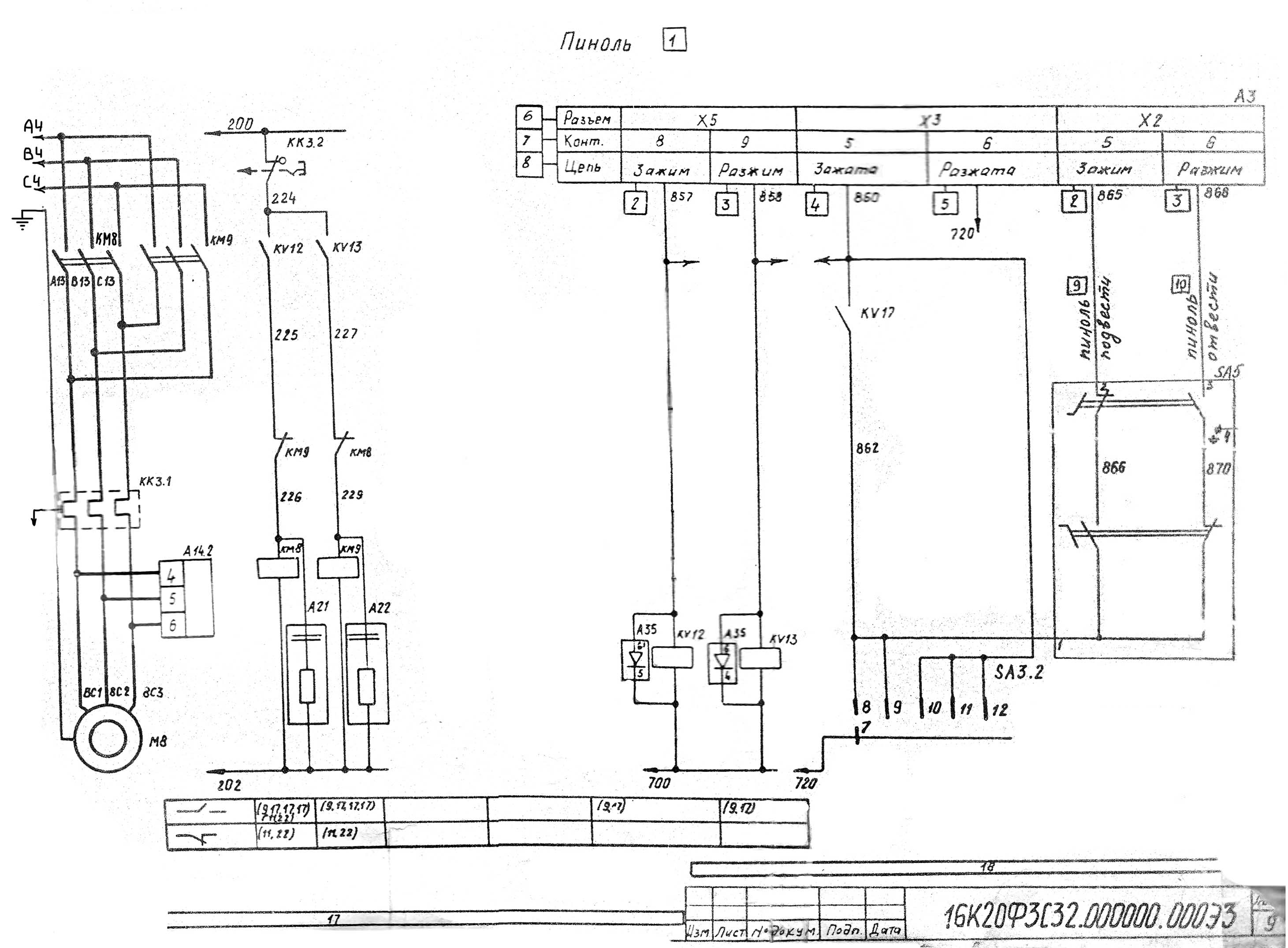
Зажим і разжим патрона, подвод і отвод пиноли

Верстат може быть оснащен пристроями електромеханическими "Приз" для подвода і відведення пиноли задньої бабки і зажиму і разжима детали в патроне» Керування предусмотрено ножными педалями; каждая из которой имеет свою определенную функцию см черт. 16К20Ф.390.000 Э3 і черт. 16К20Ф.290.000 Э4 лист 1.

Блокировки

В електросхеме верстата осуществлены блокировки:

Захист

  1. Захист електродвигуна от токов коротких замыканий осуществляется автоматическим выключателем типа АК63-3М. Значение номинальных токов і токов уставки автоматов даны на принципиальной схеме ставка.
  2. Захист електродвигателей от длительных перегрузок осуществляется тепловым реле типа ТРН-25, ТРН-10. Значение номинальных токов і токов уставки даны на принципиальной електросхеме верстата,
  3. Захист трансформаторов осуществляется:
  4. В електросхеме верстата предусмотрена нулевая защита, обеспечивающая невозможность произвольного самоувімкнення електроаппаратов при установлении подачі електроенергии після внезапного её исчезновения. Это осуществляется катушками магнитных пускачів: і реле, которые при понижении напряжения ниже 80% номинального значения автоматически отключают електродвигатель і релейную схему от сети.

Меры безопасности

На станке для безопасности роботи предусмотрены наступні меры безопасности:

При отключенном положении вводного автомата BAI ето мигание сигнализирует о неисправности автомата

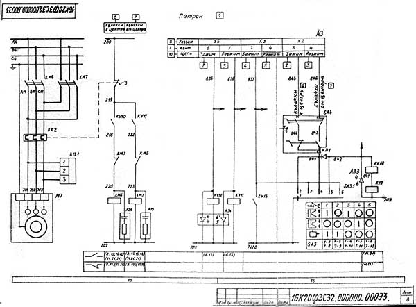
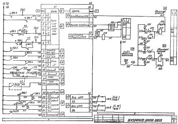
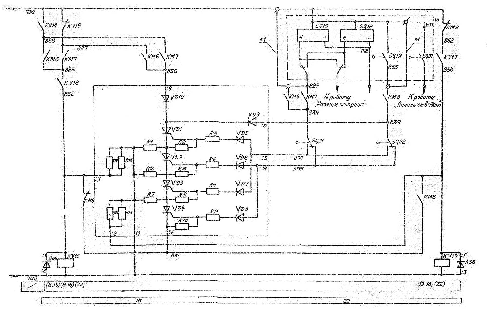
16К20Ф3 Схема електрична токарного верстата з ЧПУ

Схема електрична токарного верстата з ЧПУ 16К20Ф3

Схема електрична токарного верстата з ЧПУ 16К20Ф3. Дивитись у збільшеному масштабі



16К20Ф3 Схема електрична токарного верстата з ЧПУ

Схема електрична токарного верстата з ЧПУ 16К20Ф3

Схема електрична токарного верстата з ЧПУ 16К20Ф3. Дивитись у збільшеному масштабі



16К20Ф3 Схема електрична токарного верстата з ЧПУ

Схема електрична токарного верстата з ЧПУ 16К20Ф3

Схема електрична токарного верстата з ЧПУ 16К20Ф3. Дивитись у збільшеному масштабі



16К20Ф3 Схема електрична токарного верстата з ЧПУ

Схема електрична токарного верстата з ЧПУ 16К20Ф3

Схема електрична токарного верстата з ЧПУ 16К20Ф3. Дивитись у збільшеному масштабі



16К20Ф3 Схема електрична токарного верстата з ЧПУ

Схема електрична токарного верстата з ЧПУ 16К20Ф3

Схема електрична токарного верстата з ЧПУ 16К20Ф3. Дивитись у збільшеному масштабі



16К20Ф3 Схема електрична токарного верстата з ЧПУ

Схема електрична токарного верстата з ЧПУ 16К20Ф3

Схема електрична токарного верстата з ЧПУ 16К20Ф3. Дивитись у збільшеному масштабі



16К20Ф3 Схема електрична токарного верстата з ЧПУ

Схема електрична токарного верстата з ЧПУ 16К20Ф3

Схема електрична токарного верстата з ЧПУ 16К20Ф3. Дивитись у збільшеному масштабі



16К20Ф3 Схема електрична токарного верстата з ЧПУ

Схема електрична токарного верстата з ЧПУ 16К20Ф3

Схема електрична токарного верстата з ЧПУ 16К20Ф3. Дивитись у збільшеному масштабі



16К20Ф3 Схема електрична токарного верстата з ЧПУ

Схема електрична токарного верстата з ЧПУ 16К20Ф3

Схема електрична токарного верстата з ЧПУ 16К20Ф3. Дивитись у збільшеному масштабі



16К20Ф3 Схема електрична токарного верстата з ЧПУ

Схема електрична токарного верстата з ЧПУ 16К20Ф3

Схема електрична токарного верстата з ЧПУ 16К20Ф3. Дивитись у збільшеному масштабі



16К20Ф3 Схема електрична токарного верстата з ЧПУ

Схема електрична токарного верстата з ЧПУ 16К20Ф3

Схема електрична токарного верстата з ЧПУ 16К20Ф3. Дивитись у збільшеному масштабі



16К20Ф3 Схема електрична токарного верстата з ЧПУ

Схема електрична токарного верстата з ЧПУ 16К20Ф3

Схема електрична токарного верстата з ЧПУ 16К20Ф3. Дивитись у збільшеному масштабі



16К20Ф3 Схема електрична токарного верстата з ЧПУ

Схема електрична токарного верстата з ЧПУ 16К20Ф3

Схема електрична токарного верстата з ЧПУ 16К20Ф3. Дивитись у збільшеному масштабі



16К20Ф3 Список елементів токарного верстата з ЧПУ

Список елементів токарного верстата з ЧПУ 16К20Ф3

Список елементів токарного верстата з ЧПУ 16К20Ф3. Дивитись у збільшеному масштабі



16К20Ф3 Список елементів токарного верстата з ЧПУ

Список елементів токарного верстата з ЧПУ 16К20Ф3

Список елементів токарного верстата з ЧПУ 16К20Ф3. Дивитись у збільшеному масштабі



16К20Ф3 Список елементів токарного верстата з ЧПУ

Список елементів токарного верстата з ЧПУ 16К20Ф3

Список елементів токарного верстата з ЧПУ 16К20Ф3. Дивитись у збільшеному масштабі



16К20Ф3 Список елементів токарного верстата з ЧПУ

Список елементів токарного верстата з ЧПУ 16К20Ф3

Список елементів токарного верстата з ЧПУ 16К20Ф3. Дивитись у збільшеному масштабі



16К20Ф3 Список елементів токарного верстата з ЧПУ

Список елементів токарного верстата з ЧПУ 16К20Ф3

Список елементів токарного верстата з ЧПУ 16К20Ф3. Дивитись у збільшеному масштабі



16К20Ф3 Список елементів токарного верстата з ЧПУ

Список елементів токарного верстата з ЧПУ 16К20Ф3

Список елементів токарного верстата з ЧПУ 16К20Ф3. Дивитись у збільшеному масштабі



16К20Ф3 Список елементів токарного верстата з ЧПУ

Список елементів токарного верстата з ЧПУ 16К20Ф3

Список елементів токарного верстата з ЧПУ 16К20Ф3. Дивитись у збільшеному масштабі



16К20Ф3 Список елементів токарного верстата з ЧПУ

Список елементів токарного верстата з ЧПУ 16К20Ф3

Список елементів токарного верстата з ЧПУ 16К20Ф3. Дивитись у збільшеному масштабі



16К20Ф3 Список елементів токарного верстата з ЧПУ

Список елементів токарного верстата з ЧПУ 16К20Ф3

Список елементів токарного верстата з ЧПУ 16К20Ф3. Дивитись у збільшеному масштабі



16К20Ф3 Список елементів токарного верстата з ЧПУ

Список елементів токарного верстата з ЧПУ 16К20Ф3

Список елементів токарного верстата з ЧПУ 16К20Ф3. Дивитись у збільшеному масштабі



16К20Ф3 Список елементів токарного верстата з ЧПУ

Список елементів токарного верстата з ЧПУ 16К20Ф3

Список елементів токарного верстата з ЧПУ 16К20Ф3. Дивитись у збільшеному масштабі



16К20Ф3 Список елементів токарного верстата з ЧПУ

Список елементів токарного верстата з ЧПУ 16К20Ф3

Список елементів токарного верстата з ЧПУ 16К20Ф3. Дивитись у збільшеному масштабі






16К20Ф3 Верстат токарний патронно-центровой з числовым программным керуванням (ЧПУ). Відеоролик.




Технічні характеристики верстата 16К20ф3

Наименование параметра 16К20Ф3С32 16К20Ф3С5 16К20Ф3С8
Обозначение системы ЧПУ 2Р22 Н22-1М 1Н22-61
Основні параметри верстата
Наибольший диаметр обрабатываемого вироби над станиной, мм 400 400 400
Наибольший диаметр обрабатываемого вироби над суппортом, мм 220 220 220
Диаметр отверстия в шпинделе, мм 53 53 53
Наибольшая длина обрабатываемого вироби, мм 1000 1000 1000
Предельный диаметр сверления в стали, мм 25 25 25
Предельный диаметр сверления в чугуне, мм 28 28 28
Шпиндель
Мощность двигуна головного руху, кВт 11 11 11
Количество рабочих швидкостей шпинделя 22 22 22
Пределы чисел оборотів шпинделя, об/мин 12,5...2000 12,5...2000 12,5...2000
Количество автоматически переключаемых швидкостей 9 9 9
Диапазон автоматичного переключения 16 16 16
Диапазон швидкостей шпинделя, устанавливаемый вручную, об/мин Ряд I - 12.5..200
Ряд II - 50..800
Ряд III - 125..2000
Ряд I - 12.5..200
Ряд II - 50..800
Ряд III - 125..2000
Ряд I - 12.5..200
Ряд II - 50..800
Ряд III - 125..2000
Центр шпинделя передньої бабки по ГОСТ 13214-67 7032 - 0043 Морзе №6 7032 - 0043 Морзе №6 7032 - 0043 Морзе №6
Центр пиноли задньої бабки по ГОСТ 13214-67 7032 - 0045 Морзе №5 7032 - 0045 Морзе №5 7032 - 0045 Морзе №5
Кінець шпинделя по ГОСТ 12593-72
Подачи
Наибольшее перемещение суппорта:
продольное / поперечное, мм
900/250 900/250 900/250
Максимальная скорость поздовжньої подачі при нарезании різьби, мм/мин 2000 1200 2000
Пределы шагов нарезаемых резьб, мм 0,1..39,999 до 20 0,01..40
Диапазон швидкостей продольных подач, мм/мин 3..2000 3..1200 1..2000
Диапазон швидкостей поперечных подач, мм/мин 3..2000 1,5..600 1..2000
Скорость быстрых продольных ходов, мм/мин 7000 4800 7500
Скорость быстрых поперечных ходов, мм/мин 4000 2400 5000
Дискретность продольного переміщення 0,002 0,01 0,01
Дискретность поперечного переміщення 0,002 0,005 0,005
Высота резца, мм 25 25 25
Количество позиций на поворотной резцедержке (число инструментов в револьверній головці) 6 6 6
Параметри системы ЧПУ
Обозначение системы ЧПУ 2Р22 Н22-1М 1Н22-61
Число координат 2 2 2
Количество одновременно управляемых координат 2 2 2
Разрешающая способность в продольном направлении (дискретность задания по оси Z), мм 0,001 0,001 0,001
Разрешающая способность в поперечном направлении (дискретность задания по оси X), мм 0,001 0,05 0,05
Тип датчика нулевого положения КВД3-24 КВД3-24
Тип датчика обратной связи РОД-620 ВТ
Тип резьбонарезного датчика РОД-620 ИГР ИГР
Електродвигун головного привода А02-52-4СП43, М301
4А132М443, М301
А02-52-4СП43, М301
4А132М443, М301
А02-52-4СП43, М301
4А132М443, М301
Мощность двигуна головного привода, кВт 11 11 11
Суммарная мощность електродвигателей, кВт 20 20 20
Суммарная мощность верстата, кВт 22 22 22
Габарити і масса верстата
Масса верстата з ЧПУ, кг 5000 5000 5000

    Список литературы:

  1. Верстат токарний патронно-центровой з числовым программным керуванням 16к20ф3. Руководство по експлуатации 16К20Ф3.000.000 РЭ, 1974
  2. Верстат токарний патронно-центровой з числовым программным керуванням 16к20ф3. Руководство по експлуатации електроустаткування 16К20Ф3.000.000 РЭ1, 1981

  3. Ачеркан Н.С. Металлорежущие верстати, Том 1, 1965
  4. Батов В.П. Токарные верстати, 1978
  5. Белецкий Д.Г. Справочник токаря-универсала, 1987
  6. Денежный П.М., Стискин Г.М., Тхор И.Е. Токарное дело, 1972. (1к62)
  7. Денежный П.М., Стискин Г.М., Тхор И.Е. Токарное дело, 1979. (16к20)
  8. Модзелевский А. А., Мущинкин А.А., Кедров С. С., Соболь А. М., Завгородний Ю. П., Токарные верстати, 1973
  9. Пикус М.Ю. Справочник слесаря по ремонту верстатів, 1987
  10. Схиртладзе А.Г., Новиков В.Ю. Технологическое обладнання машиностроительных производств, 1980
  11. Тепинкичиев В.К. Металлорежущие верстати, 1973
  12. Чернов Н.Н. Металлорежущие верстати, 1988
  13. Завгороднев П. И. Работа оператора на верстатах з программным керуванням, 1981
  14. Косовский В.Л. і др. Программное керування верстатами і промышленными роботами 1989
  15. Сергиевский Л. В. Пособие наладчика верстатів з ЧПУ 1991